Version: 8.24.1Navigation überspringen
1.687.000 €
5 Zimmer  •  449 m²  •  800 m² Grundstück
Immowelt logo

Villa zum Kauf
1687000 €
3.757 €/m²
5 Zimmer  •  449 m²  •  800 m² Grundstück

Moderne Villa mit fantastischem Meerblick in Benitachell an der Costa Blanca

Moderne Villa mit Meerblick zu verkaufen in Benitachell, Cumbre del Sol
Diese moderne Villa in der schönen Lage von Cumbre del Sol in Benitachell bietet alles, was Sie für ein luxuriöses Leben an der Costa Blanca benötigen. Mit beeindruckendem Meerblick und hervorragender Anbindung an alle Annehmlichkeiten ist dies der ideale Ort, um das mediterrane Leben zu genießen. Die Villa ist nur 5 Kilometer von der charmanten Altstadt von Benitachell und 6,5 Kilometer vom beliebten Ferienort Moraira entfernt. Der idyllische Strand Cala Moraig ist 2,2 Kilometer entfernt, während die internationale Schule nur 3 Kilometer entfernt ist.
Diese exklusive Immobilie zeichnet sich durch ihr modernes Design, den fantastischen Meerblick, viel Licht und stilvolle Elemente aus. Das Haus erstreckt sich über zwei Etagen und bietet viel Platz und Komfort. Im Erdgeschoss befindet sich ein geräumiges Wohn-Esszimmer mit einem gemütlichen Kamin und großen Fenstern, die für viel Tageslicht sorgen. Die offene, moderne Küche ist komplett ausgestattet und es gibt einen praktischen Hauswirtschafts-/Waschraum. Außerdem gibt es ein geräumiges Schlafzimmer mit eigenem Bad und ein Gäste-WC. Über eine Innentreppe gelangt man in das Obergeschoss, wo sich drei Schlafzimmer befinden. Ein Schlafzimmer hat ein eigenes Bad, die beiden anderen teilen sich ein Bad.
Der Außenbereich ist ideal, um das mediterrane Klima in vollen Zügen zu genießen. Ein schöner Swimmingpool mit großzügiger Sonnenterrasse lädt zum Entspannen ein, während die Sonnenterrasse einen spektakulären Blick auf das Meer bietet. Die Immobilie ist mit hochwertigen Materialien ausgestattet und strahlt modernen Luxus aus, wobei auf Komfort und Eleganz geachtet wurde.
Mit fantastischem Meerblick von allen Zimmern und einer erstklassigen Lage ist diese Villa eine einzigartige Gelegenheit. Lassen Sie dieses Traumhaus nicht an sich vorbeiziehen und vereinbaren Sie noch heute einen Besichtigungstermin. Ihr Luxusleben an der Costa Blanca wartet auf Sie!
Der angegebene Preis enthält keine Steuern und Kaufkosten / Das Angebot gilt vorbehaltlich von Irrtümern, Preisänderungen, Verfügbarkeit, Unterlassung und / oder Rücktritt vom Markt ohne Vorankündigung / Möbel und Inhalte nach individueller Vereinbarung und nicht nach den Fotos in der Präsentation

Merkmale

  • 800 m² Grundstück
  • Swimmingpool

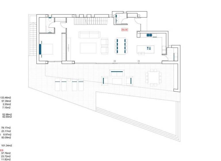
Grundrisse

Grundrisse
1 / 2

Realisiere Dein Projekt

Bausubstanz und Energie

Möchtest du Details zum Energieverbrauch?info_energy_calculation-icon
  • Zustand der ImmobilieNeubau
Immowelt logo

Preisdetails

Kaufpreis
1687000 €
3.757,24 €/m²
Provision für Käufer
Provisionsfrei für den Käufer

Lage

address-icon
Benitachell (03726)
Der Anbieter hat die genaue Adresse nicht freigegeben

Weitere Informationen

Stichworte Anzahl der Schlafzimmer: 4, Anzahl der Badezimmer: 3, Bundesland: Alicante

Weitere Services

Lust auf eine Besichtigung?
Eine Frage zur Immobilie?
Nachricht hinzufügen
Mit der Nutzung der oben angegebenen Telefonnummer oder durch Klicken auf „Kontaktieren“ akzeptierst Du die Allgemeinen Nutzungsbedingungen, denen Du jederzeit widersprechen kannst. Weitere Informationen zum Datenschutz

Über den Anbieter

Rosenweg 16, 72127 Kusterdingen
partner badge
10 Jahre Partnerschaft
Frank KuzinnaDein Kontakt
Online-ID: 24PT99NR83CR
Referenznummer: 4-95-BX.H-183
Thomas Immobilien GmbH
Thomas Immobilien GmbH
Bewertung: 4,2 von 5 Sternen
Nachricht hinzufügen
Mit der Nutzung der oben angegebenen Telefonnummer oder durch Klicken auf „Kontaktieren“ akzeptierst Du die Allgemeinen Nutzungsbedingungen, denen Du jederzeit widersprechen kannst. Weitere Informationen zum Datenschutz
Wie zufrieden bist du mit dieser Seite (nicht mit der Immobilie selbst)?