Zuhause am Michelsberg - Lebensqualität auf hohem Niveau
Diese hochwertig kernsanierte 4-Zimmer-Eigentumswohnung am begehrten Michelsberg vereint modernen Wohnkomfort mit einer ruhigen und exklusiven Wohnlage. Die Wohnung wurde im Jahr 2025/2026 umfassend saniert und präsentiert sich in einem neuwertigen Zustand - ideal für alle, die ohne Renovierungsaufwand sofort einziehen möchten.
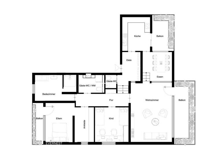
Der offen und gut durchdachte Grundriss verleiht der Wohnung eine besondere Wohnqualität. Der Wohnbereich ist als Split-Level gestaltet und schafft dadurch eine klare, zugleich harmonische Trennung der Bereiche sowie ein außergewöhnliches Raumgefühl mit architektonischem Anspruch. In allen Wohnräumen wurde hochwertiger Echtholzparkett aus Eiche verlegt, der in Kombination mit der durchgängigen Fußbodenheizung für ein angenehmes und behagliches Wohnklima sorgt. Neue Fenster mit elektrischen Rollläden unterstreichen den hohen Ausstattungsstandard und bieten zusätzlichen Komfort sowie eine optimale Wärme- und Schalldämmung.
Die Wohnung verfügt über zwei Schlafzimmer, von denen eines als Master-Schlafzimmer mit separater Ankleide ausgeführt ist und somit zusätzlichen Komfort sowie großzügigen Stauraum bietet. Ein besonderes Highlight sind die insgesamt drei Balkone, die zu jeder Tageszeit Sonne bieten und den Wohnraum nach außen erweitern.
Das großzügige Badezimmer ist modern gestaltet und verfügt sowohl über eine Badewanne als auch über eine begehbare Dusche. Ergänzt wird das Raumangebot durch zwei zusätzliche Gäste-WCs, die den Wohnkomfort spürbar erhöhen.
Die Wohnung befindet sich in einem gepflegten Mehrfamilienhaus mit nur fünf Wohneinheiten, was eine ruhige und private Wohnatmosphäre garantiert. Ein Aufzug ist vorhanden und ermöglicht einen komfortablen Zugang zur Wohnung. Zudem gehört ein Kellerabteil zur Einheit. Ein Außenstellplatz sowie ein Tiefgaragenstellplatz runden das Angebot ab.Der Gesamtkaufpreis in Höhe von 860.000 € setzt sich aus 820.000 € für die Wohnung sowie 40.000 € für die beiden Stellplätze zusammen.
Die Wohnung ist sofort bezugsfrei! Die Kombination aus hochwertiger Kernsanierung, moderner Ausstattung, architektonischem Split-Level-Wohnbereich, durchdachtem Grundriss und der attraktiven Lage am Michelsberg macht dieses Angebot zu einer seltenen Gelegenheit.
Merkmale
Kelleranteil
2 Stellplätze
Balkon
4-Zimmer-Eigentumswohnung im TOP-Zustand (Kernsanierung 2025/2026) sofort bezugsfrei Wohnbereich im Split-Level-Style 3 Balkone 2 Schlafzimmer, eins davon mit Ankleide 2 WC´s XXL Bad mit Badewanne und begehbarer Dusche Fußbodenheizung Aufzug TG-Stellplatz Außenstellplatz
Grundrisse
Grundrisse
1 / 1
Realisiere Dein Projekt
Bausubstanz und Energie
Energieausweis
E
Baujahr1972
Zustand der Immobilierenoviert / saniert
Preisdetails
Kaufpreis
860000 €860.000 €
6.718,75 €/m²
Hausgeld
585 €585 €
Provision für Käufer
3.57 inkl. MwSt. Bei Abschluss eines notariellen Kaufvertrages ist eine Käuferprovision vom Käufer in Höhe von 3.57 % inkl. MwSt. aus dem Kaufpreis fällig.
Geschätzte Gesamtkosten
950.902 €1
Kaufpreis
860.000 €
Kaufnebenkosten
90.902 €
2
Notarkosten (1,5%)
12.900 €
Grunderwerbsteuer (5%)
43.000 €
Provision für Käufer (3,57%)
30.702 €
Grundbucheintrag (0,5%)
4.300 €
1Der angezeigte Wert ist eine automatisch berechnete Schätzung von immowelt.
2Bei den Angaben handelt es sich um ortsübliche Werte. Individuelle Kosten können abweichen.
Lage
Mitte, Ulm (89075)
Der Anbieter hat die genaue Adresse nicht freigegeben
Die Wohnung befindet sich in bevorzugter und ruhiger Wohnlage am Michelsberg. Dieses Wohngebiet zählt zu den gefragtesten Adressen der Umgebung und überzeugt durch seine erhöhte Lage, eine gewachsene Nachbarschaft sowie ein angenehmes, überwiegend von gepflegten Wohnhäusern geprägtes Umfeld.
Die gute Anbindung an den öffentlichen Nahverkehr ermöglicht eine schnelle Erreichbarkeit angrenzender Stadtteile und des Zentrums. Gleichzeitig laden nahegelegene Grünflächen sowie Spazier- und Radwege zu Erholung und Freizeitaktivitäten ein.
Diese Lage verbindet auf ideale Weise ruhiges, gehobenes Wohnen mit urbaner Infrastruktur und macht die Immobilie sowohl fĂĽr Eigennutzer als auch fĂĽr Kapitalanleger besonders attraktiv.
Weitere Informationen
Stichworte
Garage vorhanden, Anzahl der Schlafzimmer: 2, Anzahl der Badezimmer: 1, Anzahl der separaten WCs: 2, Anzahl Balkone: 3