
Benjes Immobilien GmbH
Frau Nina Matties
004 ···
Nr. anzeigenPreise & Kosten
Provision für Käufer
3,57 % des Kaufpreises inkl. Mehrwertsteuer
Lage
Grundstück:
Die kleine Resthofstelle mit Ackerland hat eine Gesamtgröße von 14.510 m². Der Hof ist teilweise gepflastert. Der Garten hinter dem Haus hat die Ausrichtung nach Südwesten und ist in Rasenfläche angelegt. Zusätzlich stehen auf dem Grundstück eine Kastanie und eine Linde. Mit dem Nachbarn links besteht ein...
Das Haus
Kategorie
Bauernhaus
Baujahr
1900
Energie & Heizung
Warum sehe ich diese Anzeige? – Du siehst diese Anzeige basierend auf Ihrer Navigation auf unserer Website und den Suchkriterien, die du verwendet hast.
Energieausweis: für diesen Gebäudetyp nicht notwendig
Weitere Energiedaten
Haustyp
Massivhaus
Details
Objektbeschreibung
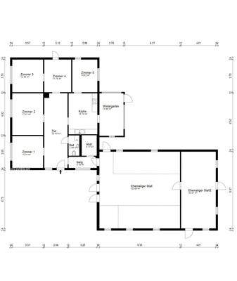
Die sehr einfache, kleine Hofstelle wartet auf eine liebevolle Sanierung oder Umsetzung Ihres individuellen Bauprojektes. Das Wohnhaus ist in einem stark sanierungsbedürftigen Zustand, das Dachgeschoss ist nicht ausgebaut. Hier kann ein Kleinod in landschaftlich schöner Gegend mit der Möglichkeit zur Tierhaltung, z. B. mit...
Ausstattung
Der vorhandene Gebäudebestand ist stark sanierungsbedürftig: Die Ausstattung des ehem. Bauernhauses ist sehr einfach (Fenster, Fußböden, Badezimmer, keine Heizung). In einigen Bereichen ist aufsteigende Feuchtigkeit sichtbar. Im angrenzenden Stallgebäude befinden sind ehemalige Kuh- und Schweineställe. Im hinteren Bereich...
Weitere Informationen
Sonstiges
Bei einer Grundstücksgröße von über 5.000 m² muss eine Grundstücksverkehrsgenehmigung eingeholt werden, die die Abwicklung um bis zu drei Monate verzögern kann.
Die vom Käufer zu zahlende Grunderwerbsteuer beträgt 5 %, zusätzlich trägt der Käufer die Notar- und Gerichtskosten. Wir haben einen...
Anbieter der Immobilie
Benjes Immobilien GmbH
Bökenbraken 11, 27305 Bruchhausen-Vilsen
Online-ID: 2mr5654
Referenznummer: 1000
Finde Angebote wie dieses
Hier geht es zu unserem Impressum, den Allgemeinen Geschäftsbedingungen, den Hinweisen zum Datenschutz und nutzungsbasierter Online-Werbung.