Bezugsfrei nach Absprache: Gepflegtes 4-Zi-Reihenmittelhaus mit Garage in Bad Aibling
Objektnr: 1070551
Ein Zuhause mit Charme und Entwicklungspotenzial in ruhiger, familienfreundlicher Lage von Bad Aibling: Bei dem hier angebotenen Objekt handelt es sich um ein gepflegtes Reihenmittelhaus aus ca. dem Jahr 1966, das durch seine solide Bausubstanz, eine durchdachte Raumaufteilung und eine attraktive Grundstücksausrichtung überzeugt. Die zugehörige Einzelgarage wurde ca. 1974 errichtet. Die Wohnfläche beträgt ca. 108,55 m², die Gesamtfläche inklusive Nutz- und Nebenflächen beläuft sich auf ca. 184,51 m². Der Grundstücksanteil umfasst ca. 225,33 m² gemäß Grundbuch.
Das Haus erstreckt sich über vier Ebenen - Kellergeschoss, Erdgeschoss, Obergeschoss sowie ein vollständig ausgebautes Dachgeschoss - und bietet insgesamt vier gut geschnittene Zimmer mit vielseitigen Nutzungsmöglichkeiten. Im Kellergeschoss stehen großzügige Nutzflächen zur Verfügung, darunter ein großer Kellerraum mit ca. 19,11 m², ein weiterer Kellerraum mit ca. 4,29 m², ein Heizungsraum mit ca. 7,07 m², ein Tankraum mit ca. 5,42 m² sowie ein Flur mit ca. 4,66 m². Hier befindet sich ebenfalls der Waschmaschinenanschluss mit Hebeanlage. Die Unterkellerung bietet somit ausgezeichnete Abstell-, Lager- oder Hobbyflächen.
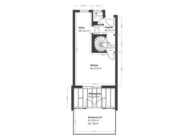
Das Erdgeschoss bildet das Herzstück des Hauses. Der Wohnbereich mit ca. 23,01 m² bietet direkten Zugang zur westlich ausgerichteten Terrasse, sowie in den Garten. Die Küche umfasst ca. 6,31 m²; die Einbauküche wurde erst 2024 neu eingebaut und ist im Kaufpreis enthalten.
Ergänzt wird das Erdgeschoss durch einen Flur, einen Eingangsbereich, sowie ein Gäste-WC mit Fenster. Zusätzlich ist ein beheizbarer Wintergarten mit ca. 12,41 m² Nutzfläche vorhanden. Für den Wintergarten wird gemäß Aufmaß keine offizielle Wohnfläche ausgewiesen; weitere Details hierzu erläutern wir Ihnen gerne im persönlichen Gespräch.
Im Obergeschoss befinden sich zwei Zimmer mit ca. 19,71 m² und ca. 9,80 m² Wohnfläche sowie das Hauptbadezimmer, ausgestattet mit Dusche, Toilette, Einzelwaschbecken und Fenster. Zwei Flure ergänzen diese Ebene. Das vollständig ausgebaute Dachgeschoss bietet ein weiteres Zimmer mit ca. 19,19 m² Wohnfläche, ein Flur sowie ein zusätzliches WC inklusive DG-Fenster und Waschbecken.
Die Beheizung erfolgt über eine Öl-Zentralheizung mit einem Wärmeerzeuger aus ca. dem Jahr 2000 (siehe Energieausweis im Kundendatenraum), die Wärmeverteilung erfolgt über Heizkörper. Die Fenster wurden überwiegend modernisiert; es sind zweifach- und dreifachverglaste Elemente vorhanden. Die Dreifachverglasung stammt aus ca. 2011, die Zweifachverglasung aus ca. 1995 und 2000. Lediglich ein Dachflächenfenster im Dachgeschoss entspricht noch dem Baujahr. Manuelle Rollläden sind teilweise vorhanden. Die Bodenbeläge bestehen aus Laminat und Fliesen, teilweise wurden Böden im Jahr 2024 erneuert. Terrasse (2024) und Zaun (2025) wurden ebenfalls saniert.
Insgesamt präsentiert sich das Objekt in einem guten und gepflegten Zustand mit solider Substanz und weiterem Entwicklungsspielraum.
Zum Haus gehört eine Einzelgarage mit Stromanschluss, welche für zusätzlich 15.000 € erworben werden kann. Die monatlichen Nebenkosten belaufen sich auf ca. 440,00 € inklusive Strom. Das Objekt ist bezugsfrei nach Absprache. Neben der Eigennutzung bietet die Immobilie auch Potenzial als Kapitalanlage; eine Jahresnettokaltmiete von ca. 18.000 € bzw. ca. 1.500 € monatlich ist realistisch erzielbar.
Alle relevanten Objektunterlagen wie Grundbuchauszug, Energieausweis und weitere Dokumente stellen wir Ihnen gerne in unserem Kundendatenraum zur Verfügung. Wir freuen uns darauf, Ihnen diese Immobilie persönlich vorzustellen, und stehen Ihnen für eine Besichtigung jederzeit gerne zur Verfügung.
Der Gesamtkaufpreis beträgt 564.900 € (549.900 € für das Haus & zzgl. 15.000 € für die Garage).