Version: 8.24.0Navigation überspringen
3.376 €
Immowelt logo

Lagerhalle zur Miete - Erstbezug
3.376 €

Erstbezug einer neu errichteten Hallenfläche im historischen Dorfkern von Berlin-Hellersdorf

Es handelt sich hierbei um ein neu errichtetes Gebäude, welches in Erdgeschoss mit Hallenflächen und im Obergeschoss mit Büroflächen errichtet wird. Die Lage im alten Dorfkern von Hellersdorf versprüht mit seinen zahlreichen denkmalgeschützten Objekten einen ländlichen und ruhigen Dorfcharakter, wie man ihn in Hellersdorf nicht erwarten würde.

Merkmale

  • Bezug: sofort
  • Bodenbelag: Estrich
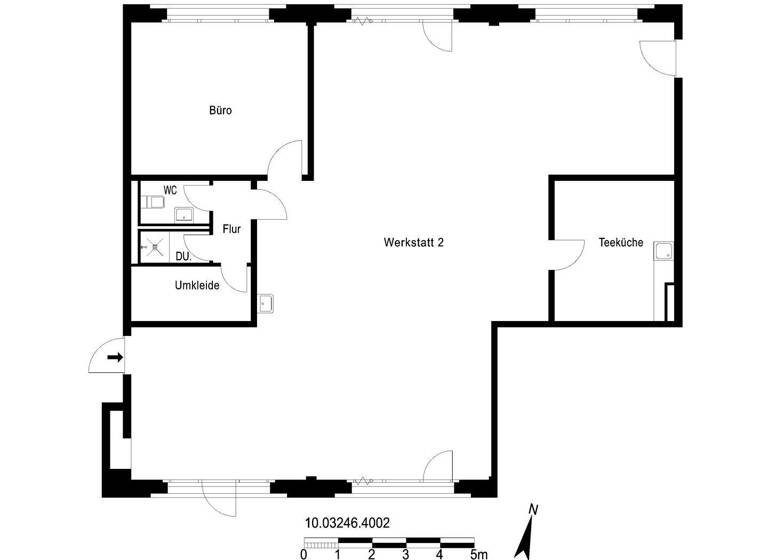
Die Hallenflächen verfügen über je 2 Falt-Schiebetore, Bürofläche, Umkleide, WC und Dusche.

Die Beheizung der Hallenfläche erfolgt über Deckenheizung. Die restlichen Räume erhalten Ventilheizkörper.

Grundrisse

Grundrisse
1 / 1

Realisiere Dein Projekt

Bausubstanz und Energie

Der Anbieter hat keine Informationen zum Energieverbrauch bereit gestellt.
  • Baujahr2024
  • Zustand der ImmobilieErstbezug
  • EnergieträgerFernwärme
Immowelt logo

Mietkosten

Nettomiete
3.376 €
Nebenkosten
738 €
Heizkosten
in Warmmiete enthalten
Provision für Mieter
Bitte beachte, das Angebot kann bei Vertragsabschluss die Zahlung einer Provision beinhalten. Weitere Informationen erhältst Du vom Anbieter.
Kaution
12000 €

Lage

address-icon
Gut Hellersdorf 14HellersdorfBerlin (12629)
Besonders geprägt ist das Stadtgut Familien und Senioren. Die größte Chance für einen wirtschaftlich nachhaltigen Betrieb sind die rund 3.600 Mieterinnen und Mieter des kürzlich errichteten und wachsenden Gesobau-Quartiers. Um das Ziel etwas "Besonderes" für den Standort zu erreichen, bedarf es Macherinnen und Macher, die Ideen mitbringen und den ungewöhnlichen Ort abseits des Innenstadt-Mainstreams suchen, um sich selbst verwirklichen zu können.

Weitere Informationen

Sonstiges nur wenigen Gehminuten ist man im Zentrum "Helle Mitte" mit verschiedenen Einkaufsmöglichkeiten, sowie dem U-Bahnhof "Hellersdorf" mit direkter Verbindung zum Alexanderplatz (U5). Auch dank des vorhandenen Jelbi-Netzes und verschiedenen Sharing-Angeboten vor Ort (E-Scooter, E-Bike oder Auto) ist hier maximale Mobilität gegeben. Durch das gute Erreichen des Gewerbes werden auch die älteren Menschen begeistert anzureisen. Hellersdorf ist eng mit dem öffentlichen Nahverkehr, den Einzelfahrzeugen und Sharing Angeboten gekoppelt.

Gäste des Stadtgut Hellersdorf finden in der nahegelegenen Quartiersgarage Platz.

Interessentenlink - https://rdr.immomio.com/HjPYkBel Stichworte Bürofläche: 211,00 m², Bundesland: Berlin, Distanz zum Hauptbahnhof: 20.0, Distanz zur Autobahn: 10.0, Distanz zum Flughafen: 40.0, Distanz zu U-/S-Bahn: 5.0

Weitere Services

Lust auf eine Besichtigung?
Eine Frage zur Immobilie?
Nachricht hinzufügen
Mit der Nutzung der oben angegebenen Telefonnummer oder durch Klicken auf „Kontaktieren“ akzeptierst Du die Allgemeinen Nutzungsbedingungen, denen Du jederzeit widersprechen kannst. Weitere Informationen zum Datenschutz

Über den Anbieter

GESOBAU AGMaklerbüro
Stiftsweg 1, 13187 Berlin
partner badge
10 Jahre Partnerschaft
Daniel MakusDein Kontakt
Keine Telefonnummer hinterlegt
Keine Telefonnummer hinterlegt

Weitere Unterlagen

Online-ID: 2m73y5g
Referenznummer: 2324943557
GESOBAU AG
Bewertung: 4,2 von 5 Sternen
Nachricht hinzufügen
Mit der Nutzung der oben angegebenen Telefonnummer oder durch Klicken auf „Kontaktieren“ akzeptierst Du die Allgemeinen Nutzungsbedingungen, denen Du jederzeit widersprechen kannst. Weitere Informationen zum Datenschutz
Wie zufrieden bist du mit dieser Seite (nicht mit der Immobilie selbst)?