Version: 8.24.0Navigation ĂĽberspringen
10,60 €
305 m² BĂĽrofläche  â€˘  teilbar ab 305 m²
Immowelt logo

Bürofläche zur Miete • provisionsfrei
10,60 €
/m²
305 m² BĂĽrofläche  â€˘  teilbar ab 305 m²

Günstige Büroflächen ... Nahe Messe Riem

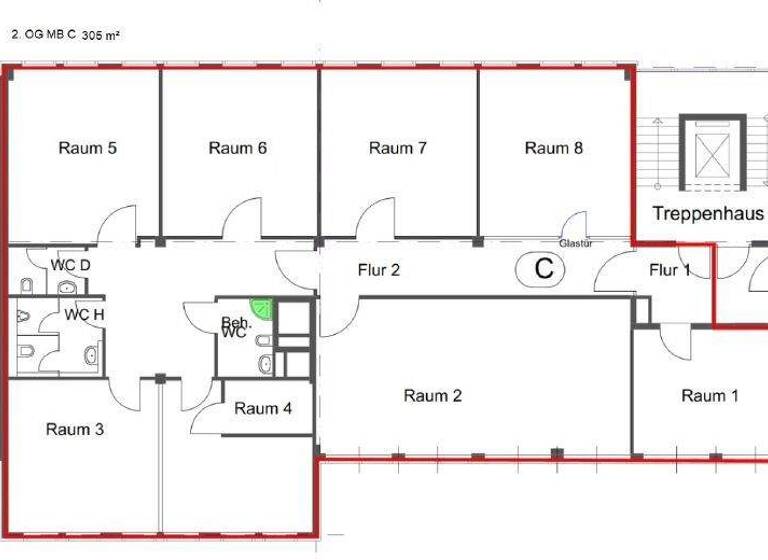
Kurzbeschreibung Günstige Büroflächen ... Nahe Messe Riem Objekt Das Büro- und Geschäftsgebäude befindet sich im Herzen des Zamilaparks. Das Objekt wurde vor wenigen Jahren grundlegend renoviert. Im Erdgeschoss befinden sich verschiedene Ladeneinheiten, der große Vorplatz mit Sitzgelegenheiten und Begrünung bietet sich ideal für die Mittagspause an. Das Büro im 2. Obergeschoss ist in 7 unterschiedlich große Räume abgetrennt und kann sowohl als Einzel- und Mehrpersonenbüros genutzt werden.

Merkmale

  • Bezug: nach Vereinbarung
  • Personenaufzug
  • 10 Stellplätze
  • Raumaufteilung flexibel
  • Bodenbelag: Teppich
- Teppichboden
- Deckenrasterleuchten vorhanden
- Fensterbankkabelkanäle für die IT-Verkabelung
- Personenlift
- normale Raumhöhe
- auĂźen liegender Sonnenschutz

Grundrisse

Grundrisse
1 / 1

Realisiere Dein Projekt

Bausubstanz und Energie

Energieausweis

Endenergiebedarf (Wärme)

Endenergiebedarf (Strom)

  • Baujahr1987
  • Zustand der ImmobilieGepflegt
  • HeizungsartZentralheizung
  • EnergieträgerGas
Immowelt logo

Mietkosten

Monatliche Miete
10,60 €/m²
Nebenkosten
3,50 €
Provision fĂĽr Mieter
provisionsfrei
Kaution
keine Angabe

Lage

address-icon
Bogenhausen, München (81929)
Der Anbieter hat die genaue Adresse nicht freigegeben
- zwischen A94 und Daglfinger StraĂźe
- S-Bahn Daglfing fußläufig erreichbar, Bushaltestelle mit Anbindung zum Max-Weber-Platz vor der Tür
- verschiedene Geschäfte und Läden befinden sich direkt im Erdgeschoss des Gebäudes
- ein Restaurant ist ebenfalls im Haus ansässig

Weitere Informationen

Sonstiges - 10 Stellplätze in der Tiefgarage (à € 65,00 zzgl. gesetzl. MwSt.)
- Archivflächen auf Anfrage
- die dargestellten Impressionen zeigen Ausbaubeispiele aus dem Gebäude
- Gewerbesteuerhebesatz von 490 %
- ein Energiebedarfsausweis (gültig bis 25. August 2029) liegt vor, der Endenergiebedarf für Wärme beträgt 215,2 kWh/(m²*a) und für Strom 23,0 kWh/(m²*a), wesentlicher Energieträger für die Heizung des Gebäudes ist Gas Stichworte Stellplatz vorhanden, Gesamtfläche: 305,00 m²

Weitere Services

Lust auf eine Besichtigung?
Eine Frage zur Immobilie?
Nachricht hinzufĂĽgen
Mit der Nutzung der oben angegebenen Telefonnummer oder durch Klicken auf „Kontaktieren“ akzeptierst Du die Allgemeinen Nutzungsbedingungen, denen Du jederzeit widersprechen kannst. Weitere Informationen zum Datenschutz

Ăśber den Anbieter

Breitwieser Roth GmbH
Innere Wiener Str. 7b, 81667 MĂĽnchen
partner badge
Partnerschaft
Online-ID: 2nysr5p
Referenznummer: 12186
Breitwieser Roth GmbH
Breitwieser Roth GmbH
Bewertung: 5 von 5 Sternen
Nachricht hinzufĂĽgen
Mit der Nutzung der oben angegebenen Telefonnummer oder durch Klicken auf „Kontaktieren“ akzeptierst Du die Allgemeinen Nutzungsbedingungen, denen Du jederzeit widersprechen kannst. Weitere Informationen zum Datenschutz
Wie zufrieden bist du mit dieser Seite (nicht mit der Immobilie selbst)?