Großzügige Gewerbehalle in Bad Honnef -ideal für Atelier, Büro oder Studio -ruhiges Gewerbe gesucht
Zur Vermietung steht eine gepflegte und vielseitig nutzbare Gewerbeeinheit mit ca. 158 m² in 53604 Bad Honnef. Die Immobilie befindet sich in einem sehr gepflegten Zustand und eignet sich ideal für ruhige Gewerbenutzungen.
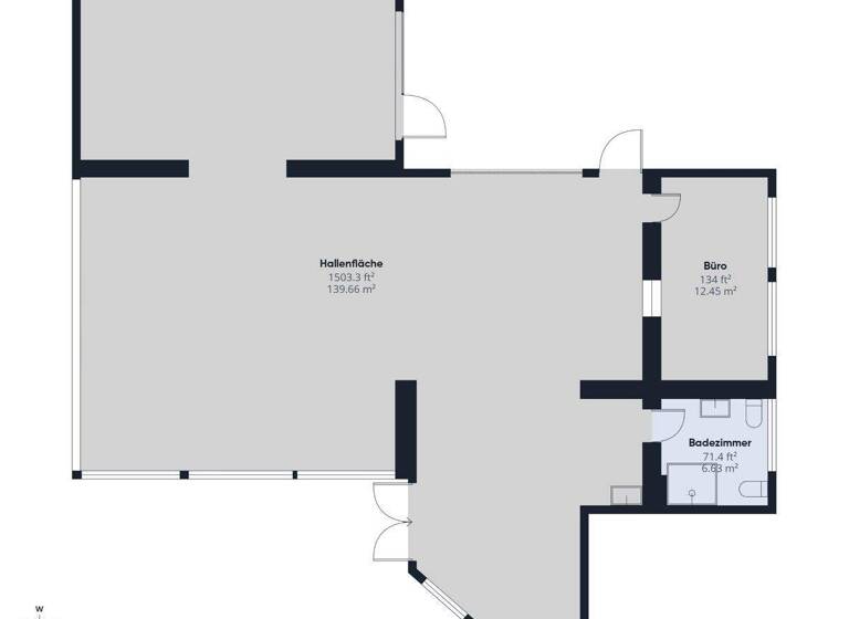
Die Einheit besteht aus einer großzügigen Hallenfläche, die flexibel genutzt werden kann, beispielsweise als Künstleratelier, Architekturbüro im Großraumbüro-Stil, Studio, Werkstatt für kreative Tätigkeiten oder andere ruhige Gewerbe.
Zusätzlich verfügt die Gewerbeeinheit über ein separates Büro mit ca. 12 m² sowie ein Badezimmer mit ca. 6,6 m².
Ein besonderes Highlight ist die separate Raucherterrasse im hinteren Bereich, die vom Arbeitsbereich aus zugänglich ist und eine angenehme Möglichkeit für Pausen im Freien bietet.
Bei Bedarf kann die Hallenfläche noch einmal unterteilt werden, sodass beispielsweise eine separate Großraumgarage oder zusätzliche Lagerfläche entsteht.
Bitte beachten Sie, dass KFZ-Gewerbe oder laute Gewerbenutzungen nicht möglich sind.
Die Immobilie sowie die Gewerbeeinheit befinden sich insgesamt in einem sehr gepflegten und funktionalen Zustand und bieten eine professionelle Arbeitsumgebung.
Virtueller 360-Grad-Rundgang: Möchten Sie die Gewerbefläche in einem virtuellen Rundgang entdecken? Fordern Sie jetzt ganz einfach einen interaktiven 360-Grad-Rundgang an. Kontaktieren Sie uns, um den Zugang zum Rundgang zu erhalten!
Merkmale
ca. 158 m² Gewerbefläche großzügige Hallenfläche separates Büro (ca. 12 m²) Badezimmer (ca. 6,6 m²) separate Raucherterrasse im hinteren Bereich flexible Nutzungsmöglichkeiten (z. B. Atelier, Büro, Studio) Möglichkeit zur Unterteilung der Hallenfläche nutzbar als Großraumbüro oder kreative Arbeitsfläche ausreichende Elektroanschlüsse und gute Stromversorgung gute Beleuchtungssituation gepflegter Gesamtzustand der Immobilie gute Arbeitsatmosphäre durch großzügige Raumstruktur
Grundrisse
Grundrisse
1 / 1
Realisiere Dein Projekt
Bausubstanz und Energie
Möchtest du Details zum Energieverbrauch?
Mietkosten
Nettomiete zzgl. Nebenkosten
8,35 €/m²
1.320 €
Provision für Mieter
3 Nettokaltmieten zzgl. 19% MwSt.
Kaution
keine Angabe
Lage
Bad Honnef (53604)
Der Anbieter hat die genaue Adresse nicht freigegeben
Die Gewerbeeinheit befindet sich in Bad Honnef, einer attraktiven Stadt im Rhein-Sieg-Kreis mit guter Infrastruktur und Verkehrsanbindung. Die Lage bietet eine gute Erreichbarkeit für Mitarbeiter, Kunden und Lieferanten.
Die Umgebung ist geprägt von einer Mischung aus Gewerbe und Dienstleistungen und eignet sich besonders gut für ruhige und professionelle Arbeitskonzepte.
Weitere Informationen
Sonstiges
Sonstige Hinweise / Rechtliche Hinweise
Alle Angaben und Informationen zu diesem Objekt beruhen auf den uns vom Eigentümer bzw. Vermieter erteilten Auskünften. Eine Gewähr für die Richtigkeit, Vollständigkeit und Aktualität dieser Angaben wird von der IAD Deutschland GmbH nicht übernommen. Sämtliche Objektangaben sind vom Interessenten eigenständig zu prüfen. Irrtümer bleiben vorbehalten. Dieses Angebot ist freibleibend.
Mit der Anfrage bei der IAD Deutschland GmbH und der anschließenden Inanspruchnahme unserer Maklerdienstleistungen kommt ein Maklervertrag zwischen dem Interessenten und der IAD Deutschland GmbH zustande.
Sofern aufgrund unserer Tätigkeit ein wirksamer Mietvertrag über das angebotene Objekt mit der Eigentümerseite zustande kommt, verpflichtet sich der Mieter zur Zahlung einer Maklercourtage in Höhe von drei Monats-Kaltmieten zuzüglich der gesetzlichen Mehrwertsteuer (derzeit 19 %) an die IAD Deutschland GmbH. Die Provision ist mit Abschluss des Mietvertrages verdient und fällig.
Besichtigungshinweis
Die IAD Deutschland GmbH ist durch den Eigentümer mittels eines schriftlichen Makleralleinauftrages mit der Vermittlung der Immobilie beauftragt. Ein Betreten des Grundstücks oder der Mieträume ist ausschließlich nach vorheriger Terminvereinbarung und in Begleitung eines Mitarbeiters der IAD Deutschland GmbH gestattet.
Gerne stehen wir Ihnen zur Vereinbarung eines individuellen Besichtigungstermins zur Verfügung.
Stichworte
Gesamtfläche: 158,00 m²