Version: 8.24.0Navigation überspringen
495.000 €
2 Zimmer  •  69,9 m²  •  EG
Immowelt logo

Wohnung zum Kauf - Erstbezug • provisionsfrei
495000 €
7.083 €/m²
2 Zimmer  •  69,9 m²  •  EG

2-Zimmer EG Wohnung mit Garten / Energieklasse A+ / Tiefgarage / Dachterrasse für Alle!

Das Projekt mit insgesamt 15 Eigentumswohnungen wird nach den neuesten Vorgaben des GEG erstellt und bietet somit einen Top Energiestandart - Gebäudeeffizienzklasse A+.
Alle Wohnungen sind mit Fußbodenheizung ausgestattet, diese wird über eine Luft-Wärmepumpe beheizt. Eine Photovoltaikanlage produziert den eigenen Strom für diese Heiztechnik so dass nur noch wenig Strom zugekauft werden werden muss.
Durch dieses Konzept sind niedrige Energiekosten garantiert und Sie sind unabhängig für die Zukunft.

Alle Wohnungen werden schwellenfrei durch einen Personenaufzug erreicht, der Aufzug erschließt ebenfalls das Untergeschoss und das 3. Obergeschoss mit der gemeinschaftlichen Dachterrasse.
Auf dieser Dachterrasse finden alle Bewohner einen schönen Platz und können den Blick auf den Bodensee und die Alpen genießen.

Bei allen Wohnungen im Erdgeschoss wurden Sondernutzungsrechte an Gartenflächen begründet.
Die Wohnungen im 1. und 2. Obergeschoss verfügen über eine großzügen überdachten Balkon mit ca. 15 m².

Im Untergeschoss ist für jede Wohnung ein Kellerraum vorhanden.

Merkmale

  • Bezug: Frühjahr 2026
  • Erdgeschoss
  • Personenaufzug
  • Keller
  • Tiefgarage
  • Gäste-WC
  • Balkon

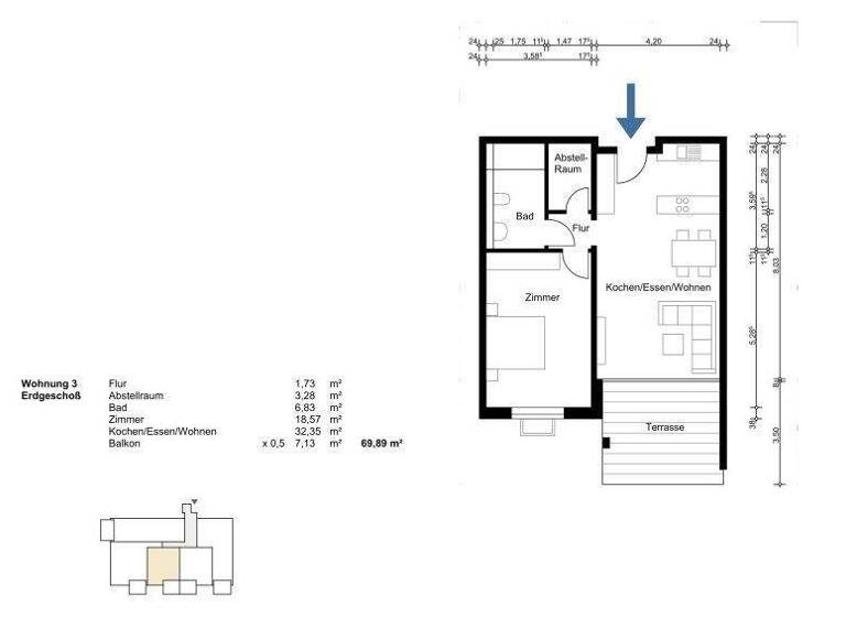
Grundrisse

Grundrisse
1 / 3

Realisiere Dein Projekt

Bausubstanz und Energie

Energieausweis

A+
  • Baujahr2024 / 2025
  • Zustand der ImmobilieNeubau, Massivhaus, Erstbezug
  • HeizungsartZentralheizung: Fußbodenheizung
  • EnergieträgerSolar, Luft-/Wasser-Wärmepumpe
Immowelt logo

Preisdetails

Kaufpreis
495000 €
7.082,56 €/m²
Provision für Käufer
provisionsfrei; keine Käufer-Maklerprovision
Geschätzte Gesamtkosten
529.650 €1
Kaufpreis
495.000 €
Notarkosten (1,5%)
7.425 €
Grunderwerbsteuer (5%)
24.750 €
Grundbucheintrag (0,5%)
2.475 €
1Der angezeigte Wert ist eine automatisch berechnete Schätzung von immowelt.
2Bei den Angaben handelt es sich um ortsübliche Werte. Individuelle Kosten können abweichen.

Lage

address-icon
LudwigshafenBodman-Ludwigshafen (78351)
Der Anbieter hat die genaue Adresse nicht freigegeben
Rathausstraße 1 - Bodman-Ludwigshafen

Diese Neubau Eigentumswohnungen entstehen in seenaher, sehr guter, zentraler und dennoch sehr ruhiger Wohnlage von "Ludwigshafen".
Das Bodenseeufer mit Promenade sowie das Strandbad sind in ca. 3 Gehminuten erreichbar.

Bodman-Ludwigshafen besteht, wie der Name schon vermuten lässt, aus den beiden Orten Bodman und Ludwigshafen. Beide Orte haben ihren eigenen Charakter, beide haben ihre eigene Geschichte, die über Jahrhunderte in getrennten Bahnen verlief. Seit 1975 gehen die früher selbständigen Orte ihren Weg gemeinsam.

"Ludwigshafen" liegt am westlichen Bodensee zwischen "Überlingen" und "Radolfzell" und ist einer der beliebtesten Orte am Bodensee.
Eine sehr gute Infrastruktur mit sämtlichen Einkaufsmöglichkeiten und mehreren Restaurants ist im Ort vorhanden.
Über die sehr nahe gelegene Autobahnzufahrt in Stockach ist eine sehr gute Anbindung Richtung Stuttgart, Singen etc. vorhanden.
Ein Bahnhof ist im Ort vorhanden mit sehr guter Anbindung Richtung Überlingen / Friedrichshafen und Richtung Radolfzell / Singen.

Weitere Informationen

Sonstiges Der Endenergiebedarf des Gebäudes beträgt 22 kWh/(m² a) - Energieeffizienzklasse A+.
Gebäude nach neuester GEG 2024 mit Luft- Wärmepumpe und Photovoltaik.

Die Wohnfläche dieser Wohnung im Erdgeschoss beläuft sich auf ca. 69,89 m².
Die genaue Raumaufteilung entnehmen Sie bitte beigefügtem Grundrissplan. Stichworte Sonstiges/Wohnen: seniorengerechtes Wohnen Serviceleistungen: Hausmeister

Weitere Services

Lust auf eine Besichtigung?
Eine Frage zur Immobilie?
Nachricht hinzufügen
Mit der Nutzung der oben angegebenen Telefonnummer oder durch Klicken auf „Kontaktieren“ akzeptierst Du die Allgemeinen Nutzungsbedingungen, denen Du jederzeit widersprechen kannst. Weitere Informationen zum Datenschutz

Über den Anbieter

Leinerstraße 20, 78462 Konstanz
partner badge
Partnerschaft
Herr Philipp Zimmermann
Herr Philipp ZimmermannDein Kontakt
Online-ID: 2mzns5t
Referenznummer: E-266-3
Philipp Zimmermann Immobilien GmbH & Co. KG
title
Philipp Zimmermann Immobilien GmbH & Co. KG
Nachricht hinzufügen
Mit der Nutzung der oben angegebenen Telefonnummer oder durch Klicken auf „Kontaktieren“ akzeptierst Du die Allgemeinen Nutzungsbedingungen, denen Du jederzeit widersprechen kannst. Weitere Informationen zum Datenschutz
Wie zufrieden bist du mit dieser Seite (nicht mit der Immobilie selbst)?