Version: 8.24.0Navigation überspringen
iad Deutschland GmbH
990 €
3 Zimmer  •  110 m² Bürofläche

Bürofläche zur Miete
990 €
3 Zimmer  •  110 m² Bürofläche

Moderne Büroetage mit gehobener Ausstattung in zentraler Lage von Ransbach-Baumbach

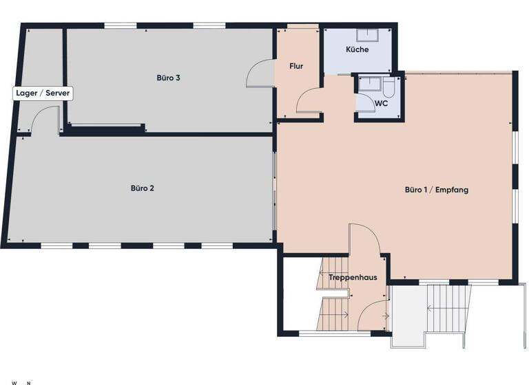
Zur Vermietung steht eine hochwertig ausgestattete Büroetage in zentraler Lage von Ransbach-Baumbach, die modernen Anforderungen an Arbeitsqualität, Flexibilität und Außenwirkung in besonderem Maße gerecht wird. Die Bürofläche mit ca. 110 m² bietet ein professionelles Umfeld für Unternehmen, die Wert auf eine repräsentative Adresse und eine durchdachte Raumstruktur legen.

Die Etage besticht durch eine großzügige, offene Raumgestaltung mit hohem Tageslichteinfall. Großflächige Fenster sorgen für eine helle, angenehme Arbeitsatmosphäre. Bereits vorhandene Glasabtrennungen ermöglichen eine klare Strukturierung der Fläche, ohne den offenen Charakter zu beeinträchtigen, und schaffen transparente Rückzugs- oder Besprechungsbereiche.

Die technische Ausstattung ist auf zeitgemäße Büro- und Teamkonzepte ausgelegt: Leitungsführungen für Büroinseln sind bereits integriert und erlauben eine flexible Anordnung von Arbeitsplätzen. Ergänzend stehen ein separates Büro sowie ein eigener Serverraum zur Verfügung, die eine effiziente Organisation betrieblicher Abläufe unterstützen.

Dank der exponierten Lage mit sehr guter Sichtbarkeit von der Straße eignet sich die Büroetage ideal für Unternehmen, die neben funktionalen Aspekten auch eine starke Präsenz nach außen wünschen. Parkmöglichkeiten befinden sich direkt am Gebäude. Eine Erweiterung der Bürofläche ist nach individueller Absprache grundsätzlich realisierbar.

Virtueller 360-Grad-Rundgang:
Möchten Sie die Gewerbefläche in einem virtuellen Rundgang entdecken? Fordern Sie jetzt ganz einfach einen interaktiven 360-Grad-Rundgang an. Kontaktieren Sie uns, um den Zugang zum Rundgang zu erhalten!

Merkmale

  • Keller
Bürofläche ca. 110 m²
Zentrale Lage mit sehr guter Sichtbarkeit
Großzügige, lichtdurchflutete Räume
Offene Raumstruktur mit flexiblen Nutzungsmöglichkeiten
Vorhandene Glasabtrennungen
Leitungsführungen für Büroinseln integriert
Fußbodenheizung
Jalousien
Mehrere Netzwerkdosen
Vielzahl an Stromanschlüssen
Separates Büro
Eigener Serverraum
Sanitärbereich (WC)
Kleine Küche mit Kühl- und Gefrierschrank
Parkmöglichkeiten direkt am Gebäude
Gehobene Ausstattungsqualität

Grundrisse

Grundrisse
1 / 1

Realisiere Dein Projekt

Bausubstanz und Energie

Der Anbieter hat keine Informationen zum Energieverbrauch bereit gestellt.
  • Zustand der ImmobilieGepflegt
MediumRectangleTop

Mietkosten

Nettomiete
990 €
Nebenkosten
180 €
Provision für Mieter
3 Nettokaltmieten zzgl. 19% MwSt.
Kaution
3450 €
Weitere Preisinformationen
Nettokaltmiete: 990,00 EUR

Lage

address-icon
Ransbach-Baumbach (56235)
Der Anbieter hat die genaue Adresse nicht freigegeben
Die Büroetage befindet sich in zentraler Lage von Ransbach-Baumbach und bietet eine gute Erreichbarkeit sowie eine sehr gute Anbindung an das regionale und überregionale Verkehrsnetz. Die Umgebung verfügt über eine gewachsene Infrastruktur mit kurzen Wegen zu Einkaufsmöglichkeiten, Gastronomie und weiteren Dienstleistungsangeboten.

Weitere Informationen

Sonstiges Sonstige Hinweise / Rechtliche Hinweise

Alle Angaben und Informationen zu diesem Objekt beruhen auf den uns vom Eigentümer bzw. Vermieter erteilten Auskünften. Eine Gewähr für die Richtigkeit, Vollständigkeit und Aktualität dieser Angaben wird von der ID Deutschland GmbH nicht übernommen. Sämtliche Objektangaben sind vom Interessenten eigenständig zu prüfen. Irrtümer bleiben vorbehalten. Dieses Angebot ist freibleibend.

Mit der Anfrage bei der ID Deutschland GmbH und der anschließenden Inanspruchnahme unserer Maklerdienstleistungen kommt ein Maklervertrag zwischen dem Interessenten und der ID Deutschland GmbH zustande.

Sofern aufgrund unserer Tätigkeit ein wirksamer Mietvertrag über das angebotene Objekt mit der Eigentümerseite zustande kommt, verpflichtet sich der Mieter zur Zahlung einer Maklercourtage in Höhe von drei Monats-Kaltmieten zuzüglich der gesetzlichen Mehrwertsteuer (derzeit 19 %) an die ID Deutschland GmbH. Die Provision ist mit Abschluss des Mietvertrages verdient und fällig.

Besichtigungshinweis

Die IAD Deutschland GmbH ist durch den Eigentümer mittels eines schriftlichen Maklerauftrages mit der Vermittlung der Immobilie beauftragt.
Ein Betreten des Grundstücks oder der Mieträume ist ausschließlich nach vorheriger Terminvereinbarung und in Begleitung eines Mitarbeiters der ID Deutschland GmbH gestattet.

Gerne stehen wir Ihnen zur Vereinbarung eines individuellen Besichtigungstermins zur Verfügung. Stichworte Gesamtfläche: 110,00 m²

Weitere Services

Lust auf eine Besichtigung?
Eine Frage zur Immobilie?
Nachricht hinzufügen
Mit der Nutzung der oben angegebenen Telefonnummer oder durch Klicken auf „Kontaktieren“ akzeptierst Du die Allgemeinen Nutzungsbedingungen, denen Du jederzeit widersprechen kannst. Weitere Informationen zum Datenschutz

Über den Anbieter

Schleusenstraße 15-17, 60327 Frankfurt am Main
partner badge
3 Jahre Partnerschaft
Herr Andreas EickDein Kontakt
Online-ID: 2mnpk5y
Referenznummer: iad-4062
iad Deutschland GmbH
iad Deutschland GmbH
Bewertung: 4 von 5 Sternen
Nachricht hinzufügen
Mit der Nutzung der oben angegebenen Telefonnummer oder durch Klicken auf „Kontaktieren“ akzeptierst Du die Allgemeinen Nutzungsbedingungen, denen Du jederzeit widersprechen kannst. Weitere Informationen zum Datenschutz
MediumRectangleTop
MediumRectangleBottom
MediumRectangleTop
Wie zufrieden bist du mit dieser Seite (nicht mit der Immobilie selbst)?