Version: 8.24.0Navigation überspringen
Robert C. Spies Gewerbe und Investment GmbH & Co. KG
3.000 €
105 m² Verkaufsfläche  •  teilbar ab 289,6 m²

Verkaufsfläche zur Miete
3.000 €
105 m² Verkaufsfläche  •  teilbar ab 289,6 m²

Flexibel Nutzbare Gewerbefläche in Bremen Walle

Merkmale

  • Raumaufteilung flexibel
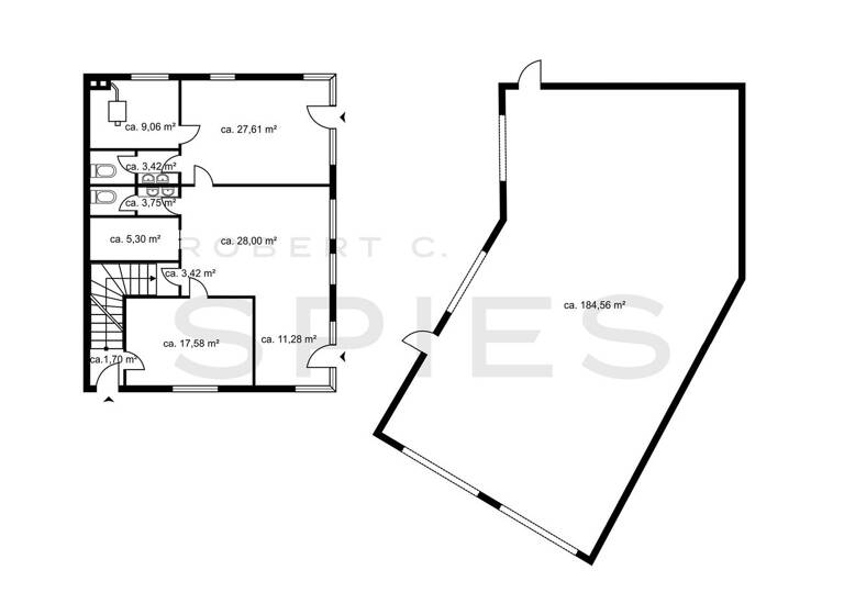
Die im Erdgeschoss gelegene Immobilie bietet auf 289,56 m² aufgeteilt in einer Bürofläche mit 105 m², einem kleinen Hof und einer Garagenfläche mit ca. 184,56 m² eine offene und einladende Raumaufteilung. Die Fensterfronten sorgen für reichlich Tageslicht und schaffen eine helle, freundliche Atmosphäre.

Das Erdgeschoss ist ideal für vielfältige Nutzungsmöglichkeiten und eignet sich sowohl für gewerbliche als auch für private Zwecke.

Ein hervorragendes Raumkonzept, das viel Raum für Individualität und Nutzung lässt, sowie die lichtdurchflutete Atmosphäre machen dieses Objekt besonders attraktiv.

Ein besonderes Plus: Die langjährig genutzten Garagentore werden vom Eigentümer erneuert, sodass eine moderne und komfortable Nutzung gewährleistet ist.

Ausstattungsmerkmale im Überblick:

- Bürofläche mit ca. 105 m²
- Garage mit ca. 184,56 m²
- Hoffläche 154,35 m²
- Zwei große Container stehen als weitere Lagerfläche zur Verfügung
- Große Fenster
- Praktischer Fliesenboden
- Einbauküche
- Separate Damen und Herren WCs
- Voll nutzbare Garagenfläche mit neuer Toranlage
- Kleiner Hofbereich als zusätzlicher Mehrwert


Der Mietpreis von 9,06 EUR/m² nettokalt gilt bei einer Übergabe im jetzigen Zustand. Sofern eine umfassende Renovierung der Fläche auf Wunsch des Mieters veranlasst und durch den Eigentümer umgesetzt werden soll, wird je nach Umbauaufwand ein individuelles Mietangebot unterbreitet.

Grundrisse

Grundrisse
1 / 1

Realisiere Dein Projekt

Bausubstanz und Energie

Der Anbieter hat keine Informationen zum Energieverbrauch bereit gestellt.
  • Zustand der ImmobilieGepflegt
MediumRectangleTop

Mietkosten

Warmmiete
3.400 €
Nettomiete
3.000 €
Nebenkosten
400 €
Provision für Mieter
1,5 Netto-Monatsmieten
Provisionspflichtig für den Mieter! Unsere Objektangaben basieren auf den uns erteilten Informationen. Eine Haftung für die Richtigkeit und Vollständigkeit können wir deshalb nicht übernehmen.
Kaution
3 Bruttomieten

Lage

address-icon
WestendBremen (28217)
Der Anbieter hat die genaue Adresse nicht freigegeben
Die angebotene Gewerbefläche befindet sich im Bremer Stadtteil Walle und überzeugt durch eine hervorragende Erreichbarkeit. Dank der unmittelbaren Nähe zu den Autobahnen A27 und A281 sind sowohl das Bremer Umland als auch überregionale Standorte schnell erreichbar. Gleichzeitig bietet der Standort eine sehr gute Anbindung an den öffentlichen Nahverkehr, sodass auch Mitarbeiter und Kunden bequem anreisen können.



Gerade für handwerkliche und gewerblich orientierte Betriebe ist die Lage ideal: Kurze Wege zu den wichtigsten Verkehrsachsen sowie die Nähe zum Bremer Industriehafen und zur Innenstadt schaffen optimale Voraussetzungen für eine effiziente Organisation von Terminen, Materialtransporten und Kundenkontakten.

Das Umfeld ist geprägt von einer Mischung aus Dienstleistungs- und Handelsbetrieben sowie Wohnnutzung, was zusätzlich eine solide Grundfrequenz und eine gute Infrastruktur mit Einkaufsmöglichkeiten und Gastronomie gewährleistet.

Weitere Informationen

Sonstiges Im Rahmen der architektonischen Möglichkeiten ist die Fläche variabel gestaltbar. Insofern ist es möglich, dass der zukünftige Nutzer die Fläche nach seinen individuellen Bedürfnissen konfigurieren kann.

Die angefügten Grundrisse zeigen die aktuelle Aufteilung der Flächen, denen nicht gefolgt werden muss.

Der Vermieter geht gerne nach Bedarf auf individuelle Mieterwünsche ein. Diese können, je nach Aufwand und Vertragslaufzeit zu einer Anpassung des Mietzinses führen.

Weitere Services

Lust auf eine Besichtigung?
Eine Frage zur Immobilie?
Nachricht hinzufügen
Mit der Nutzung der oben angegebenen Telefonnummer oder durch Klicken auf „Kontaktieren“ akzeptierst Du die Allgemeinen Nutzungsbedingungen, denen Du jederzeit widersprechen kannst. Weitere Informationen zum Datenschutz

Über den Anbieter

Domshof 21, 28195 Bremen
partner badge
Partnerschaft
Frau Lea SchernikauDein Kontakt
Online-ID: 2lhb75d
Referenznummer: 33365/1
Robert C. Spies Gewerbe und Investment GmbH & Co. KG
Robert C. Spies Gewerbe und Investment GmbH & Co. KG
Nachricht hinzufügen
Mit der Nutzung der oben angegebenen Telefonnummer oder durch Klicken auf „Kontaktieren“ akzeptierst Du die Allgemeinen Nutzungsbedingungen, denen Du jederzeit widersprechen kannst. Weitere Informationen zum Datenschutz
MediumRectangleTop
MediumRectangleTop
Wie zufrieden bist du mit dieser Seite (nicht mit der Immobilie selbst)?