




Wohnung zum Kauf75000 €1.771 €/m²2 Zimmer • 42,4 m² • frei ab sofort
75000 €
1.771 €/m²
2 Zimmer • 42,4 m² • frei ab sofort
Hier können Sie direkt einziehen! - 2 Zimmer-Eigentumswohnung mit Stellplatz
Merkmale
- EinbaukĂĽche
- Keller
- AuĂźen-Stellplatz
- teilweise möbliert
- Badewanne
- Bodenbelag: Fliesen
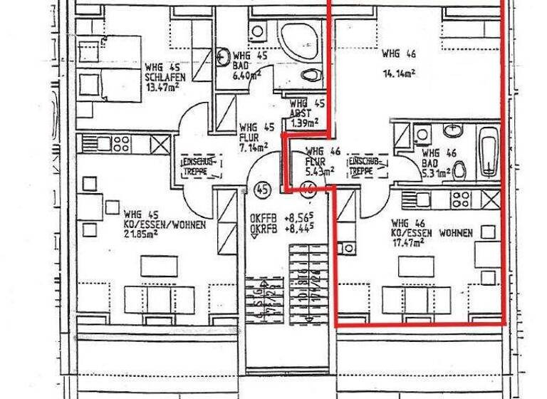
Grundrisse
Grundrisse
1 / 1
Realisiere Dein Projekt
Bausubstanz und Energie
Energieausweis
D
- Baujahr1998
- EnergieträgerGas
Preisdetails
Kaufpreis
75000 €
1.770,96 €/m²
Hausgeld
245.27 €
Provision für Käufer
2.380,00 Euro Fixprovision inkl. Mehrwertsteuer
Weitere Preisinformationen
Soll-Mieteinnahmen pro Monat: 450,00 EUR
Geschätzte Gesamtkosten
80.250 €1
Kaufpreis
75.000 €
Kaufnebenkosten
5.250 €
2Notarkosten (1,5%)
1.125 €
Grunderwerbsteuer (5%)
3.750 €
Grundbucheintrag (0,5%)
375 €
1Der angezeigte Wert ist eine automatisch berechnete Schätzung von immowelt.
2Bei den Angaben handelt es sich um ortsübliche Werte. Individuelle Kosten können abweichen.
Lage

Eisenberg (07607)
Der Anbieter hat die genaue Adresse nicht freigegeben
Weitere Informationen
Weitere Services
Lust auf eine Besichtigung?
Eine Frage zur Immobilie?
Ăśber den Anbieter
vbi IMMOBILIENSERVICE in ThĂĽringen GmbHMaklerbĂĽro
Martin-Luther-Str. 2, 07607 Eisenberg
Partnerschaft
Frau Silvana SchlichtDein Kontakt
Online-ID: 2ndql5f
Referenznummer: O3416
Wie zufrieden bist du mit dieser Seite (nicht mit der Immobilie selbst)?




