Version: 8.25.1Navigation überspringen
Heimat Österreich gemeinnützige Wohnungs- u. Siedlungsges. mbH
345.700 €
3 Zimmer  •  76,5 m²  •  1. Geschoss

Wohnung zum Kauf - Erstbezug
345700 €
4.019 €/m²
3 Zimmer  •  76,5 m²  •  1. Geschoss

ERSTBEZUG "ein viertel grün" in Wr. Neustadt - traumhafte 3-Zimmer-Wohnung für Jungfamilien

Erstklassige Wohnqualität in einem aufstrebenden Stadtviertel; Ihr Zuhause umgeben von Grünflächen. Schnelle Erreichbarkeit zu allen wichtigen urbanen Einrichtungen ist garantiert. 

Das gesamte Areal ist verkehrsberuhigt. Die Zufahrt zur Tiefgarage erfolgt über die Stadionstraße. Auszeichnen lässt sich "ein viertel grün" durch seine Besonderheiten wie: Car-Sharing Angebote, eine Quartiersmitte welche für regen Austausch unter Nachbarn sorgt, sowie einen Kindergarten.

Öffentliche Geh- und Radwege verbinden das Aufleben der Natur und das Wohnen im Grünen. Alle wichtigen Einrichtungen für den täglichen Bedarf, sowie Nahversoger für Sie und Ihre Liebsten befinden sich in unmittelbarer Umgebung. 

Hier die Details zu unserem Projekt im Überblick:

* 33 freifinanzierte Eigentumswohnungen, 42 Tiefgaragenstellplätze und 3 Motorradstellplätze
* 55m² - 90m², 2 - 4 Zimmer
* alle Wohnungen mit Freifläche in Form von Terrasse und Eigengarten oder Balkon
* Raffstores
* Parkett
* Fußbodenheizung
* Tiefgarage: Jeder Wohnung sind 1-2 Stellplätze zugeordnet. Weitere Stellplätze können zusätzlich erworben werden.
* ruhige Lage im Grünen
* Einlagerungsräume
* Fahrrad- und Kinderwagenabstellräume
* Waschküchen (nicht ausgestattet)
* Kinderspielplatz mit Sitzmöglichkeiten
* Müllräume
* Photovoltaik am Dach
* HWB Wert ca. 31,2kWh/m²a, fGEE ca. 0,66
* sofort beziehbar

Willkommen in Ihrer neuen Wohnung!

Diese wunderschöne drei Zimmerwohnung im neuen Stadtquartier "ein viertel grün" ist perfekt für Einzelpersonen, Paare oder Familien.

Der großzügige Wohnküchenbereich ist das Highlight der Wohnung. Von dort gelangen Sie auf den Balkon.

Die beiden Schlafzimmer sind vom Vorraum aus begehbar. 

Nähere Details zu Ihrer Traumimmobilie entnehmen Sie den Dokumenten. 

Kaufpreis Wohnung: € 345.700,00

Kaufpreis Stellplatz: € 17.000,00

Kaufpreis inkl. Stellplatz: € 362.700,00

PROVISIONSFREI

 

Hier geht es zu den geförderten Eigentumswohnungen:
Geförderte Eigentumswohnungen - ein viertel grün [https://www.heimat-oesterreich.at/de/Projekte/ERSTBEZUG-ein-viertel-gruen-in-Wiener-Neustadt-gefoerderte-Eigentumswohnungen_pj_29863]

Noch nichts gefunden? Wir informieren Sie über geeignete Immobilienangebote noch vor allen anderen.
Legen Sie jetzt Ihren individuellen Suchagenten unter folgendem Link an. Wir schicken Ihnen passende Immobilien exklusiv vorab zu.
Suchagent anlegen [https://heimat-oesterreich.service.immo/registrieren/de] - https://heimat-oesterreich.service.immo/registrieren/de

Infrastruktur / Entfernungen

Gesundheit
Arzt <2.925m
Apotheke <5.325m
Klinik <5.950m
Krankenhaus <7.475m

Kinder & Schulen
Schule <550m
Kindergarten <2.475m
Höhere Schule <7.200m
Universität <8.075m

Nahversorgung
Supermarkt <2.200m
Bäckerei <2.775m
Einkaufszentrum <5.225m

Sonstige
Bank <500m
Geldautomat <500m
Post <2.875m
Polizei <5.525m

Verkehr
Bus <175m
Bahnhof <2.125m
Autobahnanschluss <3.600m
Flughafen <6.350m

Angaben Entfernung Luftlinie / Quelle: OpenStreetMap

Merkmale

  • Bezug: sofort
  • 1. Geschoss
  • offene Küche
  • Personenaufzug
  • Außen-Stellplatz
  • Balkon

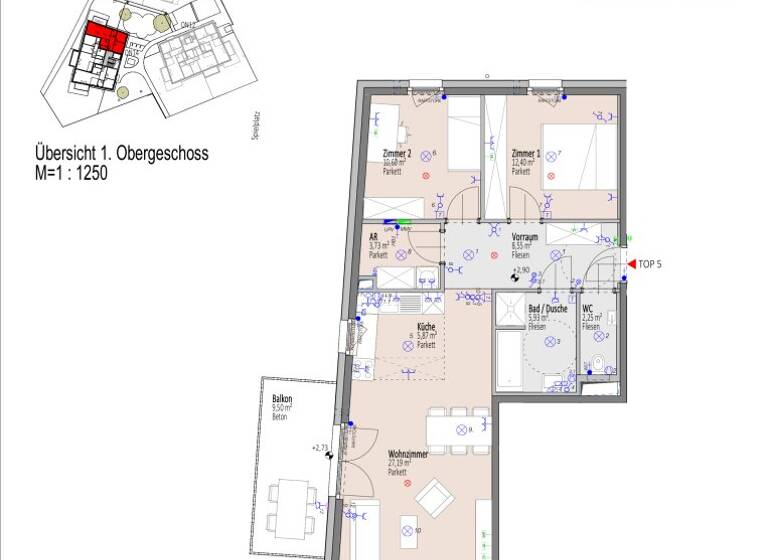
Grundrisse

Grundrisse
1 / 5

Realisiere Dein Projekt

Bausubstanz und Energie

Heizwärmebedarf (HWB)

B

Gesamtenergieeffizienz (fGEE)

A+
  • Baujahr2025
  • Zustand der ImmobilieNeubau, Erstbezug
  • HeizungsartFußbodenheizung
  • EnergieträgerFernwärme
MediumRectangleTop

Preisdetails

Kaufpreis
345700 €
4.018,83 €/m²
Provision für Käufer
Bitte beachte, das Angebot kann bei Vertragsabschluss die Zahlung einer Provision beinhalten. Weitere Informationen erhältst Du vom Anbieter.
Weitere Preisinformationen
1 Stellplatz

Lage

address-icon
Elisabeth Bollenberger - Gasse 10-14Wiener Neustadt (2700)
Erleben Sie urbanes Wohnen inmitten von grünen Freiräumen: Das Wohnprojekt "ein viertel grün" bietet modernen Wohnkomfort in perfekter Lage - direkt gegenüber der Merkurcity. Hier verbinden sich erstklassige Infrastruktur und eine ruhige, grüne Umgebung zu einem einzigartigen Lebensraum für Einzelpersonen, Paare und Familien.
Sowohl das Stadtzentrum von Wiener Neustadt, der Bahnhof als auch die Autobahn A2 sind in wenigen Minuten erreichbar.
Wiener Neustadt bietet neben zahlreichen Einkaufsmöglichkeiten auch einige Restaurants, Bistros, Cafés und Bars, die zum Verweilen einladen. Auch kulturell hat die Stadt einiges zu bieten - von monatlichen Veranstaltungen bis hin zu geschichtsträchtigen Sehenswürdigkeiten.

Weitere Informationen

Sonstiges
Impressionen Wohnung - https://storage.justimmo.at/video/1080p/3kYLAhtNwPq5wDFVcAbSFB.mp4 Stichworte Tiefgarage vorhanden, Fahrradraum, Anzahl der Badezimmer: 1, Anzahl der separaten WCs: 1, Anzahl Balkone: 1, Balkon-Terrassen-Fläche: 9,50 m², Kellerfläche: 3,19 m², Bundesland: Niederösterreich, 4 Etagen, Wohnungsnr.: 14/5

Weitere Services

Lust auf eine Besichtigung?
Eine Frage zur Immobilie?
Nachricht hinzufügen
Mit der Nutzung der oben angegebenen Telefonnummer oder durch Klicken auf „Kontaktieren“ akzeptierst Du die Allgemeinen Nutzungsbedingungen, denen Du jederzeit widersprechen kannst. Weitere Informationen zum Datenschutz

Über den Anbieter

Plainstr. 55, 5020 Salzburg
partner badge
Partnerschaft
Frau Tanja Rath
Frau Tanja RathDein Kontakt

Weitere Unterlagen

Online-ID: 24PUEESYGTDJ
Referenznummer: OBGC202506240958061414329f57884
Heimat Österreich gemeinnützige Wohnungs- u. Siedlungsges. mbH
title
Heimat Österreich gemeinnützige Wohnungs- u. Siedlungsges. mbH
Bewertung: 4,2 von 5 Sternen
Nachricht hinzufügen
Mit der Nutzung der oben angegebenen Telefonnummer oder durch Klicken auf „Kontaktieren“ akzeptierst Du die Allgemeinen Nutzungsbedingungen, denen Du jederzeit widersprechen kannst. Weitere Informationen zum Datenschutz
MediumRectangleTop
MediumRectangleBottom
MediumRectangleTop
Wie zufrieden bist du mit dieser Seite (nicht mit der Immobilie selbst)?