Version: 8.24.0Navigation überspringen
620.000 €
4 Zimmer  •  95,6 m²  •  645 m² Grundstück
Immowelt logo

Einfamilienhaus zum Kauf
620000 €
6.487 €/m²
4 Zimmer  •  95,6 m²  •  645 m² Grundstück

Wohnen mit Potenzial - der perfekte Ort für Ihr neues Kapitel

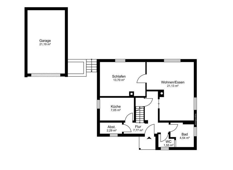
Dieses charmante Zuhause eröffnet dir zahlreiche Möglichkeiten, deine eigenen Wohnideen zu verwirklichen. Bereits beim Betreten des Erdgeschosses empfängt dich eine Diele, von der aus du in die Küche gelangst - perfekt, um sie ganz nach deinem Geschmack zu gestalten. Der großzügige Wohn- und Essbereich schafft eine angenehme Atmosphäre für gesellige Mahlzeiten und entspannte Stunden mit deinen Liebsten. Ergänzt wird diese Etage durch ein helles Tageslichtbad, das mit etwas Modernisierung zu einem echten Wohlfühlort werden kann. Ein geräumiges Schlafzimmer bietet dir zudem ausreichend Platz für deine persönliche Einrichtung.

Im Dachgeschoss stehen dir zwei weitere Zimmer zur Verfügung, die sich flexibel nutzen lassen - ob als Kinderzimmer, Homeoffice oder Hobbyraum, hier sind deiner Fantasie keine Grenzen gesetzt.

Das Untergeschoss überzeugt mit einem besonderen Highlight: einem eindrucksvollen Gewölbekeller, der eine einzigartige Atmosphäre schafft. Zusätzlich findest du hier einen praktischen Waschraum sowie einen weiteren Raum, der sich hervorragend als Werkstatt oder Abstellfläche eignet.

Ein weiteres Highlight der Immobilie ist der liebevoll angelegte Garten mit Terrasse. Hier kannst du entspannte Stunden im Freien genießen - sei es beim Sonnenbaden, bei einer gemütlichen Kaffeepause oder beim Grillen mit Familie und Freunden.

Dieses Haus bietet dir die Möglichkeit, es ganz nach deinen eigenen Vorstellungen zu gestalten. Lass dich von den vielseitigen Möglichkeiten begeistern und entdecke dein neues Zuhause.

Merkmale

  • Bezug: ab sofort
  • 645 m² Grundstück
  • Keller
  • Garage
  • Garten
  • Terrasse
  • Bodenbelag: Fliesen, Teppich
  • offener Kamin

Grundrisse

Grundrisse
1 / 3

Realisiere Dein Projekt

Bausubstanz und Energie

Energieausweis

F
  • Baujahr1950
  • Zustand der ImmobilieGepflegt
  • HeizungsartZentralheizung
  • EnergieträgerGas
Immowelt logo

Preisdetails

Kaufpreis
620000 €
6.487,39 €/m²
Provision für Käufer
3,57 % Käuferprovision inkl. Mehrwertsteuer.
Weitere Preisinformationen
1 Garagenstellplatz
Geschätzte Gesamtkosten
685.534 €1
Kaufpreis
620.000 €
Notarkosten (1,5%)
9.300 €
Grunderwerbsteuer (5%)
31.000 €
Provision für Käufer (3,57%)
22.134 €
Grundbucheintrag (0,5%)
3.100 €
1Der angezeigte Wert ist eine automatisch berechnete Schätzung von immowelt.
2Bei den Angaben handelt es sich um ortsübliche Werte. Individuelle Kosten können abweichen.

Lage

address-icon
LustnauTübingen / Lustnau (72074)
Der Anbieter hat die genaue Adresse nicht freigegeben
Der Stadtteil von Tübingen überzeugt durch seine besonders hohe Lebensqualität sowie die unmittelbare Nähe zur Natur. Das angebotene Haus befindet sich in einer ruhigen und gewachsenen Wohnlage, die auf einer Seite direkt an Wiesen und Waldflächen angrenzt. Diese Lage schafft einen idealen Ausgleich zum oftmals hektischen Alltag und bietet ein Wohnumfeld mit hohem Erholungswert.

Zahlreiche Spazier- und Wanderwege befinden sich praktisch vor der Haustüre und laden dazu ein, die Natur in vollen Zügen zu genießen oder nach einem langen Arbeitstag neue Energie zu tanken. Der nahegelegene Schönbuch erweitert die Freizeitmöglichkeiten zusätzlich und bietet optimale Voraussetzungen für ausgedehnte Waldspaziergänge, sportliche Aktivitäten oder entspannte Stunden im Grünen.

Trotz der naturnahen Lage ist die Anbindung an die Tübinger Innenstadt hervorragend. Schulen, Kindergärten, Einkaufsmöglichkeiten sowie öffentliche Verkehrsmittel sind schnell und bequem erreichbar und sorgen für eine hohe Alltagstauglichkeit. Über die nahegelegene B27 gelangen Sie zudem zügig in Richtung Stuttgart und in die umliegenden Regionen.

Der Stadtteil Lustnau gilt als besonders familienfreundlich und zeichnet sich durch eine angenehme Nachbarschaft sowie ein starkes Gemeinschaftsgefühl aus. Menschen unterschiedlichster Altersgruppen schätzen die Sicherheit, die gewachsene Infrastruktur und die hohe Wohnqualität dieser beliebten Wohnlage.

Weitere Informationen

Stichworte Nutzfläche: 75,24 m², Anzahl der Badezimmer: 1, Anzahl Terrassen: 1, Anzahl der Wohneinheiten: 1, 3 Etagen

Weitere Services

Lust auf eine Besichtigung?
Eine Frage zur Immobilie?
Nachricht hinzufügen
Mit der Nutzung der oben angegebenen Telefonnummer oder durch Klicken auf „Kontaktieren“ akzeptierst Du die Allgemeinen Nutzungsbedingungen, denen Du jederzeit widersprechen kannst. Weitere Informationen zum Datenschutz

Über den Anbieter

Kaiserpassage 9, 72764 Reutlingen
partner badge
Partnerschaft
Herr Mateo JerkovicDein Kontakt
Online-ID: 2npml5j
Referenznummer: 7598
Krams Immobilien GmbH
Krams Immobilien GmbH
Nachricht hinzufügen
Mit der Nutzung der oben angegebenen Telefonnummer oder durch Klicken auf „Kontaktieren“ akzeptierst Du die Allgemeinen Nutzungsbedingungen, denen Du jederzeit widersprechen kannst. Weitere Informationen zum Datenschutz
Wie zufrieden bist du mit dieser Seite (nicht mit der Immobilie selbst)?