

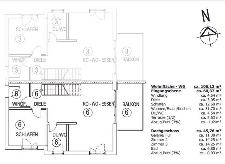
Maisonette zur Miete1.255 €4 Zimmer • 107,9 m² • 2. Geschoss
1.255 €
4 Zimmer • 107,9 m² • 2. Geschoss
Hochwertige Maisonette-Wohnung mit Balkon, Einbauküche, Garage & Stellplätze
Merkmale
- Bezug: nach Vereinbarung
- 2. Geschoss
- Einbauküche
- Personenaufzug
- 3 Stellplätze: Garage, 2 Außen-Stellplätze
- Balkon
- Waschraum
Grundrisse
Grundrisse
1 / 2
Virtueller Rundgang
3D tour

Realisiere Dein Projekt
Bausubstanz und Energie
Energieausweis
A+
- Baujahr2021
- Zustand der ImmobilieMassivhaus, Gepflegt
- EnergieträgerLuft-/Wasser-Wärmepumpe
Mietkosten
Warmmiete
1.630 €
Kaltmiete
11,63 €/m²
1.255 €
Nebenkosten
375 €
Heizkosten
in Warmmiete enthalten
Kaution
3765 €
Weitere Preisinformationen
2 Stellplätze
1 Garagenstellplatz
1 Garagenstellplatz
Lage

Herbolzheim, Neudenau (74861)
Der Anbieter hat die genaue Adresse nicht freigegeben
Weitere Informationen
Weitere Services
Lust auf eine Besichtigung?
Eine Frage zur Immobilie?
Über den Anbieter
CIC Castella Immo Concept GmbHMaklerbüro
Faißtstraße 1, 74076 Heilbronn
6 Jahre Partnerschaft
Herr Andreas DrexlerDein Kontakt
Online-ID: 2n27q5g
Referenznummer: 490

CIC Castella Immo Concept GmbH
Bewertung: 4,6 von 5 Sternen
Wie zufrieden bist du mit dieser Seite (nicht mit der Immobilie selbst)?

