Version: 8.22.4Navigation überspringen
550.000 €
6 Zimmer  •  130 m²

Doppelhaushälfte zum Kauf - Erstbezug
550000 €
4.231 €/m²
6 Zimmer  •  130 m²

NEU! ++ LEBEN IM GRÜNEN BEREICH ++ 4 HÄUSER ++ 8 PKW STELLPLÄTZE ++ GARTEN ++ TERRASSE ++ WIENERWALD ++

LEBEN IM GRÜNEN BEREICH:

Diese vier Häuser liegen nur ca. 10 Minuten mit dem Auto von Wien entfernt und bestechen durch ihre idyllische Lage im Wienerwald.

Sie bieten direkten Zugang zu Wander- und Radwegen sowie eine perfekte Verbindung von Naturidylle und der urbanen Lebensqualität der nahegelegenen Stadt Wien.

Die familienfreundliche Umgebung überzeugt mit ausgezeichneter Verkehrsanbindung, kulturellen und historischen Highlights wie der Pfarrkirche Mariä Namen, der Kaisereiche, der Wegkapelle und der Villa Luise.

Zusätzlich verlaufen hier Pilgerwege wie die Via Sacra, die von Wien durch den Wienerwald nach Mariazell führt, mit einer Länge von etwa 100 Kilometern, und der Wiener Wallfahrerweg, die diese Region besonders spirituell und naturnah erlebbar machen.

Die Häuser sind ab sofort bezugsfertig!

PKW-STELLPLÄTZE:

Zu jedem Haus gehören 2 PKW-Stellplätze im Eigentum, die bereits im Kaufpreis enthalten sind!

--------

HAUS + PKW STELLPLÄTZE + GARTEN + TERRASSE:

--------

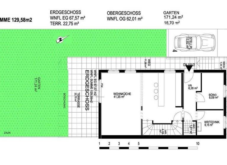
HAUS 1: Gesamtfläche: ca. 362 m²

* Wohnnutzfläche: ca.130 m2 (6 Zimmer)
* Garten + Terrasse + Weg (siehe Grundriss): 232 m²
* 2 PKW Parkplätze: 27,60 m²
* Kaufpreis: EUR 550.000 schlüsselfertig

--------

HAUS 2: Gesamtfläche: ca. 380 m²

* Wohnnutzfläche: ca.130 m²  
* Garten + Terrasse + Weg (siehe Grundriss): 224,11 m²
* 2 PKW Parkplätze: 26,42 m²
* Kaufpreis: EUR 550.000 schlüsselfertig

--------

HAUS 3: Gesamtfläche: ca. 380,42 m² - RESERVIERT!

* Wohnnutzfläche: ca.130 m2 (6 Zimmer)
* Garten + Terrasse + Weg (siehe Grundriss): 224 m²
* 2 PKW Parkplätze: 26,42 m²
* Kaufpreis: EUR 550.000 schlüsselfertig

--------

HAUS 4: Gesamtfläche: ca. 370 m² - RESERVIERT!

* Wohnnutzfläche: ca.130 m²  
* Garten + Terrasse + Weg (siehe Grundriss): 240 m²
* 2 PKW Parkplätze: 27,60 m²
* Kaufpreis: EUR 550.000 schlüsselfertig

--------

LAGE:

Ein detailliertes LAGEEXPOSÉ (60 Seiten!) erfolgt umgehend nach Anfrage!

KEIN BAURECHT, KEINE PACHT:

Sie erwerben IHR EIGENHEIM auf EIGENTUMSGRUND!

LUFT-WÄRMEPUMPE:

Für ein gemütliches Raumklima sorgt eine Fußbodenheizung, welche von einer effizienten TOSHIBA Luft/Wasser-Wärmepumpe versorgt wird.

Weiters zählen zur hochwertigen Ausstattung: Eichenparkettböden, keramischer Belag/Feinsteinzeug, Garten mit Rollrasen, etc.

FENSTER:

 Die Fenster sind mit elektrischen Raffstores ausgestattet, die zusätzlichen Schutz vor Sonne, Gewitter und Kälte bieten.

DISCLAIMER:

Die oben genannten Angaben wurden uns vom Eigentümer (Bauträger) zur Verfügung gestellt und erfolgen unsererseits somit ohne Gewähr für deren Richtigkeit, Vollständigkeit oder Aktualität.

SIE MÖCHTEN AUCH IHRE DERZEITIGE IMMOBILIE VERKAUFEN?

* Wir bieten Ihnen einen Rundum-Service, der den Verkauf Ihrer aktuellen Immobilie deutlich beschleunigt.
* Bei Bedarf bieten wir Ihnen eine Bank-Zwischenfinanzierung, um die Kaufpreisauszahlung Ihrer verkauften Immobilie zu überbrücken, sodass Sie Ihre neue Immobilie nicht verpassen.

ZEITGEMÄSSE UND MASSGESCHNEIDERTE FINANZIERUNG:

* "Hausbank war gestern"!
* Heutzutage haben wir für Sie online und sofortigen Zugang zu den besten und neuesten Finanzprodukten von über 120 Kreditinstituten in Österreich und Deutschland.
* Genau wie beim Immobilienvergleich, ermöglichen wir Ihnen, alle relevante Bankangebote zu vergleichen, um das beste für Sie zu finden!
* Auch Angebote ohne Eigenmittel, mit festen Zinssätzen und einer beeindruckenden Laufzeit von bis zu 45 Jahren sind verfügbar!
* So sparen Sie wirklich viel Zeit, Geld und Nerven!

Wir weisen darauf hin, dass zwischen dem Vermittler und dem zu vermittelnden Dritten ein familiäres oder wirtschaftliches Naheverhältnis besteht.

Der Vermittler ist als Doppelmakler tätig.

Merkmale

  • Bezug: Nach Vereinbarung
  • 2 Stellplätze: 2 Außen-Stellplätze
  • Gäste-WC
  • Garten
  • Terrasse
  • Badezimmer: Badewanne, Bad mit Fenster
  • WG-geeignet
  • Bodenbelag: Fliesen, Parkett

Grundrisse

Grundrisse
1 / 6

Realisiere Dein Projekt

Bausubstanz und Energie

Heizwärmebedarf (HWB)

B

Gesamtenergieeffizienz (fGEE)

A+
  • Baujahr2024
  • Zustand der ImmobilieNeubau, Erstbezug
  • HeizungsartFußbodenheizung
  • EnergieträgerLuft-/Wasser-Wärmepumpe

Preisdetails

Kaufpreis
550000 €
4.230,77 €/m²
Provision für Käufer
3% des Kaufpreises zzgl. 20% USt.
Weitere Preisinformationen
2 Stellplätze

Lage

address-icon
Sulz im Wienerwald (2392)

Weitere Informationen

Stichworte Stellplatz vorhanden, West-Balkon/Terrasse, Nutzfläche: 380,00 m², Anzahl der Badezimmer: 1, Anzahl der separaten WCs: 2, Anzahl Terrassen: 1, Balkon-Terrassen-Fläche: 23,00 m², Gartenfläche: 188,00 m², Bundesland: Niederösterreich, 2 Etagen, Wohnungsnr.: 2

Weitere Services

Lust auf eine Besichtigung?
Eine Frage zur Immobilie?
Nachricht hinzufügen
Mit der Nutzung der oben angegebenen Telefonnummer oder durch Klicken auf „Kontaktieren“ akzeptierst Du die Allgemeinen Nutzungsbedingungen, denen Du jederzeit widersprechen kannst. Weitere Informationen zum Datenschutz

Über den Anbieter

Am Hof 5/10, 1010 WIEN
partner badge
6 Jahre Partnerschaft
TRISTAR ImmobilienDein Kontakt
Online-ID: 2n8pz5d
Referenznummer: OBGC20251210125244688216df25eed
TRISTAR Immobilien GmbH & Co KG
Nachricht hinzufügen
Mit der Nutzung der oben angegebenen Telefonnummer oder durch Klicken auf „Kontaktieren“ akzeptierst Du die Allgemeinen Nutzungsbedingungen, denen Du jederzeit widersprechen kannst. Weitere Informationen zum Datenschutz
Wie zufrieden bist du mit dieser Seite (nicht mit der Immobilie selbst)?