Neu auf dem Markt! Gepflegtes Einfamilienhaus mit viel Platz für die Familie, Außenpool, Einlieger-Wohnung und eigenem ca. 3.520 m ² Privatwald!
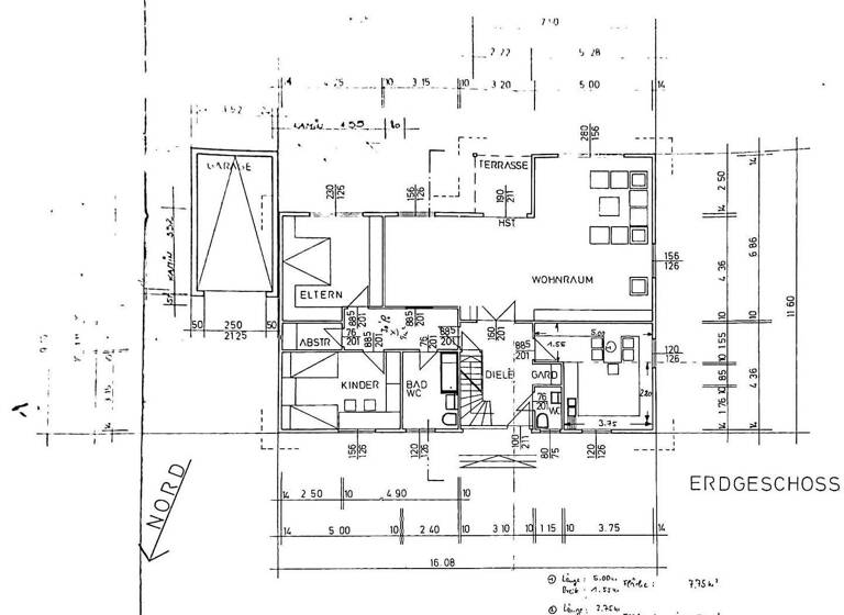
Dieses im Jahr 1973 errichtete Einfamilienhaus überzeugt durch eine solide Bauweise, umfangreiche Modernisierungen sowie eine außergewöhnlich naturnahe und exclusive Wohnlage. Auf einer gesamten Wohnfläche von ca. 188 m², bietet das Erdgeschoss großzügige 144 m ², helle Räume, während das voll unterkellerte Untergeschoss zusätzliche Nutzfläche sowie weitere ca. 44 m² Wohnfläche in Form einer Souterrain Wohnung bereithält. Das Dachgeschoss ist derzeit noch unausgebaut und eröffnet weiteres Entwicklungspotenzial. Die Gesamtbruttofläche beträgt ca. 414 m²
Konstruktion:
Die Baukonstruktion besteht aus einem massiven Kellergeschoss, während die oberen Ebenen aus hochwertigen Holz-Fertigteilen mit 10 cm Wärmedämmung und hinterlüfteter Putzfassade gefertigt sind. Die Kellerdecke wurde mit einer 25 mm Trittschalldämmung und Gussasphalt versehen, die Erdgeschossdecke besteht aus einer gedämmten Holzbalkenkonstruktion. Im Dachgeschoss sorgt eine vollflächige Steinwolledämmung für ein angenehmes Klima und ideale Voraussetzungen für einen späteren Ausbau.
Modernisierte Ausstattung und hochwertiger Wohnkomfort:
In den letzten Jahren wurden umfangreiche Modernisierungen umgesetzt. Beide Badezimmer, im Erdgeschoss sowie im Souterrain, wurden hochwertig und zeitgemäß modernisiert – im EG zb. mit einer großzügigen, bodengleichen Dusche und stilvoller Ausstattung.
Die im Keller gelegene Gaszentralheizung mit Warmwasserspeicher wurde 2018 erneuert und sorgt für eine zuverlässige und effiziente Wärmeversorgung. Alle Fenster wurden 2022 gegen moderne, energieeffiziente Kunststoff-Isolierglas-Schallschutzfenster (Doppelverglasung) ausgetauscht.
Die Küche im Erdgeschoss wurde ebenfalls erneuert und präsentiert sich als hochwertige Einbauküche mit großer Kücheninsel, ideal für Familienleben und gesellige Kochabende.
Das angrenzende, sehr geräumige Wohnzimmer bietet dank großer Fensterflächen ein besonders angenehmes Wohnambiente und verfügt über einen direkten Zugang zur herrlichen Terrasse. Von hier aus eröffnet sich ein harmonischer Blick in den Garten und auf den Pool. Ein gemütlicher Holzofen schafft in den Wintermonaten eine besonders behagliche, natürliche Wärme und ergänzt die vorhandene Gaszentralheizung ideal. So lässt sich der Wohnraum wahlweise effizient über die moderne Heizungsanlage oder atmosphärisch über den Ofen temperieren.
Zusammengefasst befindet sich im Erdgeschoss die hochwertig ausgestattete Küche mit Kochinsel, ein modernisiertes Badezimmer, ein separates Gäste-WC, die Diele mit Garderobenbereich, ein Abstellraum sowie drei weitere gut geschnittene Zimmer, die flexibel als Schlaf-, Kinder-, Arbeits- oder Gästezimmer genutzt werden können.
Souterrainwohnung mit separatem Zugang:
Das Keller- bzw. Souterraingeschoss wurde teilweise zu Wohnzwecken ausgebaut und umfasst eine Einliegerwohnung mit eigenem separatem Außenzugang, bestehend aus einem Wohnraum, einer kleinen Küche sowie einem modernen Bad mit Dusche. Dieser Bereich ist flexibel nutzbar – ideal als Gästebereich, Büro, Hobbyraum oder zur Vermietung.
Garten, Pool & Naturgrundstück:
Der Außenbereich ist ein echtes Highlight !
Die Terrasse bietet einen großzügigen, gepflasterten Bereich, der teilweise überdacht ist und einen geschützten Platz zum Sitzen schafft. Zusätzlich steht ein eigener Grillbereich mit einer praktischen kleinen Einbauküche zur Verfügung – ideal für gesellige Abende im Freien.
Der Pool, erst vor wenigen Jahren neu errichtet, fügt sich perfekt in den Garten ein und bietet durch seine moderne Technik hohen Komfort. Die gesamte Pooltechnik ist in einem separaten Gartenhaus untergebracht und wird über eigene Solarpanels besonders kosteneffizient betrieben.
Der liebevoll angelegte Garten geht nahtlos in das angrenzende ca. 3.520 m² große private Waldgrundstück über, und schafft ein außergewöhnliches Gefühl von Weite, Ruhe und Privatsphäre – ein ideales Refugium für Naturfreunde, Familien und Erholungssuchende.
Kfz / Parkmöglichkeiten
Zusätzlich verfügt das Anwesen über zwei hintereinander liegende Garagen, die praktischen Stauraum und geschützte Stellplätze bieten. Ein Stellplatz vor der Garage bietet weiteren Platz auf dem eigenen Grundstück.
Interesse? Unter dem Punkt Besichtigungstermin haben Sie die Möglichkeit, das Anwesen mit uns zu besichtigen. Wir freuen uns auf Ihre Kontaktaufnahme.