Version: 8.25.1Navigation überspringen
1.500.000 €
5 Zimmer  •  174,1 m²  •  3. Geschoss
Immowelt logo

Penthouse zum Kauf - Erstbezug
1500000 €
8.615 €/m²
5 Zimmer  •  174,1 m²  •  3. Geschoss

5 Zimmer-Penthouse-Maisonette-Traum am Klagenfurter Benediktinermarkt über zwei Etagen - Ideal für Individualisten

Eine Symphonie von Eleganz, Geschichte und Architektur! 

Manchmal betreten wir einen Ort, der mehr ist als ein zu Hause. Ein Raum, der Freiheit erzählt, eine Bühne für die Schönheit des Lebens.
Diese außergewöhnliche Wohnung in der Lichtenfelsgasse ist genau das: Eine Symphonie aus Zeit und Raum, errichtet im Jahre 2023 auf Gemäuer aus dem früheren Jahrhundert direkt am Benediktinermarkt, Treffpunkt der Klagenfurter und all der Kulinarik.

Errichtet wurde dieses Projekt vom renommierten Bauträger 9022 Immobilien aus Klagenfurt am Wörthersee.
Jener der bereits seit Jahrzehnten auf die Architektur genauso achtet wie auf das Schaffen von Räumen für Generationen.

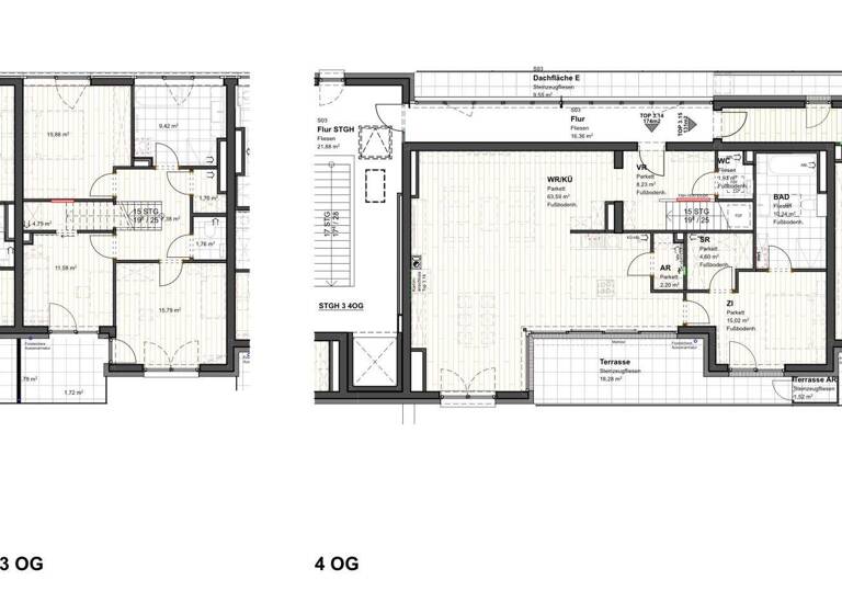
Diese Wohnung ist ein wahrer Traum der sich über das 3. OG & das 4.OG des Hauses erstrecken und nach Süden ausgerichtet ist. 
Ideal für Individualisten, denn die Wohnung wird Belagsfertig übergeben und wird gemeinsam nach Ihren Vorstellungen und Geschmack passend fertiggestellt. 

Der große Wohnbereich das Herzstück der Immobilie mit einer Terrasse nach Süden ausgerichtet, um aus dem täglichen Trubel in das eigene Gartenparadies direkt in der Innenstadt zu entfliehen. Auf derselben Ebene befindet sich ein Schlafzimmer Bad en Suite wie auch ein separates WC.

In der unteren Etage befinden sich drei Schlafräume, zwei mit Zugang zum Balkon/Loggia, ein weiteres Badezimmer mit Tageslicht, ein separates WC, ein Abstellraum und ein Kellerabteil runden diese Symphonie ab.

Optional besteht die Möglichkeit einen Tiefgaragenstellplatz zu erwerben, um auch bei schlechtem Wetter mit guter Laune in den Tag zu starten.

Diese Wohnung ist nicht einfach ein Ort zum Leben. Sie ist ein Ort, an dem Vergangenheit und Gegenwart harmonisch verschmelzen, ein Ort, der Raum für Emotionen und Erinnerungen schafft. 

S.R.E Immobilien - Wir bringen Menschen und Räume zusammen. Denn Emotion ist unser Fundament.

Kaufpreis: EUR 1.500.000,-- zzgl. Kaufnebenkosten (optional Tiefgaragenstellplatz EUR 47.000,--)

Kaufnebenkosten:
Grunderwerbsteuer 3,5 %
Grundbucheintragungsgebühr 1,1%
Vermittlungsprovision 3 % + 20 % Ust.
Vertragserrichtungskosten ca. 2 %

Allgemeiner Hinweis:
Aufgrund der Nachweispflicht gegenüber dem Eigentümer sowie in Entsprechung des FAGG (Fern- und Auswärtsgeschäfte-Gesetz) wird um Verständnis ersucht, dass nur Anfragen mit zumindest vollständigem Namen, E-Mailadresse und Telefonnummer bearbeitet werden. Ohne diese Angaben werden keine weiteren Auskünfte erteilt / keine Objektunterlagen übergeben.

Die angegebenen Daten stammen vom Eigentümer und/oder Dritten und wurden mit Sorgfalt erhoben. Für die Richtigkeit und Vollständigkeit kann jedoch keine Haftung übernommen werden. Zahlenangaben können gegebenenfalls gerundet oder geschätzt sein. Das Anbot ist freibleibend und unverbindlich. Irrtümer und Änderungen sind vorbehalten. Nachdruck/ Vervielfältigung nur mit Genehmigung der Firma S.R.E Immobilien GmbH.

Wir weisen darauf hin, dass zwischen dem Vermittler und dem zu vermittelnden Dritten ein familiäres oder wirtschaftliches Naheverhältnis besteht.

Der Vermittler ist als Doppelmakler tätig.

Infrastruktur / Entfernungen

Gesundheit
Arzt <250m
Apotheke <250m
Krankenhaus <1.000m
Klinik <750m

Kinder & Schulen
Schule <250m
Kindergarten <250m
Universität <750m
Höhere Schule <250m

Nahversorgung
Supermarkt <250m
Bäckerei <250m
Einkaufszentrum <750m

Sonstige
Bank <250m
Geldautomat <250m
Post <250m
Polizei <500m

Verkehr
Bus <250m
Autobahnanschluss <3.000m
Bahnhof <1.000m
Flughafen <3.750m

Angaben Entfernung Luftlinie / Quelle: OpenStreetMap

Merkmale

  • 3. Geschoss
  • Balkon
  • Terrasse
  • Barrierefrei
  • Loggia
  • voll erschlossen

Grundrisse

Grundrisse
1 / 1

Realisiere Dein Projekt

Bausubstanz und Energie

Heizwärmebedarf (HWB)

B

Gesamtenergieeffizienz (fGEE)

A
  • Zustand der ImmobilieNeubau, Erstbezug
Immowelt logo

Preisdetails

Kaufpreis
1500000 €
8.615,24 €/m²
Provision für Käufer
Bitte beachte, das Angebot kann bei Vertragsabschluss die Zahlung einer Provision beinhalten. Weitere Informationen erhältst Du vom Anbieter.

Lage

address-icon
LichtenfelsgasseInnere StadtKlagenfurt am Wörthersee (9020)

Weitere Informationen

Stichworte Nutzfläche: 179,90 m², Anzahl der Badezimmer: 2, Anzahl der separaten WCs: 3, Anzahl Balkone: 1, Anzahl Terrassen: 1, Anzahl Loggias: 1, Balkon-Terrassen-Fläche: 27,31 m², Kellerfläche: 11,31 m², Bundesland: Kärnten

Weitere Services

Lust auf eine Besichtigung?
Eine Frage zur Immobilie?
Nachricht hinzufügen
Mit der Nutzung der oben angegebenen Telefonnummer oder durch Klicken auf „Kontaktieren“ akzeptierst Du die Allgemeinen Nutzungsbedingungen, denen Du jederzeit widersprechen kannst. Weitere Informationen zum Datenschutz

Über den Anbieter

Kohldorfer Straße 100 /20, 9020 ST. MARTIN
partner badge
Partnerschaft
Herr Philipp StrasserDein Kontakt
Online-ID: 253RBVDTJXV1
Referenznummer: OBGC202511260831268115b9cc7a75f
S.R.E Immobilien GmbH
S.R.E Immobilien GmbH
Nachricht hinzufügen
Mit der Nutzung der oben angegebenen Telefonnummer oder durch Klicken auf „Kontaktieren“ akzeptierst Du die Allgemeinen Nutzungsbedingungen, denen Du jederzeit widersprechen kannst. Weitere Informationen zum Datenschutz
Wie zufrieden bist du mit dieser Seite (nicht mit der Immobilie selbst)?