Neulengbach | Erstbezug | Miete | Haus 1 - Top 9 | 3 Zimmer Dachgeschoß mit 48 m² Terrasse
Das Wichtigste auf einen Blick
* Neubauprojekt (2024) in hochwertiger Bauweise und Ausstattung
* Moderne Haustechnik: Erdwärmepumpe mit Fußbodenheizung, Kühlfunktion im Sommer und PV Anlage
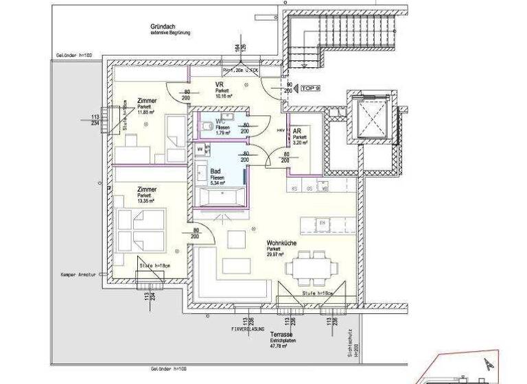
* Die Wohnung umfasst 75,7 m², aufgeteilt in Vorraum, 3 Zimmer, Abstellraum, Bad und WC getrennt
* Lage im Dachgeschoß, 48 m² große Terrasse, Kellerabteil, Garagenplätze optional (EUR 105,-)
* Befristete Hauptmiete (5 Jahre) inkl. aller Betriebskosten UND Heizkosten EUR 1.411,01 p.m.
Die ausführliche Beschreibung:
Am Kabanenweg in Neulengbach, nahe dem Freibad und nur wenige vom Bahnhof entfernt, entstand 2024 eine moderne Wohnhausanlage mit 30 Wohnungen in drei Baukörpern mit gemeinsamer Tiefgarage. Die nachhaltige Haustechnik - Erdwärme-Fußbodenheizung mit Kühlfunktion, außenliegender Sonnenschutz sowie eine Photovoltaikanlage für die Allgemeinflächen sorgt für Komfort und reduzierte Betriebskosten.
Die Wohnung Top 9 im Dachgeschoß (2. OG) von Haus 1 bietet auf 75,7 m² ein durchdachtes Raumprogramm mit Vorraum, drei Zimmern, Abstellraum, Badezimmer und separatem WC. Von allen Zimmern führt der Ausgang auf die rund 48 m² große Terrasse, die den Wohnraum um wertvolle Freifläche erweitert. Eichen-Echtholz-Parkett, großformatige Fliesen mit hochwertiger Keramik in den Nassräumen sowie eine Sicherheits-Eingangstüre runden das Gesamtpaket ab und sorgen für Wohnkomfort auf zeitgemäßem Niveau. Zusätzlich gehören ein Kellerabteil sowie optional verfügbare Garagenplätze in der Tiefgarage zum Angebot.
Die Stadtgemeinde Neulengbach überzeugt mit hoher Lebensqualität: viel Grün zum Laufen, Radfahren und Wandern, das Freibad mit Tennisplätzen direkt nebenan sowie eine sehr gute Infrastruktur mit Nahversorgern, Schulen und Freizeitangeboten. Der Bahnhof ist in nur 900 Metern zu Fuß erreichbar - von dort gelangt man in ca. 35 Minuten nach Wien und in etwa 20 Minuten nach St. Pölten. Auch die Westautobahn (A1) ist schnell erreichbar, womit Freizeitqualität und Alltagskomfort perfekt verbunden sind.
_Auf ein wirtschaftliches Naheverhältnis zum Auftraggeber sowie die Doppelmaklertätigkeit wird ausdrücklich hingewiesen._
Noch nichts gefunden?
Wir informieren Sie als Erste/r über passende Immobilienangebote.
Legen Sie jetzt Ihren individuellen Suchagenten über folgenden Link an.
Wir senden Ihnen geeignete Immobilien unverbindlich vorab zu.
Suchagent anlegen [https://sulek-immobilien.service.immo/registrieren/de] - https://sulek-immobilien.service.immo/registrieren/de
Infrastruktur / Entfernungen
Gesundheit
Arzt <1.250m
Apotheke <1.000m
Klinik <9.750m
Kinder & Schulen
Schule <750m
Kindergarten <1.250m
Nahversorgung
Supermarkt <500m
Bäckerei <1.000m
Sonstige
Bank <1.000m
Geldautomat <1.000m
Post <1.000m
Polizei <750m
Verkehr
Bus <250m
Autobahnanschluss <4.250m
Bahnhof <1.000m
Angaben Entfernung Luftlinie / Quelle: OpenStreetMap