Version: 8.24.0Navigation ĂĽberspringen
421.900 €
7 Zimmer  â€˘  199 m²  â€˘  741 m² GrundstĂĽck

Mehrfamilienhaus zum Kauf • provisionsfrei
421900 €
2.120 €/m²
7 Zimmer  â€˘  199 m²  â€˘  741 m² GrundstĂĽck

Hier fühlt sich Ihre Familie wohl, inklusive Grundstück und Förderung

Hier können Sie Ihre Miete in Eigentum umwandeln. Jeder zahlt in seinem Leben mindestens EIN Haus, die Frage ist nun das Haus eines anderen oder endlich Ihr eigenes, denn es ist nie zu spät und selten zu früh.
Unsere Immobilien können mit Fördergeldern kombiniert werden.
Dieses Objekt steht nicht und kann nicht besichtigt werden!
Die Bilder zeigen ein Beispiel wie Ihr Traumhaus aussehen könnte. Andere Haustypen sind natürlich auch möglich!

Merkmale

  • 741 m² GrundstĂĽck
  • Gäste-WC
Neben kurzen Bauzeiten, innovativer Haustechnik, attraktiver Architektur und hochwertiger Manufaktur-Qualität bietet Ihnen das angebotene Schwabenhaus im All-Inclusive-Paket folgende Mehr-Werte:

- Bodenplatte inklusive Effizienzhaus 55 Perimeter-Dämmung unterhalb der Bodenplatte sowie stirnseitig
- Effizienzhaus 55 mit der Option zur Erweiterung auf Effizienzhaus 40 oder 40 Plus
- Klima-Komfort-Bauweise
- Zimmermannmäßiges Pfettendach
- Photovoltaik-Vorbereitung fĂĽr die AusfĂĽhrung einer Photovoltaik-Anlage
- Komplette Elektro-, Sanitär- und Heizungs-Installation inkl. Grundinstallation für das Schwabenhaus auf Schwabenhaus-Bodenplatte bzw. -Keller*
- Zukunftsweisende Elektro-Installation*
- Smart-Home-Technologie - Intelligentes Gebäude-Management für die Licht- und Rollladen-Steuerung*
- Elektrische Rollläden*¹
- Doppel-Wärmepumpe Eco+* für Heizen, Lüften, Kühlen, Luftreinigung und Warmwasser
- Hochwertige, mehrschichtige Holz-Haustür in vielfältigen Design-Lösungen, mit Sicherheitsschließzylinder, 5-fach- Sicherheits-Verriegelung und 3-Scheiben-Wärmeschutzverglasung
- Kunststoff-Fenster mit 3-Scheiben-Wärmeschutzverglasung
- Dachflächenfenster mit Kipp- und Schwingfunktion sowie elektrischen Rollläden*
- Außenfensterbänke aus Naturstein
- Innenfensterbänke aus Kunst- oder Naturstein*
- Massiv-Vollholz-Treppe
- Protect Versicherungs-Paket mit Wohngebäudeversicherung inkl. Elementarschutz, Haus- und Wohnungs-Schutzbrief, Bauleistungsversicherung und Bauherren-Haftpflichtversicherung sowie Job-Protect Versicherungs-Paket
- 10 sowie 30 Jahre Gewährleistung

*Ab Ausbaustufe "Fast-Vollendet"

Die aufgeführten Mehr-Werte und Leistungsinhalte beziehen sich ausschließlich auf das in der Schwabenhaus Bau- und Leistungsbeschreibung (BLB) beschriebene Technologie + Komfort-Paket "Blue-Edition". Die Mehr-Werte und Leistungsinhalte anderer Schwabenhaus Bau- und Leistungsbeschreibungen bzw. Technologie + Komfort-Pakete können hiervon abweichen.

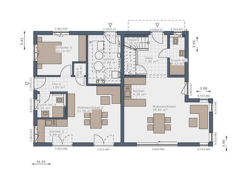
Grundrisse

Grundrisse
1 / 2

Realisiere Dein Projekt

Bausubstanz und Energie

Der Anbieter hat keine Informationen zum Energieverbrauch bereit gestellt.
  • Zustand der ImmobilieNeubau, Projektiert
  • HeizungsartFuĂźbodenheizung

Preisdetails

Kaufpreis
421900 €
2.120,10 €/m²
Provision für Käufer
provisionsfrei
Geschätzte Gesamtkosten
451.434 €1
Kaufpreis
421.900 €
Notarkosten (1,5%)
6.329 €
Grunderwerbsteuer (5%)
21.095 €
Grundbucheintrag (0,5%)
2.110 €
1Der angezeigte Wert ist eine automatisch berechnete Schätzung von immowelt.
2Bei den Angaben handelt es sich um ortsübliche Werte. Individuelle Kosten können abweichen.

Lage

address-icon
Langenenslingen (88515)
Der Anbieter hat die genaue Adresse nicht freigegeben
Bitte senden Sie uns eine schriftliche Anfrage über den Button "Anbieter kontaktieren", wir werden Sie in den nächsten Tagen telefonisch kontaktieren.
Deshalb achten Sie bei Ihrer Anfrage bitte auf Vollständigkeit, insbesondere auf die Angabe einer Telefonnummer.

Anfragen, die sich nur auf die genaue Lage des GrundstĂĽcks beziehen, werden nicht beantwortet.

Weitere Informationen

Sonstiges Vereinbaren Sie einen persönlichen Beratungstermin, um über Ihren Haustraum und das angebotene Objekt zu sprechen.
Bitte beachten Sie, dass die dargestellten Bilder und Grundrisse nur beispielhaft sind und unter Umständen Sonderbauteile enthalten, die nicht im aufgerufenen Preis inkludiert sind.

Haben Sie außerdem Verständnis dafür, dass erst nach dem persönlichen Gespräch weitere Details zu dem angebotenen Grundstück bekanntgegeben werden und dass nur vollständige Anfragen bearbeitet werden können.

Anbauteile, Carport, Garage und Keller können Extras sein, die als Sonderausstattung angeboten werden. Abbildungen, Grundrisse und Flächenangaben sind beispielhaft und können Extras zeigen. Flächenangaben nach DIN 277.

Anbauteile, Carport, Garage und Keller können Extras sein, die als Sonderausstattung angeboten werden. Abbildungen, Grundrisse und Flächenangaben sind beispielhaft und können Extras zeigen. Flächenangaben nach DIN 277.

Profitieren Sie jetzt von der Schwabenhaus Online Beratung und verwirklichen Sie Ihr Traumhaus https://www.schwabenhaus.de/anmeldung-hausbau-beratung-online/ Stichworte Anzahl der Schlafzimmer: 5, Anzahl der Badezimmer: 1, Anzahl der separaten WCs: 1

Weitere Services

Lust auf eine Besichtigung?
Eine Frage zur Immobilie?
Nachricht hinzufĂĽgen
Mit der Nutzung der oben angegebenen Telefonnummer oder durch Klicken auf „Kontaktieren“ akzeptierst Du die Allgemeinen Nutzungsbedingungen, denen Du jederzeit widersprechen kannst. Weitere Informationen zum Datenschutz

Ăśber den Anbieter

Strohweiler StraĂźe 3, 72793 Pfullingen
Achim GausDein Kontakt
Keine Telefonnummer hinterlegt
Keine Telefonnummer hinterlegt
Online-ID: 2nxk758
Referenznummer: AG-366669-Langenenslingen
Schwabenhaus Reutlingen - Achim Gaus - Handelsvertretung fĂĽr die Schwabenhaus GmbH
Nachricht hinzufĂĽgen
Mit der Nutzung der oben angegebenen Telefonnummer oder durch Klicken auf „Kontaktieren“ akzeptierst Du die Allgemeinen Nutzungsbedingungen, denen Du jederzeit widersprechen kannst. Weitere Informationen zum Datenschutz
Wie zufrieden bist du mit dieser Seite (nicht mit der Immobilie selbst)?