Version: 8.24.0Navigation überspringen
ohne-makler.net - Immobilien selbst vermarkten
320.000 €
3 Zimmer  •  99 m²  •  2. Geschoss

Penthouse zum Kauf • provisionsfrei
320000 €
3.232 €/m²
3 Zimmer  •  99 m²  •  2. Geschoss

Modernes Penthouse in stadtnaher Lage

Die angebotene Wohnung befindet sich im obersten Geschoss eines gepflegten Mehrfamilienhauses mit fünf Wohneinheiten. Das im Jahr 2011 errichtete Gebäude präsentiert sich in einem sehr ordentlichen und gut instand gehaltenen Zustand.

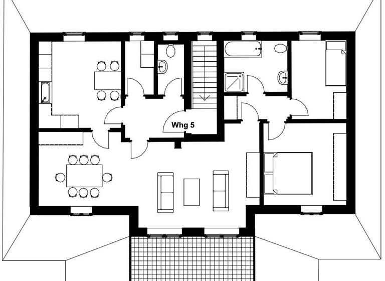
Diese Penthouse-Wohnung mit ca. 99 m² Wohnfläche überzeugt durch eine klare und gut gegliederte Raumaufteilung. Vom Eingangsbereich aus sind zunächst das Gäste-WC sowie ein separater Abstellraum erreichbar. Die Küche liegt als eigenständiger Raum mit kleinem Essplatz direkt im Anschluss und ist vom Wohnbereich getrennt angeordnet. Die vorhandene Einbauküche ist Bestandteil des Angebots und im Kaufpreis enthalten. Der großzügige Wohn- und Essbereich bildet den Kern der Wohnung und bietet zugleich Zugang zu der ca. 13 m² großen Dachterrasse.

Der hintere Teil der Wohnung ist leicht abgesetzt angeordnet und bildet den privaten Bereich, in dem eine Kinderzimmer/ Büro, Elternschlafzimmer sowie das Badezimmer untergebracht sind.
Zur Wohnung gehören ein separater Kellerabstellraum mit einer Größe von ca. 11 m² sowie ein fest zugeordneter Außenstellplatz. Ergänzt wird das Angebot durch weitere Stellplätze im Gemeinschaftseigentum sowie durch einen gemeinschaftlich nutzbaren Fahrradraum.
Die jährliche Nettokaltmiete beträgt ca. 8.800€.

Der Verkauf erfolgt direkt durch den Eigentümer, es fällt keine Provision an. Zusätzlich stehen in diesem Objekt weitere Wohneinheiten zur Verfügung.
Für weitere Informationen melden Sie sich bitte unter Angabe Ihrer vollständigen Kontaktdaten.

Merkmale

  • Bezug: nach Absprache
  • vermietet
  • 2. Geschoss
  • Einbauküche
  • Kelleranteil
  • Außen-Stellplatz
  • Balkon
Keller, Dachterrasse, Einbauküche, Gäste-WC, Fliesen

Grundrisse

Grundrisse
1 / 1

Realisiere Dein Projekt

Bausubstanz und Energie

Der Anbieter hat keine Informationen zum Energieverbrauch bereit gestellt.
  • Baujahr2011
  • Zustand der ImmobilieGepflegt
  • HeizungsartZentralheizung
  • EnergieträgerGas
MediumRectangleTop

Preisdetails

Kaufpreis
320000 €
3.232,32 €/m²
Provision für Käufer
provisionsfrei; keine Provision, courtagefrei
Weitere Preisinformationen
1 Stellplatz
Geschätzte Gesamtkosten
342.400 €1
Kaufpreis
320.000 €
Notarkosten (1,5%)
4.800 €
Grunderwerbsteuer (5%)
16.000 €
Grundbucheintrag (0,5%)
1.600 €
1Der angezeigte Wert ist eine automatisch berechnete Schätzung von immowelt.
2Bei den Angaben handelt es sich um ortsübliche Werte. Individuelle Kosten können abweichen.

Lage

address-icon
Lingen (49809)
Der Anbieter hat die genaue Adresse nicht freigegeben
Die Wohnung befindet sich in einer überwiegend wohngeprägten Umgebung mit gewachsener Infrastruktur. Einkaufsmöglichkeiten, Schulen und Einrichtungen des täglichen Bedarfs befinden sich in unmittelbarer Nähe. Die Lingener Innenstadt ist sowohl mit dem Fahrrad als auch mit dem Auto in wenigen Minuten erreichbar. Zudem besteht eine gute Anbindung an den öffentlichen Nahverkehr sowie an die überregionalen Verkehrsachsen.
Infrastruktur (im Umkreis von 5 km):
Apotheke, Lebensmittel-Discount, Allgemeinmediziner, Kindergarten, Grundschule, Hauptschule, Realschule, Gymnasium, Gesamtschule, Öffentliche Verkehrsmittel

Weitere Informationen

Sonstiges Heizungsart: Zentralheizung
Energieträger: Gas
Energieausweis nicht vorhanden


Makleranfragen nicht erwünscht. Nach § 7 UWG sind unaufgeforderte Kontaktaufnahmen durch Makler ohne ausdrückliche Einwilligung des Empfängers verboten!

ohne-makler (OM) ist weder Anbieter noch Vermittler der Immobilie. OM betreibt eine Plattform für Immobilieneigentümer, die unter anderem die gleichzeitige Veröffentlichung einzelner Inserate auf mehreren Immobilienportalen ermöglicht. Die Inhalte dieser Inserate werden ausschließlich von Dritten verantwortet. Für die Richtigkeit, Vollständigkeit oder Rechtmäßigkeit der Angaben übernimmt OM keine Haftung. Hinweise auf mögliche Rechtsverstöße können jederzeit gemeldet werden und werden nach Prüfung umgehend bearbeitet. Stichworte Stellplatz vorhanden, Nutzfläche: 11,00 m², Anzahl der Schlafzimmer: 2, Anzahl der Badezimmer: 1, Anzahl der separaten WCs: 1, Anzahl Balkone: 1, Bundesland: Niedersachsen

Weitere Services

Lust auf eine Besichtigung?
Eine Frage zur Immobilie?
Nachricht hinzufügen
Mit der Nutzung der oben angegebenen Telefonnummer oder durch Klicken auf „Kontaktieren“ akzeptierst Du die Allgemeinen Nutzungsbedingungen, denen Du jederzeit widersprechen kannst. Weitere Informationen zum Datenschutz

Über den Anbieter

Humboldtstr. 25 A, 21509 Glinde
partner badge
Partnerschaft
Angebot vom EigentümerDein Kontakt
Keine Telefonnummer hinterlegt
Keine Telefonnummer hinterlegt
Online-ID: 2n9nj5l
Referenznummer: 428654
ohne-makler.net - Immobilien selbst vermarkten
ohne-makler.net - Immobilien selbst vermarkten
Nachricht hinzufügen
Mit der Nutzung der oben angegebenen Telefonnummer oder durch Klicken auf „Kontaktieren“ akzeptierst Du die Allgemeinen Nutzungsbedingungen, denen Du jederzeit widersprechen kannst. Weitere Informationen zum Datenschutz
MediumRectangleTop
MediumRectangleBottom
MediumRectangleTop
Wie zufrieden bist du mit dieser Seite (nicht mit der Immobilie selbst)?