

Develo Immobilien GmbH
Herrn Paul Wagner
Kontaktiere den Anbieter schriftlich, es ist keine Telefonnummer hinterlegt.
Preise & Kosten
Provision für Käufer
3,57%
Berechnungsgrundlage der Provisionshöhe ist der notariell beurkundete Kaufpreis des Kaufgegenstandes. Die Vergütung ist verdient und fällig mit Abschluss des notariellen Kaufvertrages. Weitere Informationen siehe Provisionshinweis.
Lage
Diese Wohnlage zählt zu den besonders begehrten Innenstadtadressen von Bad Homburg - eine Lage, die man entdeckt und nicht mehr missen möchte. Eingebettet in ein gepflegtes, ruhiges Wohnumfeld und gleichzeitig im Herzen der Stadt, vereint sie urbane Lebensqualität mit langfristiger Wertstabilität. Genau diese Mischung macht...
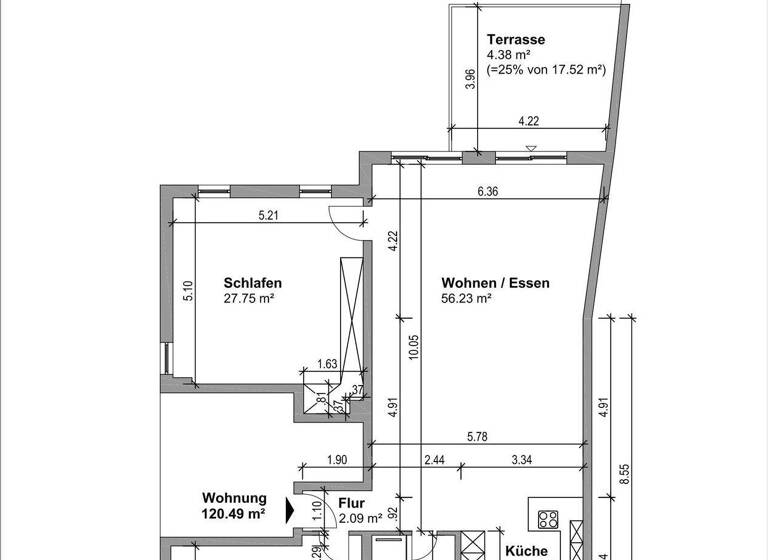
Die Wohnung
Wohnungslage
Erdgeschoss
Bezug
Sofort
Wohnanlage
Energie & Heizung
Warum sehe ich diese Anzeige? – Du siehst diese Anzeige basierend auf Ihrer Navigation auf unserer Website und den Suchkriterien, die du verwendet hast.
Energieausweistyp
Bedarfsausweis
Gebäudetyp
Wohngebäude
Gültigkeit
08.08.2020 bis 01.02.2032
Effizienzklasse
A
Details
Objektbeschreibung
Diese hochwertige Erdgeschosswohnung im modernen Neubau-Standard vereint großzügige Architektur, zeitloses Design und ein durchdachtes Wohnkonzept, das sowohl anspruchsvolles Wohnen als auch Arbeiten unter einem Dach ermöglicht.
Bereits beim Betreten der Wohnung empfängt Sie ein großzügiger Flur, der ein offenes...
Ausstattung
Exklusives Ausstattungskonzept mit hochwertigem Eichen-Fischgrätparkett, großformatigen Keramikfliesen und Design-Sanitärausstattung in beiden Tageslichtbädern.
Modernes Smart-Home-System, elektrische Rollläden sowie dreifach verglaste bodentiefe Fenster für maximalen Wohnkomfort.
Hochwertige Markenküche mit...
Preisinformation
2 Stellplätze, Kaufpreis je: 25.000,00 EUR
Weitere Informationen
Provisionshinweis
3,57%
Berechnungsgrundlage der Provisionshöhe ist der notariell beurkundete Kaufpreis des Kaufgegenstandes. Die Vergütung ist verdient und fällig mit Abschluss des notariellen Kaufvertrages. Wir versichern, dass wir einen provisionspflichtigen Maklervertrag mit dem Verkäufer/Eigentümer des...
Anbieter der Immobilie
Develo Immobilien GmbH
Schöne Aussicht 8A, 61348 Bad Homburg vor der Höhe

Herrn Paul Wagner
Dein Ansprechpartner
Kontaktiere den Anbieter schriftlich, es ist keine Telefonnummer hinterlegt.
Online-ID: 2m3js5z
Referenznummer: 4748871
Finde Angebote wie dieses
Weitere Immobilien
Hier geht es zu unserem Impressum, den Allgemeinen Geschäftsbedingungen, den Hinweisen zum Datenschutz und nutzungsbasierter Online-Werbung.