Version: 8.24.0Navigation überspringen
ohne-makler.net - Immobilien selbst vermarkten
180.000 €
869 m² Grundstück

Grundstück zum Kauf • provisionsfrei
180000 €
207 €/m²
869 m² Grundstück

Baureifes Grundstück in Villenkolonie Friedrichshöhe in Detmold

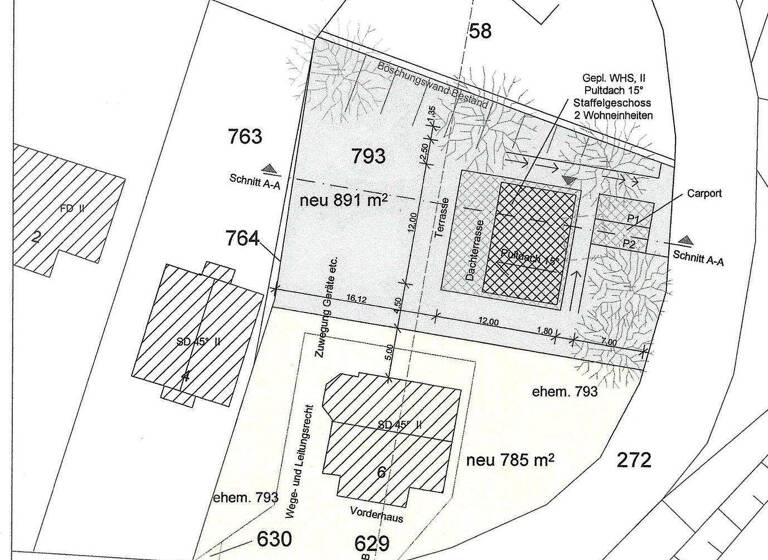
In der Villenkolonie Friedrichshöhe am Detmolder Königsberg in Detmold-Heiligenkirchen ist ein sofort bebaubares Grundstück von 869 qm zu verkaufen. Der Bodenrichtwert beträgt 280 €/qm in der Bodenrichtwertdatenbank von NRW: https://www.boris.nrw.de/boris-nrw/?lang=de - entspricht einem Grundstückwert von 243.000 €!

Stilvolle Villen und das Freiluftmuseum liegen in unmittelbarer Nachbarschaft. Hier können Sie Ihren Traum von einem 1-2-Familienhaus in einer sehr begehrten Gegend Detmolds verwirklichen.

Eine positive Bauvoranfrage für ein 1-2-Familienhaus in Staffelgeschossbauweise liegt vor, die wir Ihnen auf Wunsch zuschicken können. Eine mögliche Bebauung umfasst einen Keller, zwei Vollgeschosse und ein Staffelgeschoss mit Dachterrasse - Blick auf das Hermannsdenkmal inklusive. Die Bebauung des sonnigen Grundstücks kann in Ost-West-Richtung erfolgen.

Für eine Bebauung sollten noch einige Bäume gefällt sowie ein altes Gartenhaus abgerissen werden.

Merkmale

  • Bezug: sofort
  • 869 m² Grundstück
  • teilweise erschlossen

Grundrisse

Grundrisse
1 / 3

Realisiere Dein Projekt

Bausubstanz und Energie

Der Anbieter hat keine Informationen zu Energieverbrauch oder Zustand der Immobilie bereit gestellt.
MediumRectangleTop

Preisdetails

Kaufpreis
180000 €
207,13 €/m²
Provision für Käufer
provisionsfrei; keine Provision, courtagefrei
Geschätzte Gesamtkosten
180.000 €1
Kaufpreis
180.000 €
1Der angezeigte Wert ist eine automatisch berechnete Schätzung von immowelt.

Lage

address-icon
Friedrich-Pieper-Str. 6HeiligenkirchenDetmold (32760)
Die exklusive Wohnlage zeichnet sich durch eine ruhige Umgebung mit großen Grundstücken, familienfreundlichem Umfeld und sehr gute Infrastruktur aus. Die Buslinie 701 ist ca. 200 m entfernt und die Innenstadt von Detmold ist mit dem Fahrrad in 10 Minuten erreichbar. In Heiligenkirchen befinden sich alle Geschäfte/Einrichtungen für den täglichen Bedarf (Rewe, Apotheke, Ärzte, Post, Tankstelle, Kindergarten, Schulen usw.).
Infrastruktur (im Umkreis von 5 km):
Apotheke, Lebensmittel-Discount, Allgemeinmediziner, Kindergarten, Grundschule, Hauptschule, Realschule, Öffentliche Verkehrsmittel

Weitere Informationen

Sonstiges Makleranfragen nicht erwünscht. Nach § 7 UWG sind unaufgeforderte Kontaktaufnahmen durch Makler ohne ausdrückliche Einwilligung des Empfängers verboten!

ohne-makler (OM) ist weder Anbieter noch Vermittler der Immobilie. OM betreibt eine Plattform für Immobilieneigentümer, die unter anderem die gleichzeitige Veröffentlichung einzelner Inserate auf mehreren Immobilienportalen ermöglicht. Die Inhalte dieser Inserate werden ausschließlich von Dritten verantwortet. Für die Richtigkeit, Vollständigkeit oder Rechtmäßigkeit der Angaben übernimmt OM keine Haftung. Hinweise auf mögliche Rechtsverstöße können jederzeit gemeldet werden und werden nach Prüfung umgehend bearbeitet. Stichworte Bundesland: Nordrhein-Westfalen

Weitere Services

Lust auf eine Besichtigung?
Eine Frage zur Immobilie?
Nachricht hinzufügen
Mit der Nutzung der oben angegebenen Telefonnummer oder durch Klicken auf „Kontaktieren“ akzeptierst Du die Allgemeinen Nutzungsbedingungen, denen Du jederzeit widersprechen kannst. Weitere Informationen zum Datenschutz

Über den Anbieter

Humboldtstr. 25 A, 21509 Glinde
partner badge
Partnerschaft
Privat von Ingolf HertlinDein Kontakt
Keine Telefonnummer hinterlegt
Keine Telefonnummer hinterlegt
Online-ID: 2nmgx53
Referenznummer: 404532
ohne-makler.net - Immobilien selbst vermarkten
ohne-makler.net - Immobilien selbst vermarkten
Nachricht hinzufügen
Mit der Nutzung der oben angegebenen Telefonnummer oder durch Klicken auf „Kontaktieren“ akzeptierst Du die Allgemeinen Nutzungsbedingungen, denen Du jederzeit widersprechen kannst. Weitere Informationen zum Datenschutz
MediumRectangleTop
MediumRectangleBottom
MediumRectangleTop
Wie zufrieden bist du mit dieser Seite (nicht mit der Immobilie selbst)?