Version: 8.22.4Navigation überspringen
2.490.000 €
825 m² Grundstück
Immowelt logo

Grundstück zum Kauf - Erstbezug
2490000 €
3.018 €/m²
825 m² Grundstück

Grundstück mit Baugenehmigung für 3-Luxuswohnungen

Visavis des Golfclubs Eichenheim, in ruhiger Lage am Fuße des Hahnenkamm ist dieses 825 m² große Baugrundstück gelegen.

Vom Grundstück hat man einen schönen Ausblick auf das Kitzbüheler Horn, den Wilden Kaiser, die Bichlalm bis hin zu den Südbergen.

Die Besonderheit bei diesem Angebot ist, dass bereits eine rechtskräftige Baugenehmigung für ein exklusives Mehrfamilienhaus mit 3 Wohnungen vorliegt.
Der neue Eigentümer kann somit sofort mit dem Bau beginnen und spart sich mindestens 2 Jahre, welche es dauert, eine Baugenehmigung zu erhalten.
Das ist somit nicht nur eine große Zeitersparnis, sondern auch eine große finanzielle Entlastung.

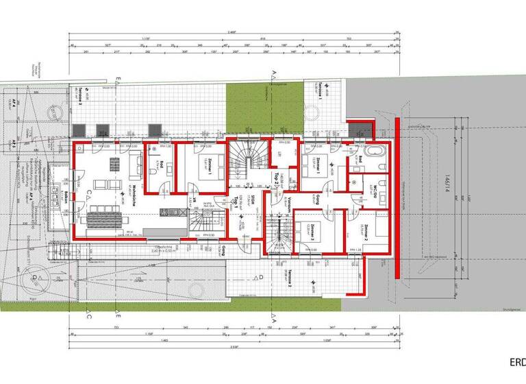
Die drei Wohnungen bieten eine Wohn-/Nutzfläche von insgesamt 409,25 m², zuzüglich Nebenräume mit 75,70 m² und die Tiefgarage mit 89,15 m².

- Wohnung Top 1 befindet sich im Erdgeschoss und erstreckt sich bis in das Untergeschoss und hat 158,38 m²
- Wohnung Top 2 befindet sich im Erdgeschoss und erstreckt sich bis in das Dachgeschoss und hat 140,88 m²
- Wohnung Top 3 befindet sich im Dachgeschoss und hat 109,99 m².

Jede Wohnung verfügt über großzügige Balkon- und Terrassenflächen, eigene geräumige Kellerräume sowie einen Tiefgaragenstellplatz und einen Freistellplatz. Ein Personenlift verbindet alle drei Geschosse.

Laut Baubewilligung vom 10.12.2025 beträgt die bebaute Fläche 267,14 m².
Summe der Bruttogeschossflächen lt. § 4 der Kanalgebührenordnung der Stadtgemeinde Kitzbühel:
1. UG: 293,52 m²
EG: 217,39 m²
1. OG: 267,14 m²
Gesamt: 778,05 m²
Baumasse lt. § 2 (5) Tiroler Verkehrsaufschließungs- und Ausgleichsabgabengesetz LGBL.NR. 58/2011 i.d.g.F.: 2.732,90 m3
Baumasse lt. § 61 (3) TROG 2022: 1.937,66 m3

Das Grundstück ist noch nicht erschlossen. Sämtliche Ver- und Entsorgungsleitungen befinden sich direkt in der angrenzenden Zufahrtsstraße.

Vom Grundstück gelangt man unmittelbar auf die Achenpromenade, über welche man zu Fuß in ca. 15 Minuten in das Stadtzentrum gelangt.
Der Skibus hält nur wenige Meter vom Haus entfernt und auch die Langlaufloipe ist fußläufig erreichbar.

Energiedaten: HWB 46 Klasse B, fGEE 0,68 Klasse A+

Merkmale

  • Bezug: sofort
  • 825 m² Grundstück
  • Gäste-WC
  • Balkon
  • Terrasse
  • Raumaufteilung flexibel
  • Waschraum
  • Sauna

Grundrisse

Grundrisse
1 / 3

Virtueller Rundgang

Video

Realisiere Dein Projekt

Bausubstanz und Energie

Der Anbieter hat keine Informationen zum Energieverbrauch bereit gestellt.
  • Zustand der ImmobilieErstbezug
Immowelt logo

Preisdetails

Kaufpreis
2490000 €
3.018,18 €/m²
Provision für Käufer
3,0 %

Lage

address-icon
Kitzbühel (6370)
Der Anbieter hat die genaue Adresse nicht freigegeben

Weitere Informationen

Stichworte Nord-Ost-Nord-West-Süd-Ost-Balkon/Terrasse, Nutzfläche: 574,10 m², Gesamtfläche: 574,10 m², Anzahl der Schlafzimmer: 9, Anzahl der Badezimmer: 7, Anzahl der separaten WCs: 1, Anzahl Balkone: 5, Anzahl Terrassen: 3, Bundesland: Tirol, länderspezifische Bebaubarkeit Sonstiges/Wohnen: seniorengerechtes Wohnen Wellness: Wellnessbereich

Weitere Services

Lust auf eine Besichtigung?
Eine Frage zur Immobilie?
Nachricht hinzufügen
Mit der Nutzung der oben angegebenen Telefonnummer oder durch Klicken auf „Kontaktieren“ akzeptierst Du die Allgemeinen Nutzungsbedingungen, denen Du jederzeit widersprechen kannst. Weitere Informationen zum Datenschutz

Über den Anbieter

Im Gries 27, 6370 KITZBÜHEL
partner badge
Partnerschaft
Herr Franz Gobec RR Bgm.a.D.
Herr Franz Gobec RR Bgm.a.D.Dein Kontakt
Online-ID: 2muuf5y
Referenznummer: MG-0002352
KITZIMMO - Real Estate - OG
title
KITZIMMO - Real Estate - OG
Bewertung: 5 von 5 Sternen
Nachricht hinzufügen
Mit der Nutzung der oben angegebenen Telefonnummer oder durch Klicken auf „Kontaktieren“ akzeptierst Du die Allgemeinen Nutzungsbedingungen, denen Du jederzeit widersprechen kannst. Weitere Informationen zum Datenschutz
Wie zufrieden bist du mit dieser Seite (nicht mit der Immobilie selbst)?