PAG, POVLJANA - Wohnung mit Garten in einem Neubau in Meeresnähe AS1
PAG, POVLJANA - Wohnung mit Garten in einem Neubau in Meeresnähe (AS1)
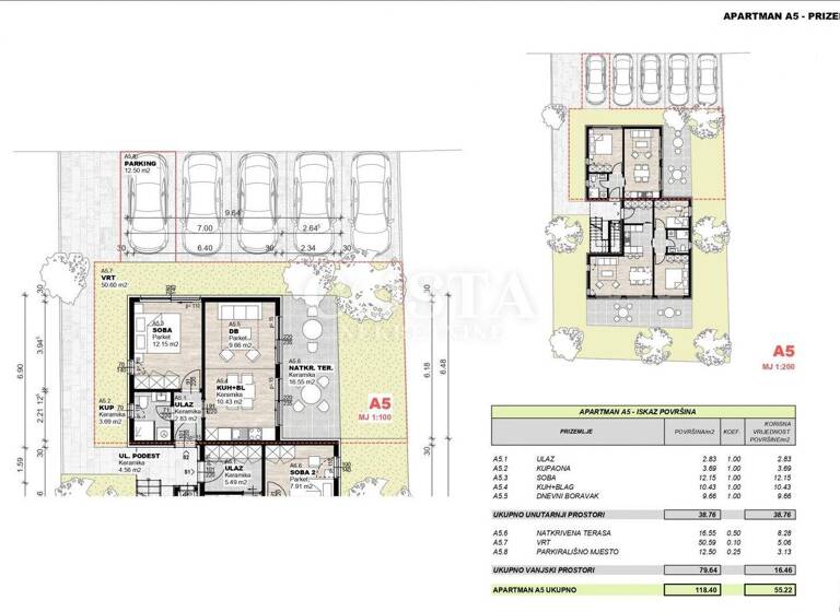
In Povljana auf der Insel Pag steht eine 1-Zimmer-Wohnung in einem Neubau zum Verkauf. Die 38,76 m² große Wohnung befindet sich im Erdgeschoss eines kleineren Wohngebäudes mit nur fünf Wohneinheiten. Sie besteht aus einem Wohnzimmer, einer Wohnküche, einem Schlafzimmer, einem Badezimmer und einer überdachten Terrasse von zusätzlich 16,55 m². Zur Wohnung gehören außerdem ein 50,59 m² großer Garten und ein privater Parkplatz im Innenhof des Gebäudes. Die gesamte Nutzfläche der Wohnung einschließlich der Nebengebäude beträgt 118,40 m² (K.V. 55,22 m²).
Für den Bau wurden hochwertige Materialien verwendet, darunter Stahlbetonkonstruktion, 10 cm dicke Polystyrol-Wärmedämmung an der Fassade, PVC-Fenster und -Türen mit dreifach verglastem Marlex-Glas und Moskitonetzen. Die Böden sind mit Keramikfliesen belegt, und es wurden feuer- und einbruchsichere Türen eingebaut. Alle Räume sind mit einer Split-Klimaanlage ausgestattet, die sowohl heizt als auch kühlt. In den Badezimmern wurde eine Fußbodenheizung installiert.
Der Einzug ist fĂĽr Mitte 2026 geplant.
Die Immobilie befindet sich in bester Lage in Povljana, nur 300 m vom Strand und 800 m von Einkaufsmöglichkeiten entfernt. Zahlreiche Cafés und Restaurants befinden sich in unmittelbarer Nähe. Die Stadt Pag, bekannt für ihre vielen kulturellen Sehenswürdigkeiten und ihr authentisches gastronomisches Angebot, ist 13 km entfernt, das Stadtzentrum von Zadar 48 km. Der nächstgelegene Flughafen ist Zemunik, 58 km von Povljana entfernt.
Sehr geehrte Kunden, die Maklergebühr wird gemäß den Allgemeinen Geschäftsbedingungen berechnet.
https://costa-nekretnine.hr/o-nama/opci-uvjeti-poslovanja
ID CODE: 222