


1 / 26



1 / 26
Wohnung zum Kauf - ErstbezugPreis auf Anfrage4 Zimmer • 93,3 m² • 2. Geschoss
Preis auf Anfrage
4 Zimmer • 93,3 m² • 2. Geschoss
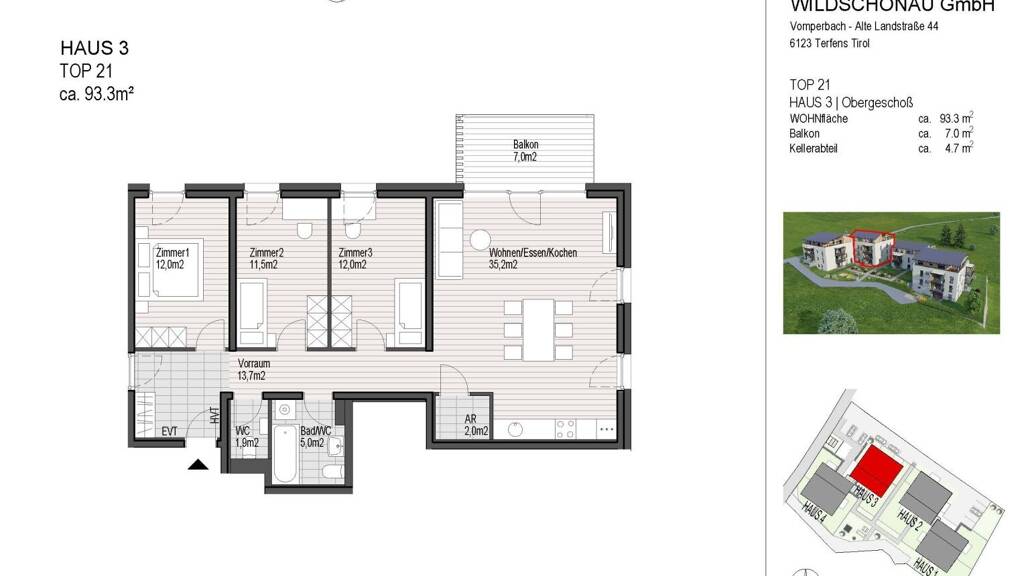
Top 21 - 4-Zimmer, 2. OG
Wohnanlage im Zentrum der Wildschönau
Die "Wohnresidenz Wildschönau" entsteht im Hauptort Oberau, im Ortsteil Lenzen. Die Gemeinde liegt auf ca. 936 m - dort befindet sich auch der Sitz der Gemeindeverwaltung. Dieses barrierefreie Immobilienprojekt entsteht auf der Sonnenseite, in leichter Hanglage mit traumhafter Aussicht.
Infrastruktur
Oberau ist in nur 20 min. Fahrzeit von der 11 km entfernten Stadt Wörgl mit dem Auto oder öffentlichen Verkehrsmitteln zu erreichen. Alles, was Sie für Ihr tägliches Leben brauchen, finden Sie in unmittelbarer Nähe Ihres neuen Zuhauses. Als Zentrum dieses Hochtales ist dort auch die gesamte Infrastruktur angesiedelt, wie z.B. die neue Musikmittelschule, Kindergarten, Bank, Nahversorger, Geschäfte, Tankstelle, zahlreiche Restaurants und Gasthöfe.
Beschreibung Wohnhäuser
Wir errichten in leichter Hanglage in Oberau eine Wohnanlage mit voraussichtlich 31 Eigentumswohnungen in 4 Gebäuden. Die Objektadresse lautet: Lenzen 239, 6311 Oberau (Grundstück Nr. 307/3). Die Wohnanlage besteht aus einem Tiefgaragengeschoß / Eingangsebene, einem Gartengeschoß, einem Obergeschoß sowie einem Dachgeschoß. Es entstehen 2-, 3-, 4- und 5-Zimmer-Wohnungen immer mit Balkon oder Terrasse. Haus 1 + Haus 2 sowie Haus 3 + Haus 4 verfügen jeweils über ein gemeinsames Stiegenhaus sowie einen gemeinsamen Personenaufzug, die alle Geschoßebenen miteinander verbinden.
Parken und Lagern im Untergeschoß
Die Kellerabteile für Haus 1 + Haus 2 sind in der TG-/ Eingangsebene situiert, jene für Haus 3 + Haus 4 in der Ebene darüber. Die versperrbaren Kellerräume sind den einzelnen Tops zugeordnet und im Kaufpreis enthalten. Für Kraftfahrzeuge befinden sich 46 Stellplätze in der Tiefgarage, die mit einem Garagentor versperrt ist und mittels Schlüssel oder Fernbedienung geöffnet wird. Die Tiefgarage ist über eine leicht befahrbare Rampe entlang der Grundgrenze zu erreichen. Besucherparkplätze stehen im Eingangsbereich der Häuser zur Verfügung. Für Fahrräder gibt es einen versperrbaren Abstellraum in der TG-Ebene sowie Abstellflächen bei den jeweiligen Hauseingängen. Das zentrale Müllhaus sowie der erforderliche Trafo sind neben der Gemeindestraße, im Bereich Vorplatz Haus 3 + Haus 4 geplant.
Heizen mit Pelletsheizung
Die Wohnanlage "Wohnresidenz Wildschönau" verfügt über eine Pelletsheizung für die Raumheizung und Warmwasseraufbereitung sowie eine Photovoltaikanlage am Dach. Die Fußbodenheizung sorgt auch für ein behagliches Wohnklima. Gesteuert über einen Außentemperaturfühler, lassen sich die Räume über den Heizungsverteiler bzw. Raumthermostat in der Wohnung getrennt regulieren.
7 Wohnungen wohnbaugefördert
Die Wohnungen sind zum Großteil frei finanziert, 7 Wohnungen unterliegen den aktuellen Richtlinien der Tiroler Wohnbauförderung.
Naherholung in den Kitzbüheler Alpen
Für Naturliebhaber und Sportbegeisterte lässt die Wildschönau mit ihren vielzähligen Möglichkeiten der Freizeitgestaltung sowohl für Sommer- als auch Winteraktivitäten keine Wünsche offen. Unzählige Freizeitangebote in der Region sorgen für Abwechslung. Geboten werden unter anderem 300 km leicht begehbaren Wanderwege, duftende Blumenwiesen, gut erreichbare Almen und urige Berghütten.
Qualität direkt vom Bauträger
Die "Wohnresidenz Wildschönau GmbH" ist eine Tochtergesellschaft der Baufirma Ing. Hans Lang GmbH mit Firmensitz in Terfens-Vomperbach. Unser Unternehmen wird in dritter Generation geführt und bietet Privat- und Gewerbekunden Produkte und Dienstleistungen rund um das Thema bauen an. Unser betriebseigener Bauträger, die IHL Immobilien GmbH, steht Ihnen für Beratung und Verkauf gerne zur Verfügung. Die Wohnungen werden provisionsfrei vermittelt. Die Verwendung hochwertiger Materialien, eine attraktive Architektur sowie die gute Lage unserer Grundstücke bilden die Basis für andauernde Zufriedenheit und Wertbeständigkeit Ihrer Eigentumswohnung.
Sämtliche Flächenangaben sind Circa-Angaben.
Die Kaufvertragserrichtung und -abwicklung erfolgt durch die Rechtsanwaltskanzlei
KÖNIG ERMACORA KLOTZ & PARTNER
Erlerstraße 4 / 3. Stock
6010 Innsbruck
Tel +43 (0) 512 / 58 54 33
Fax +43 (0) 512 / 58 54 33 - 33
office@advokatur.at · www.advokatur.at
Wichtiger Hinweis:
Mit dem Ankauf sind Kosten in Zusammenhang mit der Finanzierung bzw. Finanzierungsabwicklung sowie folgende Nebenkosten verbunden, die nicht in den Verkaufspreisen enthalten sind:
3,5 % des Kaufpreises Grunderwerbsteuer (Bemessungsgrundlage nach GrEStG)
1,1 % Eintragungsgebühr Grundbuch (Bemessungsgrundlage nach GrEStG)
2,16 % Vertragserrichtung (inkl. 20% USt): Rechtsanwaltskosten für die Kaufvertragserrichtung und -abwicklung sowie die Treuhandschaft, Barauslagen und Beglaubigungskosten lt. Gebührenordnung.
Allfällige Kosten in Zusammenhang mit der Finanzierung bzw. Finanzierungsabwicklung.
Hier ein LINK zur sBausparkasse für eine schnelle Online-Finanzierungsberechnung. (bitte beachten Sie, dass wir nicht exklusiv mit dieser Bank zusammenarbeiten):
https://services.sbausparkasse.at/darlehen-online/?ref=ihl-immobilien-gmbh [https://linkprotect.cudasvc.com/url?a=https%3A%2F%2Fservices.sbausparkasse.at%2Fdarlehen-online%2F%3Fref%3Dihl-immobilien-gmbh&c=E,1,X0wzbwRontksG6nwgXCgl0kCPla_-06Puc0g40F-Mnm6HabUr5BpkV-1oAfry2q1Oz0Bmcq1KcFKWe8Q6OC9br1oaa6kqHQYI6T2MAVFBw7Co2OFRl4,&typo=1]
Infrastruktur / Entfernungen
Gesundheit
Arzt <1.275m
Apotheke <4.300m
Klinik <6.175m
Kinder & Schulen
Schule <1.200m
Kindergarten <1.250m
Nahversorgung
Supermarkt <1.225m
Bäckerei <1.325m
Einkaufszentrum <6.225m
Sonstige
Bank <1.300m
Geldautomat <1.225m
Post <1.225m
Polizei <5.275m
Verkehr
Bus <300m
Autobahnanschluss <5.400m
Bahnhof <6.000m
Angaben Entfernung Luftlinie / Quelle: OpenStreetMap
Die "Wohnresidenz Wildschönau" entsteht im Hauptort Oberau, im Ortsteil Lenzen. Die Gemeinde liegt auf ca. 936 m - dort befindet sich auch der Sitz der Gemeindeverwaltung. Dieses barrierefreie Immobilienprojekt entsteht auf der Sonnenseite, in leichter Hanglage mit traumhafter Aussicht.
Infrastruktur
Oberau ist in nur 20 min. Fahrzeit von der 11 km entfernten Stadt Wörgl mit dem Auto oder öffentlichen Verkehrsmitteln zu erreichen. Alles, was Sie für Ihr tägliches Leben brauchen, finden Sie in unmittelbarer Nähe Ihres neuen Zuhauses. Als Zentrum dieses Hochtales ist dort auch die gesamte Infrastruktur angesiedelt, wie z.B. die neue Musikmittelschule, Kindergarten, Bank, Nahversorger, Geschäfte, Tankstelle, zahlreiche Restaurants und Gasthöfe.
Beschreibung Wohnhäuser
Wir errichten in leichter Hanglage in Oberau eine Wohnanlage mit voraussichtlich 31 Eigentumswohnungen in 4 Gebäuden. Die Objektadresse lautet: Lenzen 239, 6311 Oberau (Grundstück Nr. 307/3). Die Wohnanlage besteht aus einem Tiefgaragengeschoß / Eingangsebene, einem Gartengeschoß, einem Obergeschoß sowie einem Dachgeschoß. Es entstehen 2-, 3-, 4- und 5-Zimmer-Wohnungen immer mit Balkon oder Terrasse. Haus 1 + Haus 2 sowie Haus 3 + Haus 4 verfügen jeweils über ein gemeinsames Stiegenhaus sowie einen gemeinsamen Personenaufzug, die alle Geschoßebenen miteinander verbinden.
Parken und Lagern im Untergeschoß
Die Kellerabteile für Haus 1 + Haus 2 sind in der TG-/ Eingangsebene situiert, jene für Haus 3 + Haus 4 in der Ebene darüber. Die versperrbaren Kellerräume sind den einzelnen Tops zugeordnet und im Kaufpreis enthalten. Für Kraftfahrzeuge befinden sich 46 Stellplätze in der Tiefgarage, die mit einem Garagentor versperrt ist und mittels Schlüssel oder Fernbedienung geöffnet wird. Die Tiefgarage ist über eine leicht befahrbare Rampe entlang der Grundgrenze zu erreichen. Besucherparkplätze stehen im Eingangsbereich der Häuser zur Verfügung. Für Fahrräder gibt es einen versperrbaren Abstellraum in der TG-Ebene sowie Abstellflächen bei den jeweiligen Hauseingängen. Das zentrale Müllhaus sowie der erforderliche Trafo sind neben der Gemeindestraße, im Bereich Vorplatz Haus 3 + Haus 4 geplant.
Heizen mit Pelletsheizung
Die Wohnanlage "Wohnresidenz Wildschönau" verfügt über eine Pelletsheizung für die Raumheizung und Warmwasseraufbereitung sowie eine Photovoltaikanlage am Dach. Die Fußbodenheizung sorgt auch für ein behagliches Wohnklima. Gesteuert über einen Außentemperaturfühler, lassen sich die Räume über den Heizungsverteiler bzw. Raumthermostat in der Wohnung getrennt regulieren.
7 Wohnungen wohnbaugefördert
Die Wohnungen sind zum Großteil frei finanziert, 7 Wohnungen unterliegen den aktuellen Richtlinien der Tiroler Wohnbauförderung.
Naherholung in den Kitzbüheler Alpen
Für Naturliebhaber und Sportbegeisterte lässt die Wildschönau mit ihren vielzähligen Möglichkeiten der Freizeitgestaltung sowohl für Sommer- als auch Winteraktivitäten keine Wünsche offen. Unzählige Freizeitangebote in der Region sorgen für Abwechslung. Geboten werden unter anderem 300 km leicht begehbaren Wanderwege, duftende Blumenwiesen, gut erreichbare Almen und urige Berghütten.
Qualität direkt vom Bauträger
Die "Wohnresidenz Wildschönau GmbH" ist eine Tochtergesellschaft der Baufirma Ing. Hans Lang GmbH mit Firmensitz in Terfens-Vomperbach. Unser Unternehmen wird in dritter Generation geführt und bietet Privat- und Gewerbekunden Produkte und Dienstleistungen rund um das Thema bauen an. Unser betriebseigener Bauträger, die IHL Immobilien GmbH, steht Ihnen für Beratung und Verkauf gerne zur Verfügung. Die Wohnungen werden provisionsfrei vermittelt. Die Verwendung hochwertiger Materialien, eine attraktive Architektur sowie die gute Lage unserer Grundstücke bilden die Basis für andauernde Zufriedenheit und Wertbeständigkeit Ihrer Eigentumswohnung.
Sämtliche Flächenangaben sind Circa-Angaben.
Die Kaufvertragserrichtung und -abwicklung erfolgt durch die Rechtsanwaltskanzlei
KÖNIG ERMACORA KLOTZ & PARTNER
Erlerstraße 4 / 3. Stock
6010 Innsbruck
Tel +43 (0) 512 / 58 54 33
Fax +43 (0) 512 / 58 54 33 - 33
office@advokatur.at · www.advokatur.at
Wichtiger Hinweis:
Mit dem Ankauf sind Kosten in Zusammenhang mit der Finanzierung bzw. Finanzierungsabwicklung sowie folgende Nebenkosten verbunden, die nicht in den Verkaufspreisen enthalten sind:
3,5 % des Kaufpreises Grunderwerbsteuer (Bemessungsgrundlage nach GrEStG)
1,1 % Eintragungsgebühr Grundbuch (Bemessungsgrundlage nach GrEStG)
2,16 % Vertragserrichtung (inkl. 20% USt): Rechtsanwaltskosten für die Kaufvertragserrichtung und -abwicklung sowie die Treuhandschaft, Barauslagen und Beglaubigungskosten lt. Gebührenordnung.
Allfällige Kosten in Zusammenhang mit der Finanzierung bzw. Finanzierungsabwicklung.
Hier ein LINK zur sBausparkasse für eine schnelle Online-Finanzierungsberechnung. (bitte beachten Sie, dass wir nicht exklusiv mit dieser Bank zusammenarbeiten):
https://services.sbausparkasse.at/darlehen-online/?ref=ihl-immobilien-gmbh [https://linkprotect.cudasvc.com/url?a=https%3A%2F%2Fservices.sbausparkasse.at%2Fdarlehen-online%2F%3Fref%3Dihl-immobilien-gmbh&c=E,1,X0wzbwRontksG6nwgXCgl0kCPla_-06Puc0g40F-Mnm6HabUr5BpkV-1oAfry2q1Oz0Bmcq1KcFKWe8Q6OC9br1oaa6kqHQYI6T2MAVFBw7Co2OFRl4,&typo=1]
Infrastruktur / Entfernungen
Gesundheit
Arzt <1.275m
Apotheke <4.300m
Klinik <6.175m
Kinder & Schulen
Schule <1.200m
Kindergarten <1.250m
Nahversorgung
Supermarkt <1.225m
Bäckerei <1.325m
Einkaufszentrum <6.225m
Sonstige
Bank <1.300m
Geldautomat <1.225m
Post <1.225m
Polizei <5.275m
Verkehr
Bus <300m
Autobahnanschluss <5.400m
Bahnhof <6.000m
Angaben Entfernung Luftlinie / Quelle: OpenStreetMap
Merkmale
- 2. Geschoss
- Balkon
Grundrisse
Grundrisse
1 / 1
Realisiere Dein Projekt
Bausubstanz und Energie
Heizwärmebedarf (HWB)
B
Gesamtenergieeffizienz (fGEE)
A+
- Baujahr2025
- Zustand der ImmobilieNeubau, Erstbezug
- HeizungsartFußbodenheizung
- EnergieträgerPellets
Preisdetails
Preis auf Anfrage
Provision für Käufer
Bitte beachte, das Angebot kann bei Vertragsabschluss die Zahlung einer Provision beinhalten. Weitere Informationen erhältst Du vom Anbieter.
Lage

Lenzen 239, Oberau (6311)
ruhige, sonnige Hanglage mit traumhafter Aussicht
Weitere Informationen
Stichworte
Anzahl Balkone: 1, Balkon-Terrassen-Fläche: 7,00 m², Kellerfläche: 4,70 m², Bundesland: Tirol, 4 Etagen, Wohnungsnr.: Top 21
Weitere Services
Lust auf eine Besichtigung?
Eine Frage zur Immobilie?
Über den Anbieter
IHL Immobilien GmbHMaklerbüro
Alte Landstraße 44, 6123 Terfens
Partnerschaft
Frau Andrea PflugerDein Kontakt
Weitere Unterlagen
Online-ID: 2bg4e55
Referenznummer: OBGC2023051614475318179290d80f6

IHL Immobilien GmbH
Wie zufrieden bist du mit dieser Seite (nicht mit der Immobilie selbst)?