Version: 8.25.1Navigation überspringen
175.000 €
6 Zimmer  •  188,5 m²  •  763 m² Grundstück
Immowelt logo

Einfamilienhaus zum Kauf
175000 €
928 €/m²
6 Zimmer  •  188,5 m²  •  763 m² Grundstück

Teilsaniertes Wohnhaus mit großzügiger Wohnfläche

Verkauft wird ein freistehendes Wohnhaus in zentraler Lage von Sohland. Das im Jahr 1929 massiv errichtete Gebäude bietet mit einer Wohnfläche von rund 188,5 m² großzügige Platzverhältnisse. Die Wohnfläche verteilt sich auf zwei Geschosse.
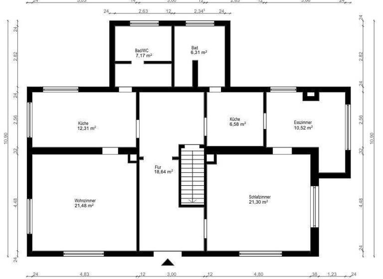
Im Erdgeschoss befinden sich zwei Wohn- bzw. Schlafzimmer, eine Küche, ein Esszimmer, ein Tageslichtbad sowie ein separates, noch unsaniertes Bad/WC. Ein weiterer Raum im Erdgeschoss, im Grundrissplan als Küche ausgewiesen, ist unsaniert und verbindet den großzügigen Hausflur mit dem Wohnzimmer.
Sowohl Wohn- als auch Esszimmer sind jeweils mit einem Kaminofen ausgestattet.
Im Dachgeschoss befinden sich drei weitere Wohnräume sowie nutzbare Dachkammern, welche zentral über den Hausflur erschlossen sind. Eine Besonderheit stellt der großzügige Südbalkon sowie die Loggia mit Süd-West-Ausrichtung dar.

Technisch wurden im Laufe der Jahre immer wieder Maßnahmen zur Modernisierung und Sanierung durchgeführt. In den Folgejahren nach 1990 wurde beispielsweise die Elektroinstallation teilweise auf Kupferverkabelung umgestellt. 1994 erfolgte der Einbau einer Gaszentralheizung mit Warmwasserspeicher.
Das Dach wurde 2011 mit Biberschwanzdeckung erneuert. 2013 erfolgte die Anbringung einer ca. 5 cm starken Fassadendämmung an drei der vier Hausseiten.
Die zweifach isolierverglasten Fenster wurden 2015 eingebaut und ersetzten einen Großteil der ursprünglichen Fenster.

Weiterer Sanierungs- und Modernisierungsbedarf besteht weiterhin im Bereich der Elektroinstallation (ELT), der Fenster sowie der Fuß-, Wand- und Deckenbeläge. Einige Räume blieben gänzlich unsaniert.

Das Gebäude ist teilweise unterkellert. Hier befindet sich unter anderem die zentrale Heizungsanlage sowie weitere Lager- und Nutzflächen.

Neben dem Wohnhaus befinden sich zwei PKW-Garagen auf dem ca. 763 m² großen Grundstück.

Merkmale

  • Bezug: sofort
  • 763 m² Grundstück
  • Gäste-WC
  • Keller
  • offener Kamin
  • Balkon
Die Ausstattung des Hauses und die technischen Merkmale im Überblick:

Gebäude
- Baujahr 1929
- Wohnfläche ca. 188,5 m², weitere Nutzflächen im Keller und Dachspitz
- massive Bauweise
- Satteldach mit Biberschwanzdeckung (2011 erneuert)
- Fassadendämmung (WDVS ca. 5 cm) an drei Hausseiten (2013)
- überwiegend zweifach isolierverglaste Kunststofffenster (2015 und jünger)
- teilweise unterkellert

Heizung / Technik
- Gaszentralheizung mit Warmwasserspeicher (1994)
- Elektroinstallation teilweise auf Kupferleitungen umgestellt (nach 1990)
- zusätzliche Kaminöfen in Wohn- und Esszimmer

Sanitär
- Tageslichtbad mit Wanne, Dusche und WC
- zusätzliches unsaniertes Bad mit WC und Waschbecken

Außenbereich
- Südbalkon
- Loggia mit Süd-West-Ausrichtung
- zwei PKW-Garagen
- Grundstück ca. 763 m²

Sonstiges
- Glasfaseranschluss vorhanden

Grundrisse

Grundrisse
1 / 2

Realisiere Dein Projekt

Bausubstanz und Energie

Möchtest du Details zum Energieverbrauch?info_energy_calculation-icon
  • Baujahr1929
  • Zustand der Immobilierenovierungsbedürftig / sanierungsbedürftig
  • HeizungsartZentralheizung
Immowelt logo

Preisdetails

Kaufpreis
175000 €
928,38 €/m²
Provision für Käufer
3,57% inkl. MwSt.
Geschätzte Gesamtkosten
194.372 €1
Kaufpreis
175.000 €
Notarkosten (1,5%)
2.625 €
Grunderwerbsteuer (5,5%)
9.625 €
Provision für Käufer (3,57%)
6.247 €
Grundbucheintrag (0,5%)
875 €
1Der angezeigte Wert ist eine automatisch berechnete Schätzung von immowelt.
2Bei den Angaben handelt es sich um ortsübliche Werte. Individuelle Kosten können abweichen.

Lage

address-icon
SohlandSohland an der Spree (02689)
Der Anbieter hat die genaue Adresse nicht freigegeben
Das Gebäude befindet sich in zentraler Lage in Sohland an der Spree. Einrichtungen des täglichen Bedarfs wie Einkaufsmöglichkeiten, Gastronomie und medizinische Versorgung sind im Ort vorhanden und zum Teil fußläufig erreichbar. Kindertagesstätten und Schulen sind ebenfalls vor Ort angesiedelt.

Der Bahnhof Sohland mit Anbindung nach Bautzen und Dresden ist ca. 2,5 km entfernt. Die Fahrzeit nach Bautzen beträgt mit dem PKW ca. 20 Minuten, mit dem ÖPNV nur unwesentlich länger. Die nächstgelegene Autobahnanschlussstelle der BAB 4 ist in etwa 25 bis 30 Minuten erreichbar.

Die Lage in der Oberlausitz bietet zudem ein naturnahes Umfeld mit zahlreichen Freizeit- und Erholungsmöglichkeiten in unmittelbarer Umgebung.

Weitere Informationen

Sonstiges Der Verkauf erfolgt freihändig im direkten Auftrag des Eigentümers.
Alle Angaben, Flächenmaße, Darstellungen und Preisangaben basieren auf Informationen vom Eigentümer oder von Dritten, die zur Verfügung gestellt wurden. Eine Gewähr für deren Richtigkeit, Vollständigkeit und Aktualität kann nicht übernommen werden. Änderungen, Irrtümer und ein zwischenzeitlicher Verkauf bleiben vorbehalten.

Die im Exposé angegebene Käuferprovision wird im Erfolgsfall fällig und errechnet sich aus dem beurkundeten Kaufpreis. Rechtsgrundlage ist ausschließlich der notariell abgeschlossene Kaufvertrag.

Besichtigungen sind nach vorheriger Terminabsprache möglich. Bitte haben Sie Verständnis, dass nur schriftliche Anfragen mit vollständigen Kontaktdaten (Name, Anschrift, Telefonnummer) beantwortet werden können. Stichworte Nutzfläche: 30,00 m², Anzahl der Badezimmer: 1, Anzahl der separaten WCs: 1, Anzahl Balkone: 2, 2 Etagen

Weitere Services

Lust auf eine Besichtigung?
Eine Frage zur Immobilie?
Nachricht hinzufügen
Mit der Nutzung der oben angegebenen Telefonnummer oder durch Klicken auf „Kontaktieren“ akzeptierst Du die Allgemeinen Nutzungsbedingungen, denen Du jederzeit widersprechen kannst. Weitere Informationen zum Datenschutz

Über den Anbieter

August-Bebel-Str. 8, 02625 Bautzen
partner badge
Partnerschaft
Herr Petr Meißner
Herr Petr MeißnerDein Kontakt
Online-ID: 26M1AC5MUAIH
Referenznummer: MPI-137
Meißner & Partner Immobilien
title
Meißner & Partner Immobilien
Nachricht hinzufügen
Mit der Nutzung der oben angegebenen Telefonnummer oder durch Klicken auf „Kontaktieren“ akzeptierst Du die Allgemeinen Nutzungsbedingungen, denen Du jederzeit widersprechen kannst. Weitere Informationen zum Datenschutz
Wie zufrieden bist du mit dieser Seite (nicht mit der Immobilie selbst)?