Sanierte 3-Zimmerwohnung mit Einbauküche mitten in der Innenstadt
Willkommen in Hofheim am Taunus - Ihr neues Zuhause in zentraler Lage! Diese sanierte Wohnung mit Balkon und ca. 70 m² Wohnfläche befindet sich in einem soliden Mehrfamilienhaus und bietet ideale Voraussetzungen für komfortables Wohnen. Eine neue und moderne Einbauküche ist bereits im Mietpreis enthalten.
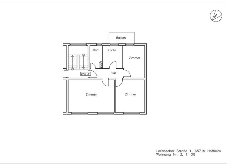
Der gut durchdachte Grundriss sorgt für ein angenehmes Raumgefühl. Die Wohnung verfügt über drei gut geschnittene Zimmer, darunter ein großzügiger Wohnbereich. Über das derzeitige Arbeitszimmer gelangen Sie auf den sonnigen Balkon in Südostausrichtung, der zu entspannten Stunden im Freien einlädt. Das Badezimmer ist zeitlos ausgestattet. Ein separater Kellerraum bietet zusätzlichen Stauraum.
Die Immobilie wurde in den vergangenen Jahren fortlaufend modernisiert. Im Jahr 2022 wurde die Heizungsanlage erneuert und auf einen energieeffizienten Stand gebracht. Zudem ist eine umfassende Aufwertung des gesamten Gebäudes vorgesehen: Die Fassade wird gedämmt und im Erdgeschoss mit einer hochwertigen verklinkerten Optik versehen. Auch die Außenansicht, die Schaufenster sowie die Treppenhäuser werden neugestaltet und verleihen dem Haus ein modernes und ansprechendes Erscheinungsbild.
- Heizungsanlage wurde 2022 erneuert - Fassade wird gedämmt - Fassaden und Schaufenster werden neu angelegt - Treppenhäuser werden neu angelegt
Grundrisse
Grundrisse
1 / 1
Bausubstanz und Energie
Energieausweis
E
Baujahr1955
Zustand der ImmobilieMassivhaus, renoviert / saniert
HeizungsartZentralheizung
EnergieträgerGas
Mietkosten
Warmmiete
1.650 €
Kaltmiete
19,29 €/m²
1.350 €
Nebenkosten
300 €
Heizkosten
in Warmmiete enthalten
Kaution
4.050,00 3 Monatsmieten
Lage
Lorsbacher Str. 1, Hofheim (65719)
Die Lorsbacher Straße 1 befindet sich in einer zentrumsnahen Lage im Stadtteil Hofheim, der mit einer hervorragenden Verkehrsanbindung und einer Vielzahl von Infrastrukturangeboten überzeugt. Die Lage bietet eine ideale Kombination aus urbanem Leben und gleichzeitig ruhigerem Wohnen, was sie sowohl für Geschäfts- als auch für Wohnzwecke besonders attraktiv macht.
In unmittelbarer Nähe befinden sich zahlreiche Einkaufsmöglichkeiten, Restaurants, Cafés sowie Ärzte und Apotheken, die für eine bequeme Nahversorgung sorgen. Zudem ist der Bahnhof Hofheim nur wenige Minuten entfernt, was eine schnelle Anbindung an das öffentliche Verkehrsnetz und an die Städte Frankfurt und Wiesbaden ermöglicht. Die Autobahnen A66 und A3 sind ebenfalls in kurzer Zeit erreichbar und garantieren eine gute Erreichbarkeit des gesamten Rhein-Main-Gebiets.
Für die Freizeitgestaltung bieten die nahegelegenen Parks und Grünflächen zahlreiche Möglichkeiten für Erholung und Sport. Auch die Altstadt von Hofheim mit ihren historischen Gebäuden und dem charmanten Stadtbild ist in wenigen Gehminuten zu erreichen und lädt zum Bummeln und Entspannen ein.
Durch die Kombination aus zentraler Lage, einer ausgezeichneten Infrastruktur und einer hohen Lebensqualität stellt die Lorsbacher Straße 1 einen besonders begehrten Standort in Hofheim dar, der sowohl für Unternehmen als auch für Privatpersonen viele Vorteile bietet.
Weitere Informationen
Stichworte
Süd-Ost-Balkon/Terrasse, Anzahl der Schlafzimmer: 2, Anzahl der Badezimmer: 1