Version: 8.24.0Navigation ĂĽberspringen
14 €
357 m² BĂĽrofläche  â€˘  teilbar ab 357 m²
Immowelt logo

Bürofläche zur Miete • provisionsfrei
14 €
/m²
357 m² BĂĽrofläche  â€˘  teilbar ab 357 m²

Gepflegte Bürofläche - direkt am Feuersee

Die hier aufgeführte Vakanz befindet sich in einem ansprechenden Büro- und Geschäftshaus. Durch die großen Fenster ist eine helle und moderne Arbeitsatmosphäre gegeben. Die Ausstattung umfasst z. B.:

- Laminatboden
- CAT-5
- GK-Wände
- TeekĂĽche
- Personenaufzug

Merkmale

  • TeekĂĽche
  • Personenaufzug
  • Bodenbelag: Laminat, Teppich
- Laminatboden
- Brüstungskanäle
- BĂĽroarbeitsplatzleuchten
- Personenaufzug
- auĂźenliegender Sonnenschutz
- innenliegender Sonnenschutz
- flexibler Grundriss
- Möbel optional erhältlich

Teppichboden, Personenaufzug, Teeküche, Brüstungskanäle, Sonnenschutz außen, Außenstellplätze, Standardausstattung, Laminatboden, Sonnenschutz innen, getr. Damen- u. Herren WCs

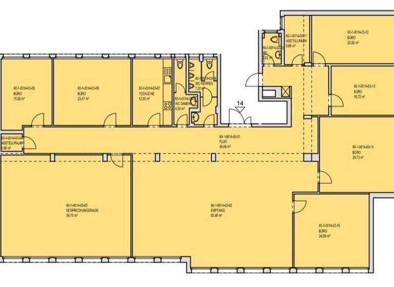
Grundrisse

Grundrisse
1 / 1

Realisiere Dein Projekt

Bausubstanz und Energie

Der Anbieter hat keine Informationen zum Energieverbrauch bereit gestellt.
  • Baujahr1958
  • Zustand der ImmobilieGepflegt
  • EnergieträgerFernwärme
Immowelt logo

Mietkosten

Monatliche Miete
14 €/m²
Nebenkosten
2,50 €
Zusätzliche Kosten
Heizkosten
Provision fĂĽr Mieter
provisionsfrei
Kaution
3 Bruttowarmmieten

Lage

address-icon
West, Stuttgart, Mitte (70178)
Der Anbieter hat die genaue Adresse nicht freigegeben
Das Objekt befindet sich in attraktiver Lage im Stuttgarter Westen direkt am City-Rand. Durch die S-Bahn- und Bushaltestelle "Feuersee" ist eine optimale Verkehrsanbindung gegeben. Gastronomie und Einkaufsmöglichkeiten sind im direkten Umfeld ausreichend vorhanden. Das neue Gerber ist nur wenige Gehminuten entfernt. Kunden aus der Innenstadt können innerhalb weniger Minuten die Mieteinheit erreichen. Der Hauptbahnhof ist wenige S-Bahnhaltestellen entfernt und die nächste Autobahn ist in 15 Minuten erreichbar. Für weiter entfernte Ziele kann der nur 20 Fahrminuten ferne Stuttgarter Flughafen genutzt werden.

Weitere Informationen

Sonstiges Noch nicht das Richtige? Wir fĂĽhren weitere Objekte im GroĂźraum Stuttgart. Sprechen Sie mit unseren Beratern. Gemeinsam finden wir Ihr Wunschobjekt! Wir freuen uns auf Ihre Kontaktaufnahme!

Nach den §§ 16, 16 a EnEV ist der Eigentümer, Verkäufer, Vermieter, Verpächter und Leasinggeber bei der Vermarktung von Immobilien verpflichtet, den Energieausweis der Immobilie gemäß der gesetzlichen Vorgabe bei Besichtigungen auszuhändigen bzw. auszuhängen und bestimmte energetische Kennwerte aus dem Energieausweis in die Immobilieninserate und Exposés aufzunehmen. Dieser Nachweis wurde von uns bereits bei den Eigentümern angefordert und kann von Ihnen beim Besichtigungstermin eingesehen werden. Stichworte Sonstiges: Getrennte Damen- und Herren-WCs

Weitere Services

Lust auf eine Besichtigung?
Eine Frage zur Immobilie?
Nachricht hinzufĂĽgen
Mit der Nutzung der oben angegebenen Telefonnummer oder durch Klicken auf „Kontaktieren“ akzeptierst Du die Allgemeinen Nutzungsbedingungen, denen Du jederzeit widersprechen kannst. Weitere Informationen zum Datenschutz

Ăśber den Anbieter

Immoraum GmbHMaklerbĂĽro
UhlandstraĂźe 14, 70182 Stuttgart
Herr Maximilian Unterreiner
Herr Maximilian UnterreinerDein Kontakt
Online-ID: 2nc5s5b
Referenznummer: IR5396/G1/E3/Eh1
Immoraum GmbH
Immoraum GmbH
Nachricht hinzufĂĽgen
Mit der Nutzung der oben angegebenen Telefonnummer oder durch Klicken auf „Kontaktieren“ akzeptierst Du die Allgemeinen Nutzungsbedingungen, denen Du jederzeit widersprechen kannst. Weitere Informationen zum Datenschutz
Wie zufrieden bist du mit dieser Seite (nicht mit der Immobilie selbst)?