Version: 8.25.1Navigation überspringen
275.000 €
4 Zimmer  •  112,3 m²  •  EG
Immowelt logo

Wohnung zum Kauf
275000 €
2.449 €/m²
4 Zimmer  •  112,3 m²  •  EG

4-Zimmer-Erdgeschosswohnung mit Garten und Garage - Wohnen wie im Haus

Erster Eindruck
Diese großzügige Erdgeschosswohnung überzeugt durch eine durchdachte Raumaufteilung und viel Platz für individuelles Wohnen. Mit ca. 112,28 m² Wohnfläche bietet sie ideale Voraussetzungen für Familien oder Paare und stellt zugleich eine attraktive Alternative zum klassischen Einfamilienhaus dar.
Die Terrasse mit direktem Zugang zum Garten schafft eine angenehme Verbindung zwischen Innen- und Außenbereich und lädt zu entspannten Stunden im Freien ein. Große Fensterflächen sorgen für helle Räume und eine freundliche Wohnatmosphäre.
Mehrere Zimmer, praktische Abstellflächen sowie die bereits im Kaufpreis enthaltene Einbauküche bieten flexible Nutzungsmöglichkeiten und machen die Wohnung zu einem komfortablen Zuhause mit viel Platz

Das Haus
Das Zweifamilienhaus wurde im Jahr 1996 in massiver Bauweise errichtet und befindet sich auf einem großzügigen Grundstück mit einer Fläche von ca. 668 m². Die Hälfte des Grundstückes ist der Wohnung zugeordnet. Die Wohnung liegt im Erdgeschoss und bietet dadurch komfortables Wohnen ohne Treppen innerhalb der eigenen vier Wände.
Die Beheizung erfolgt über eine Gasheizung, die Ende des Jahres 2015 erneuert wurde.
Zur Wohnung gehört außerdem eine Garage. Besonders praktisch ist der darüber liegende begehbare Raum, der zusätzlichen Stauraum bietet und als Kellerersatzraum dient.

Die Wohnung
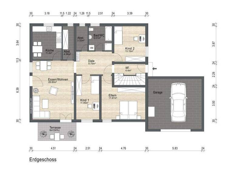
Beim Betreten des Hauses gelangt man zunächst in den Windfang mit ca. 4,40 m², der sich ideal als kleine Garderobe nutzen lässt. Von hier aus betritt man die Wohnung und gelangt in die zentral gelegene Diele mit ca. 9,75 m², von der aus alle Räume der Wohnung erreichbar sind.
Von der Diele aus führt der Weg zunächst in das großzügige Elternschlafzimmer mit ca. 17,67 m², das durch den Blick in den Garten eine besonders angenehme und ruhige Atmosphäre bietet. Ebenfalls gartenseitig liegt das erste Kinderzimmer mit ca. 11,95 m². Ein weiteres Zimmer mit ca. 13,15 m² kann flexibel als Kinderzimmer, Büro, Gästezimmer oder Hobbyraum genutzt werden.
Das Badezimmer mit ca. 6,61 m² ist funktional ausgestattet und verfügt über eine Dusche, ein WC, ein Waschbecken sowie einen Anschluss für eine Waschmaschine. Die praktischen Badezimmermöbel sind bereits im Kaufpreis enthalten. Direkt daneben befindet sich ein Technikraum mit Gäste-WC und einer Fläche von ca. 3,32 m².
Ein besonderes Highlight der Wohnung ist der großzügige Wohn- und Essbereich mit ca. 28,80 m². Der helle Raum bietet ausreichend Platz für einen gemütlichen Wohnbereich sowie einen großen Essplatz. Von hier aus gelangt man direkt auf die Terrasse mit Blick in den Garten- ideal für entspannte Stunden im Freien.
Vom Wohnbereich aus erreicht man außerdem einen praktischen Abstellraum mit ca. 4,58 m², der zusätzlichen Stauraum innerhalb der Wohnung bietet. Ebenfalls angrenzend befindet sich die Küche mit ca. 11,40 m². Die vorhandene Einbauküche ist bereits im Kaufpreis enthalten und fügt sich funktional in den Grundriss der Wohnung ein.

Merkmale

  • Bezug: nach Vereinbarung
  • Erdgeschoss
  • offener Kamin
  • Terrasse
Die Gemeinschaft verwaltet sich selbst, wodurch Verwaltungskosten eingespart werden.

Fazit:
. Großzügige 4-Zimmer-Erdgeschosswohnung mit ca. 112,28 m² Wohnfläche
. Terrasse mit direktem Zugang zum Garten (Sondernutzungsrecht)
. drei flexibel nutzbare Zimmer - ideal als Schlaf-, Kinder-, Gäste- oder Arbeitszimmer
. Einbauküche bereits im Kaufpreis enthalten
. Garage mit zusätzlichem begehbarem Stauraum über der Garage
. Gasheizung im Jahr 2015 erneuert
. Ruhiges Wohnen im Zweifamilienhaus auf einem Grundstück mit ca. 668 m²
. Ideal für Familien, Paare oder alle, die großzügiges Wohnen mit Garten und Terrasse schätzen

Grundrisse

Grundrisse
1 / 1

Realisiere Dein Projekt

Bausubstanz und Energie

Energieausweis

E
  • Baujahr1996
  • Zustand der ImmobilieMassivhaus, Gepflegt
  • HeizungsartZentralheizung
  • EnergieträgerGas
Immowelt logo

Preisdetails

Kaufpreis
275000 €
2.449,23 €/m²
Provision für Käufer
Käuferprovision 3,57 % inkl.19 % MwSt.
Geschätzte Gesamtkosten
299.942 €1
Kaufpreis
275.000 €
Notarkosten (1,5%)
4.125 €
Grunderwerbsteuer (3,5%)
9.625 €
Provision für Käufer (3,57%)
9.817 €
Grundbucheintrag (0,5%)
1.375 €
1Der angezeigte Wert ist eine automatisch berechnete Schätzung von immowelt.
2Bei den Angaben handelt es sich um ortsübliche Werte. Individuelle Kosten können abweichen.

Lage

address-icon
Mühlhausen (92360)
Der Anbieter hat die genaue Adresse nicht freigegeben
Die Lage
Die Wohnung befindet sich in Mühlhausen in einer ruhigen und angenehmen Wohnlage. Die Umgebung ist geprägt von Wohnhäusern und viel Grün, was ein entspanntes und familienfreundliches Wohnumfeld schafft.
Einkaufsmöglichkeiten, Einrichtungen des täglichen Bedarfs, Schulen, Kindergärten sowie medizinische Versorgung sind in kurzer Zeit erreichbar. Auch verschiedene Freizeitmöglichkeiten sowie Spazier- und Radwege befinden sich in der Umgebung.
Die gute Verkehrsanbindung ermöglicht zudem eine schnelle Erreichbarkeit der umliegenden Städte und sorgt für eine komfortable Verbindung zwischen ruhigem Wohnen und guter Infrastruktur.

In der näheren Umgebung befinden sich:

. Einkaufsmöglichkeiten
. Restaurants und Cafés
. Naherholungsflächen und Spazierwege
. Tankstelle
. Schulen und Kindergärten
. Sport- und Freizeitangebote
. Ärzte und Apotheken


Entfernungen:
.Neumarkt 15 km
.Nürnberg 55 km
.Regensburg 70 km
.Ingolstadt 50 km
.München 125 km



Fahrzeit zur nächsten Bushaltestelle: 1 min
Fahrzeit zum nächsten Bahnhof: 11 min
Fahrzeit zur Autobahn: 16 min
Fahrzeit zum nächsten Flughafen: 50 min

Weitere Informationen

Sonstiges Unser Angebot hat Ihr Interesse geweckt?
Wir würden uns sehr freuen, Sie bei einem persönlichen Besichtigungstermin begrüßen zu dürfen.
Bitte benutzen Sie das Kontaktformular.
Bitte haben Sie Verständnis, dass wir Ihre Anfrage nur dann beantworten können, wenn Ihre vollständigen Kontaktdaten mit Name, Anschrift, Telefonnummer, gerne auch E-Mail von Ihnen angegeben werden.

Hinweis: Die hier im Exposé aufgeführten Angaben beruhen auf den uns
vorliegenden Informationen des Eigentümers oder seines Beauftragten.
Eine Haftung für die Richtigkeit hierfür übernimmt Feldbusch Immobilien GmbH nicht. Stichworte Anzahl der Schlafzimmer: 3, Anzahl der Badezimmer: 1, Anzahl Terrassen: 1

Weitere Services

Lust auf eine Besichtigung?
Eine Frage zur Immobilie?
Nachricht hinzufügen
Mit der Nutzung der oben angegebenen Telefonnummer oder durch Klicken auf „Kontaktieren“ akzeptierst Du die Allgemeinen Nutzungsbedingungen, denen Du jederzeit widersprechen kannst. Weitere Informationen zum Datenschutz

Über den Anbieter

Nürnberger Str. 36, 92318 Neumarkt
partner badge
6 Jahre Partnerschaft
Frau Nadine MeyerDein Kontakt

Weitere Unterlagen

Online-ID: 265893LPWEJ2
Referenznummer: 5964
Feldbusch Immobilien GmbH
Feldbusch Immobilien GmbH
Bewertung: 4,2 von 5 Sternen
Nachricht hinzufügen
Mit der Nutzung der oben angegebenen Telefonnummer oder durch Klicken auf „Kontaktieren“ akzeptierst Du die Allgemeinen Nutzungsbedingungen, denen Du jederzeit widersprechen kannst. Weitere Informationen zum Datenschutz
Wie zufrieden bist du mit dieser Seite (nicht mit der Immobilie selbst)?