

Wohnung zum Kauf390000 €3.305 €/m²3 Zimmer • 118 m² • 3. Geschoss
390000 €
3.305 €/m²
3 Zimmer • 118 m² • 3. Geschoss
Wohnung 118m2 zum Kauf - Zadar, Vir
Merkmale
- 3. Geschoss
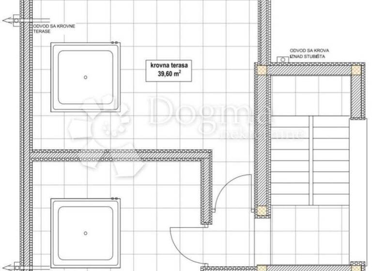
Grundrisse
Grundrisse
1 / 3
Realisiere Dein Projekt
Bausubstanz und Energie
Der Anbieter hat keine Informationen zu Energieverbrauch oder Zustand der Immobilie bereit gestellt.
Preisdetails
Kaufpreis
390000 €
3.305,08 €/m²
Provision für Käufer
Bitte beachte, das Angebot kann bei Vertragsabschluss die Zahlung einer Provision beinhalten. Weitere Informationen erhältst Du vom Anbieter.
Lage

Vir
Der Anbieter hat die genaue Adresse nicht freigegeben
Weitere Informationen
Weitere Services
Lust auf eine Besichtigung?
Eine Frage zur Immobilie?
Ăśber den Anbieter
Online-ID: 2ngp75f
Referenznummer: 18674844_1

Crozilla.com
Wie zufrieden bist du mit dieser Seite (nicht mit der Immobilie selbst)?

