Version: 8.24.0Navigation ĂĽberspringen
300.000 €
Immowelt logo

Bürogebäude zum Kauf • als Kapitalanlage geeignet
300000 €

In Garbsen: Vermietete Arztpraxis

In Garbsen: Vermietete Arztpraxis mit unbefristetem Mietvertrag, 6 Parkplätzen + 1 Behinderten Parkplatz.

Merkmale

- Netto ME. (IST) ca. 18.000,- € p.a.
- Teileigentum ca. 187 m²
- Flachdach vor 5 Jahren erneuert
- 6 Parkplätze
- 1 Behinderten Parkplatz
- Bushaltestelle vor der TĂĽr

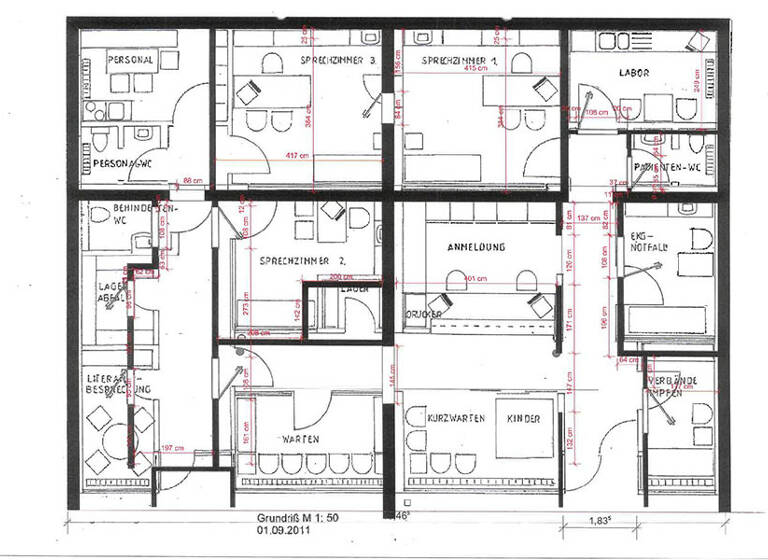
Grundrisse

Grundrisse
1 / 1

Realisiere Dein Projekt

Bausubstanz und Energie

Der Anbieter hat keine Informationen zum Energieverbrauch bereit gestellt.
  • Baujahr1971
  • HeizungsartZentralheizung
  • EnergieträgerGas
Immowelt logo

Preisdetails

Kaufpreis
300000 €
Provision für Käufer
Nachweis-/Vermittlungsprovision: 5% vom Kaufpreis zzgl. der gesetzlichen Mehrwertsteuer (= 5,95%), fällig bei Abschluss eines notariellen Kaufvertrages, zahlbar vom Käufer..
Weitere Preisinformationen
Ist-Mieteinnahmen pro Jahr: 18.000,00 EUR
Geschätzte Gesamtkosten
317.850 €1
Kaufpreis
300.000 €
Provision für Käufer (5,95%)
17.850 €
1Der angezeigte Wert ist eine automatisch berechnete Schätzung von immowelt.
2Bei den Angaben handelt es sich um ortsübliche Werte. Individuelle Kosten können abweichen.

Lage

address-icon
Berenbostel, Garbsen (30827)
Der Anbieter hat die genaue Adresse nicht freigegeben
****************************
Sie haben auch ein Haus in dieser Lage zu verkaufen?
Genau für Ihre Immobilie haben wir den passenden Käufer!
Fragen Sie doch einfach mal nach unter: 0511-1260770 oder info@von-wuelfing.de.
****************************

Weitere Informationen

Sonstiges Noch mehr schöne Häuser und Wohnungen finden Sie hier: www.von-wuelfing-immobilien.de

Weitere Services

Lust auf eine Besichtigung?
Eine Frage zur Immobilie?
Nachricht hinzufĂĽgen
Mit der Nutzung der oben angegebenen Telefonnummer oder durch Klicken auf „Kontaktieren“ akzeptierst Du die Allgemeinen Nutzungsbedingungen, denen Du jederzeit widersprechen kannst. Weitere Informationen zum Datenschutz

Ăśber den Anbieter

IndustriestraĂźe 3-5, 30916 Isernhagen
partner badge
Partnerschaft
Axel MielkeDein Kontakt
Online-ID: 2htzj5f
Referenznummer: 200344
Volker von WĂĽlfing Immobilien GmbH
Volker von WĂĽlfing Immobilien GmbH
Nachricht hinzufĂĽgen
Mit der Nutzung der oben angegebenen Telefonnummer oder durch Klicken auf „Kontaktieren“ akzeptierst Du die Allgemeinen Nutzungsbedingungen, denen Du jederzeit widersprechen kannst. Weitere Informationen zum Datenschutz
Wie zufrieden bist du mit dieser Seite (nicht mit der Immobilie selbst)?