Natur genießen, Stadtnähe behalten: Gemütliches Wochenendhaus auf Pachtgrundstück mit schneller Anbindung an Bremen!
Dieses charmante Wochenendhaus bietet Ihnen die perfekte Gelegenheit, dem Alltag zu entfliehen und die Ruhe der Natur zu genießen. Eingebettet in eine grüne, ruhige Umgebung ist es der ideale Ort für Erholung, Freizeit und kleine Auszeiten - sei es allein, zu zweit oder mit der Familie. Das Wochenendhaus besticht durch eine gemütliche Wohnatmosphäre in Verbindung mit einer funktionalen Ausstattung. Sie finden hier Ihren ganz eigenen Rückzugsort, an dem Sie tun können, was Sie möchten, wann Sie möchten!
Sehen Sie sich nach einem Rückzugsort? Dann vereinbaren Sie einen Besichtigungstermin mit uns - denn nur bei einer Innen- und Außenbesichtigung können Sie erkennen, ob die Immobilie Ihren Anforderungen und Wünschen entspricht.
Merkmale
1.000 m² Grundstück
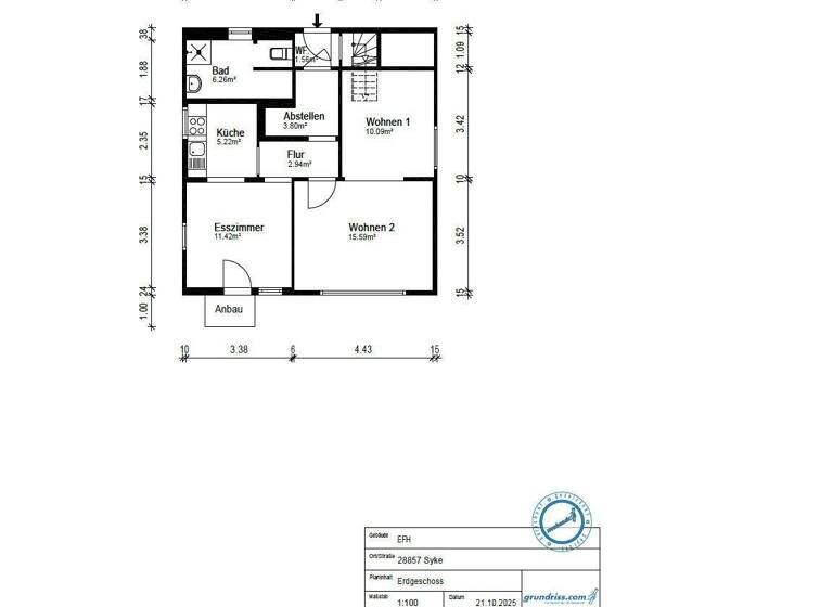
Das Ursprungsbaujahr des Wochenendhauses ist 1968. Per Bauantrag wurde 1993 der "Umbau eines Wochenendhauses" beantragt (Errichtung Satteldach). Die Grundfläche wird darin mit 57,11 m² angegeben. 2004 wurde per Bauantrag der "Anbau Vorraum und Neubau Garage" beantragt. Die bebaute Fläche beläuft sich demnach auf 69,43 m². Das Haus wurde in Holzständerbauweise errichtet und verfügt über einen Essbereich, Wohnbereich mit angrenzendem Büro (Schlafzimmer), Küche, Badezimmer. Große Fenster und eine überdachte Terrasse laden dazu ein, die Natur zu jeder Jahreszeit zu erleben. Im Dachgeschoss befinden sich ausgebaute Hobbyräume.
- Überwiegend isolierverglaste Kunststofffenster mit Außenrollläden - Innenliegendes Bad mit Dusche, Waschbecken und WC - Holztreppe ins Dachgeschoss.
In einigen Bereichen (Decken, Wänden) sind Feuchtigkeitserscheinungen sichtbar.
Haustechnik: Elektrizität, Wasser, Gaszentralheizung (warmes Wasser über Elektrogeräte), Kanalisation. Die Funktionsfähigkeit konnte nicht geprüft werden.
Pachtvertrag: Der Käufer schließt mit dem Eigentümer der gesamten Anlage einen Pachtvertrag. In diesem Pachtvertrag wird die individuelle Nutzung geregelt. Der jährliche Pachtzins betrug derzeit 1.963 Euro/Jahr. Bei der Bebauung des Grundstücks sollen die Baulichkeiten 75 m² Wochenendhausgrundfläche (eingeschossig) und 37 m² Nebenanlagen (überdachte Terrassenteile, Garage, Stellplatz) nicht überschreiten. Es ist nicht bekannt, ob diese Vorgaben eingehalten worden sind.
Übergabe: Das Wochenendhaus ist frei - aber nicht geräumt. Die Räumung des Hauses erfolgt nach dem notariellen Kaufvertrag.
Betreuung: Da es sich um eine gerichtliche Betreuung handelt, muss das Gericht den Kaufvertrag genehmigen. Die Abwicklung des Vertrages und die Übergabe können sich dadurch deutlich verzögern!
Grundrisse
Grundrisse
1 / 2
Realisiere Dein Projekt
Bausubstanz und Energie
Energieausweis
Ein Energieausweis ist für diesen Gebäudetyp nicht notwendig.
Baujahr1968
Zustand der ImmobilieHolzhaus
HeizungsartZentralheizung
EnergieträgerGas
Preisdetails
Kaufpreis
60000 €60.000 €
810,81 €/m²
Provision für Käufer
3,57 % des Kaufpreises inkl. Mehrwertsteuer
Geschätzte Gesamtkosten
66.342 €1
Kaufpreis
60.000 €
Kaufnebenkosten
6.342 €
2
Notarkosten (1,5%)
900 €
Grunderwerbsteuer (5%)
3.000 €
Provision für Käufer (3,57%)
2.142 €
Grundbucheintrag (0,5%)
300 €
1Der angezeigte Wert ist eine automatisch berechnete Schätzung von immowelt.
2Bei den Angaben handelt es sich um ortsübliche Werte. Individuelle Kosten können abweichen.
Lage
Syke (28857)
Der Anbieter hat die genaue Adresse nicht freigegeben
Grundstück: Die Parzellengröße ist privatrechtlich von den Verpächtern festgelegt worden und bietet viel Platz für Erholung, Gartenfreuden oder gesellige Stunden im Freien. Ob Liegewiese, Gemüsegarten oder Grillplatz - hier ist vieles möglich. Der Garten ist pflegeleicht angelegt und bietet ausreichend Privatsphäre. Das Haus befindet sich auf einem Pachtgrundstück in einer Wochenendhausanlage, so dass Sie ausschließlich das Haus und die Nebengebäude erwerben - das Grundstück nicht!
Nebengebäude: Auf dem Grundstück befinden sich außerdem eine Garage und ein Abstellgebäude, welche zusätzlichen Stauraum bieten - perfekt für Ihren Wagen, Ihre Gartengeräte, Spielsachen oder Freizeitutensilien.
Lage in Ristedt: Das Wochenendhaus befindet sich in ruhiger, naturnaher Lage - ideal für Spaziergänge, Radtouren oder einfach zum Durchatmen. Das Naherholungsgebiet "Warwer Sand" im Naturpark "Wildeshäuser Geest" mit seinen Sanddünen und Waldflächen ist fußläufig erreichbar. Gleichzeitig sind Einkaufsmöglichkeiten und die Anbindung an die Stadt in vertretbarer Nähe - so genießen Sie die Ruhe, ohne auf Komfort verzichten zu müssen. Die nächstgelegene Stadt Syke erreichen Sie nach rund 8 Kilometer mit dem Auto oder der Busverbindung. In Syke erwartet Sie eine gut ausgebaute Infrastruktur mit zahlreichen Einkaufsmöglichkeiten, Ärzten, Apotheken, Dienstleistungsunternehmen und sämtlichen Freizeitaktivitäten wie ein Schwimmbad, ein Kino, Sportvereine und vieles mehr. Neben einer guten Busverbindung bietet Syke einen Bahnhof, von dem aus Sie die Großstadt Bremen erreichen. Weitere Informationen finden Sie unter: www.syke.de.
Weitere Informationen
Sonstiges
Die vom Käufer zu zahlende Grunderwerbsteuer beträgt 5 %, zusätzlich trägt der Käufer die Notar- und Gerichtskosten. Wir haben einen provisionspflichtigen Maklervertrag mit dem Verkäufer in gleicher Höhe abgeschlossen. Dieses Angebot ist freibleibend. Wir bemühen uns, alle Angaben so vollständig und richtig wie möglich zu machen. Da wir uns hierbei auch auf die Informationen, die wir von Dritten (Verkäufern, Behörden, usw.) erhielten, stützen müssen, übernehmen wir keine Gewähr für die Richtigkeit der Angaben.