Version: 8.26.0Navigation überspringen
CBRE GmbH
12 €
658 m² Bürofläche  •  teilbar ab 205 m²

Bürofläche zur Miete • provisionsfrei
12 €
/m²
658 m² Bürofläche  •  teilbar ab 205 m²

Büro- und Praxisflächen mit idealer Anbindung an die A59: Lichtdurchflutete Flächen in Köln-Wahn

Merkmale

  • Bezug: kurzfristig
  • Erdgeschoss
  • Barrierefrei
BELÜFTUNG/KLIMATISIERUNG
öffenbare Fenster

SONNENSCHUTZ
außenliegender, elektrischer Sonnenschutz

EDV-VERKABELUNG
CAT-7-Verkabelung, Hohlraum-/Doppelboden

BODENBELAG
Natursteinboden, Teppichboden/-fliesen

WANDSYSTEME/TÜREN
Gipskartonwände

DECKE
abgehängte Akustikdecke, abgehängte Rasterdecke, verputzte Decke

BELEUCHTUNG
BAP-gerechte Beleuchtung, Deckenleuchten, Pendelleuchten

AUFZUG
Personenaufzug

SICHERHEIT
Zugangskontrollsystem

ANLIEFERUNG
barrierefreier Zugang

BLICK/BALKONE
Austritt, begrünter Innenhof, Dachterrasse(n)

EMPFANGSBEREICH
repräsentative Lobby

FASSADE
Ziegelsteinfassade

GASTRONOMIE
Gastronomie in der näheren Umgebung

GEBÄUDESERVICES
repräsentative Lobby

TEEKÜCHE
ausgestattete Teeküche(n)

HEIZUNG
Gasheizung

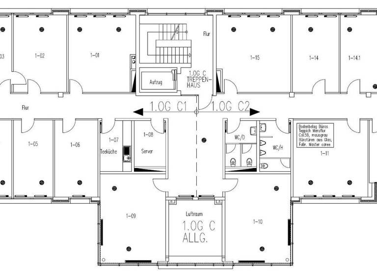
Grundrisse

Grundrisse
1 / 1

Bausubstanz und Energie

Energieausweis

Endenergieverbrauch (Wärme)

Endenergieverbrauch (Strom)

  • Baujahr2002
  • Zustand der ImmobilieGepflegt
MediumRectangleTop

Mietkosten

Monatliche Miete
12 €/m²
Nebenkosten
3 €
Provision für Mieter
provisionsfrei
Kaution
keine Angabe

Lage

address-icon
WahnKöln (51147)
Der Anbieter hat die genaue Adresse nicht freigegeben
Die Büromarktzone Porz / Flughafen erstreckt sich von der A 4 südlich entlang den Autobahnen A 559 und A 59 südlich bis zur Stadtgrenze. Sie umfasst das gesamte Porzer Stadtgebiet und die Gewerbegebiete Westhoven, Gremberghoven, Wahn und den Flughafen Köln-Bonn. Traditionell haben sich hier Logistikunternehmen und Gewerbebetriebe angesiedelt. Durch die zunehmende Globalisierung ist in den letzten Jahren auch ein Zuzug von internationalen Firmen zu verzeichnen, die die absolute Flughafennähe schätzen. Durch diese Entwicklung sind beachtliche Bürohausneubauten entstanden, die die Attraktivität dieses Bereiches merklich erhöht haben. Einkaufsmöglichkeiten befinden sich im Zentrum von Köln-Porz, sowie in diversen Fachmarktlagen, die per PKW schnell erreichbar sind. Der Flughafen ist sehr gut mit der Bahn zu erreichen, zwei Straßenbahnlinien und eine S-Bahn-Haltepunkt sowie zahlreiche Buslinien stellen die Versorgung mit öffentlichen Verkehrsmitteln sicher.

Weitere Informationen

Sonstiges Unsere Nachweis- bzw. Vermittlungsprovision beträgt bei Abschluss eines Mietvertrages mit einer Laufzeit von bis zu 5 Jahren 3 Netto-Monatsmieten zzgl. gesetzlicher MwSt.. Bei einer Laufzeit von über 5 Jahren berechnen wir 4 Netto-Monatsmieten zzgl. gesetzlicher MwSt.. Bei einer Laufzeit von über 10 Jahren berechnen wir 5 Netto-Monatsmieten zzgl. gesetzlicher MwSt.. Optionen auf Verlängerung des Vertrages werden wie Vertragslaufzeiten behandelt. Mietfreie Zeiten werden bei der Kalkulation nicht in Abzug gebracht. Insofern Optionen hinsichtlich Fläche und/oder Stellplätze und/oder An- bzw. Vormietrechte vereinbart wurden, wird eine weitere Netto-Monatsmiete zzgl. gesetzlicher MwSt. berechnet. Wir betonen jedoch, dass die Eigentümer der o.a. Liegenschaften häufig bereit sind, unser Honorar bei Abschluss eines Mietvertrages zu übernehmen und auch die im Exposé angegebenen Mietpreise verhandelbar sind. Dies ist allerdings Bestandteil von Mietvertragsverhandlungen.

Bei Abschluss eines Kaufvertrages ist eine Provision von 3 % des vertraglich vereinbarten Kaufpreises zzgl. gesetzlicher MwSt. zu zahlen.

Die Provision ist vom Mieter/Käufer an CBRE zu zahlen und ist fällig und zahlbar bei Vertragsabschluss. Stichworte Gesamtfläche: 658,00 m² Sonstiges: EDV-Verkabelung

Weitere Services

Lust auf eine Besichtigung?
Eine Frage zur Immobilie?
Mit einer persönlichen Nachricht hast du bessere Chancen auf eine Antwort.
Mit der Nutzung der oben angegebenen Telefonnummer oder durch Klicken auf „Kontaktieren“ akzeptierst Du die Allgemeinen Nutzungsbedingungen, denen Du jederzeit widersprechen kannst. Weitere Informationen zum Datenschutz

Über den Anbieter

Hohenzollernring 72, 50672 Köln
Herr Severin Brochhaus
Herr Severin BrochhausDein Kontakt
Online-ID: 25JUFRBDWYRF
Referenznummer: 65866@13@0
MediumRectangleTop
Wie zufrieden bist du mit dieser Seite (nicht mit der Immobilie selbst)?