Version: 8.24.0Navigation ĂĽberspringen
384.800 €
2 Zimmer  â€˘  53,8 m²  â€˘  EG
Immowelt logo

Wohnung zum Kauf - Neubau
384800 €
7.155 €/m²
2 Zimmer  â€˘  53,8 m²  â€˘  EG

GroĂźzĂĽgiger Raum auf kompaktem Raum, QNG-zertifiziert

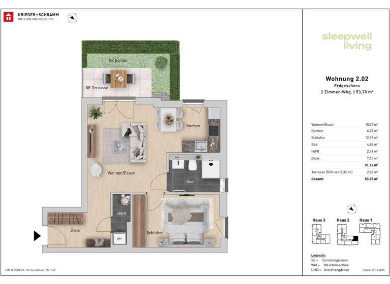
Diese effizient geschnittene 2-Zimmer-Wohnung überzeugt durch eine klare Raumstruktur und hohe Vermietbarkeit. Auf rund 53,78 m² Gesamtfläche (inkl. anteiliger Terrasse) entsteht ein modernes Zuhause für Singles oder Paare.

Der Wohn- und Essbereich mit ca. 18,37 m² bildet das Zentrum der Wohnung und bietet direkten Zugang zur Terrasse mit Sondernutzungsrecht am Garten. Die Küche mit rund 6,23 m² ist funktional angebunden, ein Pluspunkt in der Vermietung. Das Schlafzimmer bietet angenehme Proportionen und optimale Stellflächen. Das Bad ist kompakt geplant, ergänzt durch einen separaten Hauswirtschaftsraum mit Waschmaschinenanschluss. Die großzügige Diele sorgt für ein offenes Entrée.

Für Kapitalanleger besonders attraktiv: Das Projekt ist QNG-zertifiziert (Qualitätssiegel Nachhaltiges Gebäude). Dadurch können sich steuerliche Sonderabschreibungen im Rahmen der geltenden Förderbedingungen ergeben. Gleichzeitig sorgt die energieeffiziente Bauweise für dauerhaft niedrige Betriebskosten.

Mit der 10-jährigen Vermietungsgarantie, inklusive Vermietungsservice sichern Sie sich planbare Einnahmen ab Übergabe, für ein klar kalkulierbares Investment mit minimalem Aufwand.

Merkmale

  • Erdgeschoss
  • Personenaufzug
  • Kelleranteil
  • Stellplatz
- KfW 40 Energieeffizienzhaus inklusive QNG-Siegel
- Strapazierfähige Ausstattung
- Parkett, FuĂźbodenheizung, Fliesen im Format 60 x 60 cm
- Sanitärobjekte von deutschen Markenherstellern)
- Balkon, Terrasse oder Garten
- Stellplätze inklusive Option auf eine Ladestation
- Aufzug in alle Etagen
- Glasfaseranbindung
- Kellerräume
- Fahrradstellplätze
- Attraktive GrĂĽnanlagen inkl. Urban Gardening auf der Dachterrasse von Haus 2

Grundrisse

Grundrisse
1 / 1

Realisiere Dein Projekt

Bausubstanz und Energie

Der Anbieter hat keine Informationen zum Energieverbrauch bereit gestellt.
  • Zustand der ImmobilieNeubau, Erstbezug
  • HeizungsartFuĂźbodenheizung
Immowelt logo

Preisdetails

Kaufpreis
384800 €
7.155,08 €/m²
Provision für Käufer
Bitte beachte, das Angebot kann bei Vertragsabschluss die Zahlung einer Provision beinhalten. Weitere Informationen erhältst Du vom Anbieter.
Geschätzte Gesamtkosten
429.321 €1
Kaufpreis
384.800 €
Notarkosten (1,5%)
5.772 €
Grunderwerbsteuer (6%)
23.088 €
Provision für Käufer (3,57%)
13.737 €
Grundbucheintrag (0,5%)
1.924 €
1Der angezeigte Wert ist eine automatisch berechnete Schätzung von immowelt.
2Bei den Angaben handelt es sich um ortsübliche Werte. Individuelle Kosten können abweichen.

Lage

address-icon
Schulstraße 29-31, Hattersheim, Hattersheim am Main (65795)
Zentral im Rhein-Main-Gebiet. Mitten in Deutschland. Mit bester Anbindung an die Welt. Hattersheim ĂĽberzeugt als attraktiver Wohnort mit zukunftsorientierter Stadtentwicklung. Ihr Vorteil: Die Immobilienpreise liegen aktuell noch unter dem Niveau vergleichbarer Lagen.

Hattersheim punktet mit stetigem Bevölkerungswachstum, starker wirtschaftlicher Entwicklung und einer optimalen Lage und ist bestens angebunden an Frankfurt, den Flughafen, Wiesbaden und das gesamte Rhein-Main-Gebiet. Damit ist der Standort sowohl zum Leben als auch Arbeiten attraktiv und bietet ideale Voraussetzungen für Investitionen in Wohnraum.

Hattersheims strategische Lage nahe des weltweit größten Internetknotens DE-CIX, eine exzellente Verkehrsanbindung, gute Strom- und Flächenverfügbarkeit sowie kurze Abstimmungswege ziehen zunehmend Technologieunternehmen und Rechenzentrumsbetreiber an. Passend dazu treibt die Stadtverwaltung auch die eigene Digitalisierung zum Vorteil der Bürger stetig voran.

Weitere Informationen

Stichworte Anzahl der Schlafzimmer: 1, Anzahl der Badezimmer: 1, 4 Etagen

Weitere Services

Lust auf eine Besichtigung?
Eine Frage zur Immobilie?
Nachricht hinzufĂĽgen
Mit der Nutzung der oben angegebenen Telefonnummer oder durch Klicken auf „Kontaktieren“ akzeptierst Du die Allgemeinen Nutzungsbedingungen, denen Du jederzeit widersprechen kannst. Weitere Informationen zum Datenschutz

Ăśber den Anbieter

Altenhöferallee 68, 60438 Frankfurt/Main
partner badge
10 Jahre Partnerschaft
Ihr VerkaufsteamDein Kontakt
Online-ID: 2ndcj5p
Referenznummer: 5601-2.02
Krieger + Schramm GmbH & Co. KG
Krieger + Schramm GmbH & Co. KG
Nachricht hinzufĂĽgen
Mit der Nutzung der oben angegebenen Telefonnummer oder durch Klicken auf „Kontaktieren“ akzeptierst Du die Allgemeinen Nutzungsbedingungen, denen Du jederzeit widersprechen kannst. Weitere Informationen zum Datenschutz
Wie zufrieden bist du mit dieser Seite (nicht mit der Immobilie selbst)?