Version: 8.24.0Navigation ĂĽberspringen
320.000 €
2 Zimmer  â€˘  80 m²  â€˘  3. Geschoss
Immowelt logo

Wohnung zum Kauf
320000 €
4.000 €/m²
2 Zimmer  â€˘  80 m²  â€˘  3. Geschoss

Wohnung 80m2 zum Kauf - Split-Dalmatia, Okrug

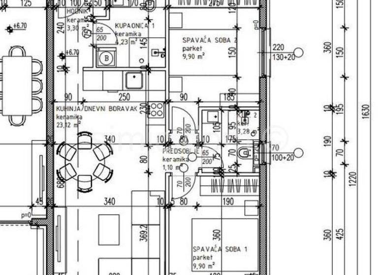
Zum Verkauf steht ein Neubauapartment auf der Südseite der Insel Ciovo, nur 10 Gehminuten vom Strand entfernt. Das Apartment trägt die Bezeichnung S8 und befindet sich im dritten Stock eines Gebäudes mit Aufzug. Es verfügt über eine Gesamtinnenfläche von 55,46 m2, einen Balkon von 14,62 m2 und eine Dachterrasse von 70 m2 Grundfläche. Von der Dachterrasse bietet sich ein spektakulärer Panoramablick auf das Meer und den gesamten Okrug Gornji. Die gesamte Nettofläche des Apartments beträgt 80,37 m2. Es besteht aus zwei Schlafzimmern, zwei Badezimmern und einer Küche mit Wohnzimmer und Esszimmer, die zu einem geräumigen Balkon führt. Zum Apartment gehört ein privater Parkplatz. Das Gebäude verfügt über einen 28 m großen Swimmingpool, der von allen Eigentümern genutzt werden kann. Das Gebäude wird von hoher Qualität sein und über eine 10-cm-Wärmedämmung verfügen. Jedes Apartment wird über Fußbodenheizung und Klimaanlage verfügen. Die Bauarbeiten begannen im Februar 2024, der Bezug wird für Mai 2025 erwartet.

Die Standardgeschäftspolitik unserer Immobilienagentur besteht darin, eine Besichtigung der Immobilie zu organisieren, nachdem der Kunde unseren Standardagenturvertrag unterzeichnet hat. Die Unterzeichnung dieser Vereinbarung ist eine Grundvoraussetzung für weitere Aktivitäten im Zusammenhang mit dem Immobilienkauf, die auf dem Immobilienmaklergesetz und dem Datenschutzgesetz beruhen.

Merkmale

  • 3. Geschoss

Grundrisse

Grundrisse
1 / 2

Realisiere Dein Projekt

Bausubstanz und Energie

Der Anbieter hat keine Informationen zu Energieverbrauch oder Zustand der Immobilie bereit gestellt.
Immowelt logo

Preisdetails

Kaufpreis
320000 €
4.000 €/m²
Provision für Käufer
Bitte beachte, das Angebot kann bei Vertragsabschluss die Zahlung einer Provision beinhalten. Weitere Informationen erhältst Du vom Anbieter.

Lage

address-icon
Okrug
Der Anbieter hat die genaue Adresse nicht freigegeben

Weitere Informationen

Stichworte Anzahl der Badezimmer: 2, 1 Etagen

Weitere Services

Lust auf eine Besichtigung?
Eine Frage zur Immobilie?
Nachricht hinzufĂĽgen
Mit der Nutzung der oben angegebenen Telefonnummer oder durch Klicken auf „Kontaktieren“ akzeptierst Du die Allgemeinen Nutzungsbedingungen, denen Du jederzeit widersprechen kannst. Weitere Informationen zum Datenschutz

Ăśber den Anbieter

Crozilla.com
Crozilla.comMaklerbĂĽro
Nova cesta 60, 10000 ZAGREB
Simic dom ltdDein Kontakt
Online-ID: 2nplf5n
Referenznummer: 18603053_3
Crozilla.com
Crozilla.com
Nachricht hinzufĂĽgen
Mit der Nutzung der oben angegebenen Telefonnummer oder durch Klicken auf „Kontaktieren“ akzeptierst Du die Allgemeinen Nutzungsbedingungen, denen Du jederzeit widersprechen kannst. Weitere Informationen zum Datenschutz
Wie zufrieden bist du mit dieser Seite (nicht mit der Immobilie selbst)?