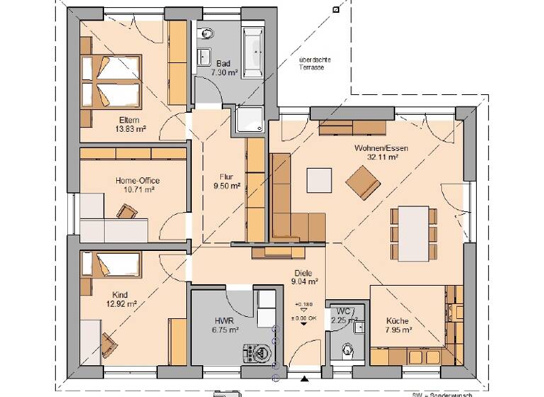
Das Familienhaus Enea überzeugt als ebenerdiger Wohntraum mit einem offenen Wohn-/Essbereich mit angrenzender Küche. Hier kann das Leben statt finden. Außerdem bietet das Haus ein Elternschlafzimmer, ein Kinderzimmer und ein Home-Office. Genug Räume um Rückzugsmöglichkeiten zu schaffen. Abgerundet wird der eingeschossige Grundriss durch ein Familienbad, ein Gäste-WC und dem Hauswirtschaftsraum.
Eine geschützte Oase für den Sommer bietet die überdachte Terrasse Richtung Garten.
Dieses Haus wird nach Ihren individuellen Wünschen geplant und ausgestattet!
+ Massivhaus als Ausbauhaus im Sinne der Bau- und Ausstattungsbeschreibung "Paulo" + Gebäudehülle ist für Effizienzhaus 40 optimiert + Inklusive Bodenplatte + Architekten- und Ingenieurleistungen (u. a. Bauantrag, Werkplanung, Statik und Wärmeschutzberechnung) + Zimmermannsmäßiger Dachstuhl aus Konstruktionsvollholz + Dacheindeckung mit Betondachsteinen von Braas mit Star-Oberfläche + Hochwertiger Kunstharz-Außenputz für eine langlebige Fassade + Haustür mit 5-fach-Sicherheitsverriegelung + Fenster mit 3-Scheiben-Wärmeschutzverglasung und Rollläden + Dachflächenfenster von Velux oder Roto + Granitaustrittsschwellen an bodengleichen Terrassentüren
Grundrisse
Grundrisse
1 / 1
Realisiere Dein Projekt
Bausubstanz und Energie
Energieausweis
Der Anbieter hat keine Daten zum Energieausweis hinterlegt.
Baujahr2026
Zustand der ImmobilieNeubau, Projektiert
HeizungsartZentralheizung
Preisdetails
Kaufpreis
402683.8 €402.683,80 €
3.595,39 €/m²
Provision für Käufer
provisionsfrei
Geschätzte Gesamtkosten
430.871 €1
Kaufpreis
402.684 €
Kaufnebenkosten
28.187 €
2
Notarkosten (1,5%)
6.040 €
Grunderwerbsteuer (5%)
20.134 €
Grundbucheintrag (0,5%)
2.013 €
1Der angezeigte Wert ist eine automatisch berechnete Schätzung von immowelt.
2Bei den Angaben handelt es sich um ortsübliche Werte. Individuelle Kosten können abweichen.
Lage
Neustadt, Neustadt an der Orla (07806)
Der Anbieter hat die genaue Adresse nicht freigegeben
Neustadt an der Orla ist mit ungefähr 9000 Einwohnern ein übersichtliches Örtchen - ganz im Gegensatz zu seiner historischen und kulturellen Relevanz. In der Kleinstadt im Saale-Orla-Kreis kommt wirklich jeder auf seine Kosten. Natur- und Sportbegeisterte finden hier zahlreiche Möglichkeiten zum Wandern, Schwimmen und gemeinsam aktiv werden; all das, während sie die urigen Gebäude der Stadt bewundern können. Im Lutherhaus soll Martin Luther während seines Aufenthalts in Neustadt gehaust haben, und die gut erhaltenen Fleischbänke wurden im Mittelalter für den Handel verwendet. Genießen Sie das mittelalterliche Flair in all seinen Facetten - etwa auf dem alljährlichen Brunnenfest, welches seit dem Mittelalter eine regionale Tradition darstellt.
Die Lage des Grundstücks lässt keine Wünsche offen. Alles was das Herz begeht ist nur einen Katzensprung entfernt. Verschiedene Schulen und Kindertagesstätten sind innerhalb weniger Minuten zu Fuß erreichbar und liegen direkt an den Sport- und Spielplätzen, die Ihre Jüngsten fit und gesund halten. Die nächsten Einkaufsmöglichkeiten liegen fast schon direkt vor Ihrer Tür und auch ein Abstecher in das Stadtzentrum erfordert keinen Einstieg in ein Auto oder einen Bus. Zieht es Sie dann doch einmal in die Ferne, können Sie die nahe Bushaltestelle in der Friedhofsstraße nutzen.
Mit dem Auto erreichen Sie schnell die Umgehungsstraße Richtung Pößneck sowie Richtung Triptis mit Anschluss zur BAB 9.
Weitere Informationen
Sonstiges
Kern-Haus
Kern-Haus baut individuelle und massive Architektenhäuser zu einem attraktiven Preis-Leistungs-Verhältnis - und das bereits mit einer Erfahrung seit 1980.
Maximale Sicherheit bei Kern-Haus: + 10 Jahre Gewährleistung auf die wesentlichen Bauleistungen + Bis zu 18 Monate Festpreisbindung + 50 Jahre Gewährleistung auf das DuoTherm-Mauerwerk + Verbindliche Bauzeit + Zahlung nach Baufortschritt
Preise und Auszeichnungen von Kern-Haus: - German Brand Award in den Jahren 2018 und 2021 - Hausbau Design Award: Sieger in den Jahren 2017, 2018, 2019, 2020, 2021, 2022 und 2023 - Deutscher Traumhauspreis: Sieger in den Jahren 2014, 2015, 2016 und 2018 und Silber 2017, 2020 und 2021 - Mittelstandspreis "Top 100" in den Jahren 2014, 2016, 2018, 2020 und 2022 - German Design Award im Jahr 2018
Weitere Informationen
Der gezeigte Preis versteht sich inklusive Grundstück und exklusive der Baunebenkosten.
Ihre Ansprechpartnerin Katrin Klein vom Kern-Haus-Team in Erfurt freut sich darauf Ihre Fragen zu beantworten. Jetzt anrufen: 0361 / 551450
Kern-Haus in Erfurt - https://www.kern-haus.de/erfurt/
Weitere Architektenhäuser - https://www.kern-haus.de/haeuser
Stichworte
Stellplatz vorhanden, Anzahl der Schlafzimmer: 2, Anzahl der separaten WCs: 1