Version: 8.24.0Navigation ĂĽberspringen
430.000 €
3,5 Zimmer  â€˘  117,2 m²  â€˘  920 m² GrundstĂĽck
Immowelt logo

Einfamilienhaus zum Kauf
430000 €
3.670 €/m²
3,5 Zimmer  â€˘  117,2 m²  â€˘  920 m² GrundstĂĽck

Traumhaftes Einfamilienhaus mit Doppelgarage, großem Grundstück und Erdwärme in Limbach-Oberfrohna

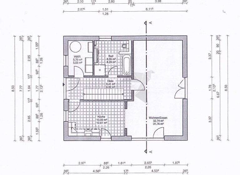
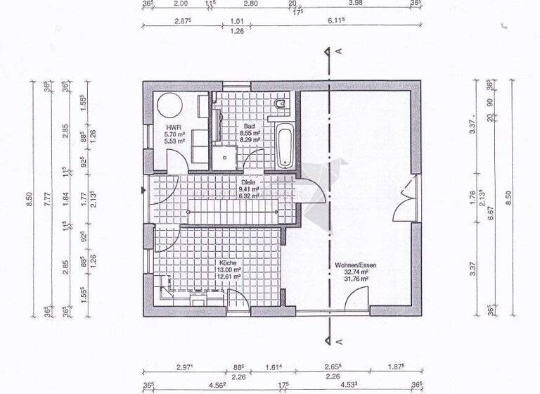
Das im Jahr 2014 massiv errichtete Einfamilienhaus verfügt über ca. 117,18m² Wohnfläche auf zwei Etagen.
Auf dem ca. 920m² großen Grundstück stehen eine Terrasse und ein gepflegter grüner Garten für Entspannung bereit.
Die Doppelgarage fasst zwei PKW-Stellplätze, zudem sorgt eine geräumige Zufahrt für weitere Abstellmöglichkeiten.
Durch hochwertige Wärmedämmung und die Beheizung durch Erdwärme verfügt das Haus über eine tolle Energieeffizienz.

Merkmale

  • Bezug: nach Vereinbarung
  • 920 m² GrundstĂĽck
  • Haustiere erlaubt
  • 4 Stellplätze: 2 Garagen, 2 AuĂźen-Stellplätze
  • Garten
  • Terrasse
Das Einfamilienhaus bietet 3,5 Zimmer, ein Badezimmer, ein Gäste-WC und eine große Terrasse. Elektrische Außenrollläden, dreifachverglaste Fenster und Fußbodenheizung sorgen für hohen Wohnkomfort.

Für weitere Bilder, Informationen und Ausstattungsmerkmale fordern Sie bitte das Exposé an.
Für einen persönlichen, unverbindlichen Besichtigungstermin stehen wir Ihnen gern zur Verfügung.

Alle Angaben wurden nach bestem Wissen gemacht. Irrtümer und Zwischenverkauf vorbehalten. Dieses Exposé ist eine Vorinformation, als Rechtsgrundlage gilt allein der notariell abgeschlossene Kaufvertrag. Dem Verbraucher steht bei außerhalb von Geschäftsräumen geschlossenen Verträgen und bei Fernabsatzverträgen ein Widerrufsrecht gemäß § 355 BGB zu. Bitte beachten Sie unsere Widerrufsbelehrung. Diese finden Sie unter www.wohntraumfinder.com.

Grundrisse

Grundrisse
1 / 4

Realisiere Dein Projekt

Bausubstanz und Energie

Energieausweis

A+
  • Baujahr2014
  • Zustand der Immobilierenoviert / saniert
  • EnergieträgerErdwärme
Immowelt logo

Preisdetails

Kaufpreis
430000 €
3.669,57 €/m²
Provision für Käufer
3,57% inkl. 19% Ust. (=15.351,00 €) zahlbar 7 Tage nach notar. Kaufvertrag inkl. MwSt.
Weitere Preisinformationen
2 Stellplätze
2 Garagenstellplätze
Geschätzte Gesamtkosten
462.250 €1
Kaufpreis
430.000 €
Notarkosten (1,5%)
6.450 €
Grunderwerbsteuer (5,5%)
23.650 €
Grundbucheintrag (0,5%)
2.150 €
1Der angezeigte Wert ist eine automatisch berechnete Schätzung von immowelt.
2Bei den Angaben handelt es sich um ortsübliche Werte. Individuelle Kosten können abweichen.

Lage

address-icon
Limbach-Oberfrohna (09212)
Der Anbieter hat die genaue Adresse nicht freigegeben
Das hier angebotene Wohnhaus befindet sich in einer verkehrsgĂĽnstigen und gleichzeitig ruhigen Lage am Rande von Limbach-Oberfrohna, einer GroĂźen Kreisstadt im Landkreis Zwickau.
Das groĂźe gepflegte GrundstĂĽck bietet Ihnen viel Platz fĂĽr Erholung.
In nur wenigen Fahrminuten erreichen Sie Dank der guten Verkehrsanbindung die umliegenden Städte wie z.B. Chemnitz und Zwickau, sowie die Autobahnen A72 (Abfahrt Hartmannsdorf) und A4 (Abfahrt Limbach-Oberfrohna)

In der näheren Umgebung befinden sich alle Geschäfte des täglichen Bedarfs, Restaurants, und medizinische Einrichtungen sowie eine Anbindung zum öffentlichen Nahverkehr. Schulen und Kindertageseinrichtungen sind in wenigen Minuten erreichbar.

Weitere Informationen

Stichworte Gesamtfläche: 135,69 m², Anzahl der Schlafzimmer: 2, Anzahl der Badezimmer: 1, Anzahl der separaten WCs: 1, Anzahl Terrassen: 1, 2 Etagen, Distanz zum Kindergarten: 0.65, Distanz zur Grundschule: 1.04, Distanz zum Gymnasium: 1.44, Distanz zur Autobahn: 1.57

Weitere Services

Lust auf eine Besichtigung?
Eine Frage zur Immobilie?
Nachricht hinzufĂĽgen
Mit der Nutzung der oben angegebenen Telefonnummer oder durch Klicken auf „Kontaktieren“ akzeptierst Du die Allgemeinen Nutzungsbedingungen, denen Du jederzeit widersprechen kannst. Weitere Informationen zum Datenschutz

Ăśber den Anbieter

Limbacher Str. 345, 09117 Chemnitz
partner badge
Partnerschaft
Herr Gunnar Andrä
Herr Gunnar AndräDein Kontakt
Online-ID: 2nkqb5m
Referenznummer: LO_D5c_VK
Wohntraumfinder GmbH
title
Wohntraumfinder GmbH
Bewertung: 4,3 von 5 Sternen
Nachricht hinzufĂĽgen
Mit der Nutzung der oben angegebenen Telefonnummer oder durch Klicken auf „Kontaktieren“ akzeptierst Du die Allgemeinen Nutzungsbedingungen, denen Du jederzeit widersprechen kannst. Weitere Informationen zum Datenschutz
Wie zufrieden bist du mit dieser Seite (nicht mit der Immobilie selbst)?