Version: 8.25.1Navigation überspringen
1.450.000 €
16 Zimmer  •  373 m²  •  1.679 m² Grundstück
Immowelt logo

Mehrfamilienhaus zum Kauf
1450000 €
3.887 €/m²
16 Zimmer  •  373 m²  •  1.679 m² Grundstück

Mehrfamilienhaus ( 5 Wohnungen ) in Strandnähe von Wangerooge!

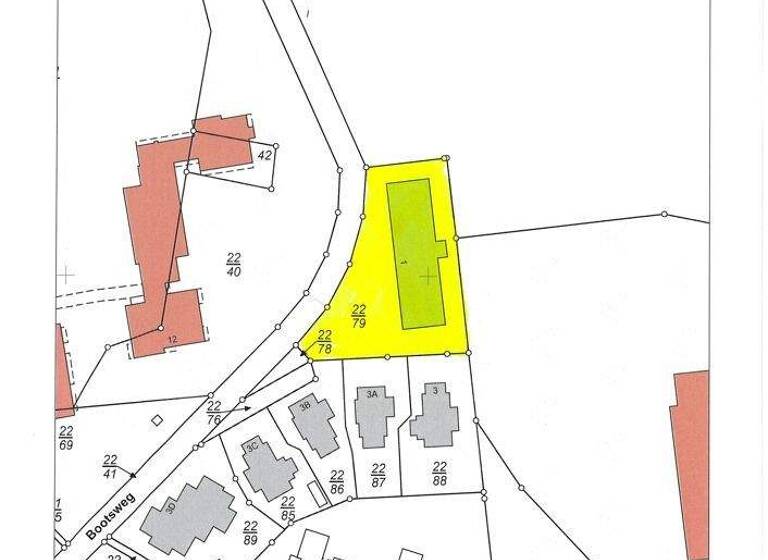
Auf der beliebten Nordseeinsel Wangerooge präsentiert sich dieses Mehrfamilienhaus als attraktive Kaufgelegenheit für Kapitalanleger und Eigennutzer mit Weitblick. Das im Jahr 1940 errichtete Haus befindet sich auf einem großzügigen Grundstück mit ca. 1.679 m² und bietet hervorragende Voraussetzungen, um Wohnen und Vermietung in einer gefragten Insellage zu realisieren.

Das angegebene Baujahr wurde von uns auf Grundlage einer gemeinsamen Schätzung mit dem Eigentümer festgelegt, da entsprechende Unterlagen, insbesondere eine Bauakte, nicht mehr vorliegen. Für die Richtigkeit und Vollständigkeit dieser Angabe wird keine Gewähr übernommen; Abweichungen können nicht ausgeschlossen werden.

Die Immobilie verfügt über eine Wohnfläche von ca. 373 m² und wird durch zusätzliche Nutzflächen (Keller) von ca. 107 m² ergänzt. Damit steht ein Flächenangebot zur Verfügung, das vielfältige Nutzungskonzepte zulässt - von dauerhaftem Wohnen bis hin zur Ferienvermietung, abhängig von der bestehenden Aufteilung und den individuellen Planungen.

Für die Wohnung III ist ein Wohnungsrecht zu berücksichtigen. Die Wohnungsberechtigte zahlt lt. der Wohnungsrechtsbestellung zusätzlich eine monatliche Kaltmiete von 440 Euro.

Das weitläufige Grundstück unterstreicht den besonderen Charakter dieser Liegenschaft und schafft wertvollen Freiraum - ein echtes Plus auf Wangerooge. Insgesamt handelt es sich um eine seltene Gelegenheit mit überzeugendem Entwicklungspotenzial in einer der begehrtesten Lagen der Nordsee zu erwerben.

Merkmale

  • 1.679 m² Grundstück
5 Wohneinheiten - 2 davon vermietet // eine Einheit ist in dem jetzigen Zustand nicht bewohnbar // 4 getrennte Gasthermen // Holzfenster - größtenteils Isolierverglasung // großer Kellerbereich


Wohnung 1 - EG: Flurbereich // Küche // Kinderzimmer // Wohnzimmer // Schlafzimmer mit Grundstückszugang // Bad mit WC, Dusche und Becken

Wohnung 2 - EG: Flurbereich // Küche // Bad mit WC, Dusche, Becken // Schlafzimmer // Abstellraum // Schlafzimmer // Wohnzimmer

Wohnung 3 - EG: Flurbereich // Wohnzimmer // Schlafzimmer // Schlafzimmer // Bad mit Wanne, WC und Becken // Küche mit Ofenanschluss und Grundstückszugang // Bad mit WC und Dusche

Wohnung 4 - EG: Flurbereich // Schlafzimmer // Schlafzimmer // Bad mit WC, Wanne, Becken // Schlafzimmer // Kochnische

Wohnung 5 - EG (unbewohnbar, stark sanierungsbedürftig: Flurbereich // Wohnzimmer // Schlafzimmer // Flur // Küche // Bad // Bad // WC // Schlafzimmer // Zimmer // Zimmer

Grundrisse

Grundrisse
1 / 6

Realisiere Dein Projekt

Bausubstanz und Energie

Möchtest du Details zum Energieverbrauch?info_energy_calculation-icon
  • Baujahr1940
  • HeizungsartZentralheizung
  • EnergieträgerGas
Immowelt logo

Preisdetails

Kaufpreis
1450000 €
3.887,40 €/m²
Provision für Käufer
Die anteilige Käuferprovision beträgt 3,57 % incl. Mehrwertsteuer.
Geschätzte Gesamtkosten
1.603.265 €1
Kaufpreis
1.450.000 €
Notarkosten (1,5%)
21.750 €
Grunderwerbsteuer (5%)
72.500 €
Provision für Käufer (3,57%)
51.765 €
Grundbucheintrag (0,5%)
7.250 €
1Der angezeigte Wert ist eine automatisch berechnete Schätzung von immowelt.
2Bei den Angaben handelt es sich um ortsübliche Werte. Individuelle Kosten können abweichen.

Lage

address-icon
Wangerooge (26486)
Der Anbieter hat die genaue Adresse nicht freigegeben
Wangerooge ist eine kleine deutsche Nordseeinsel und gehört zu den Ostfriesischen Inseln. Sie liegt vor der Küste des Bundeslandes Niedersachsen und ist die östlichste Insel dieser Inselgruppe. Besonders bekannt ist Wangerooge für seine ruhige Atmosphäre, die schöne Natur und den langen Sandstrand. Viele Menschen besuchen die Insel, um sich zu erholen, spazieren zu gehen oder das Meer zu genießen.
Die Insel liegt im Wattenmeer, einem einzigartigen Naturraum, der zum UNESCO-Weltnaturerbe gehört. Rund um Wangerooge gibt es große Wattflächen, Dünenlandschaften und Salzwiesen. Diese Gebiete sind wichtige Lebensräume für viele Tiere, zum Beispiel für Seevögel, Robben und verschiedene Fischarten.

Der breite Sandstrand der Insel ist mehrere Kilometer lang und lädt zum Baden, Sonnen oder zu langen Spaziergängen ein. Durch die frische Nordseeluft gilt Wangerooge auch als Nordseeheilbad, da das Klima gesund für Atemwege und Erholung ist.

Auf Wangerooge gibt es keine privaten Autos. Besucher kommen mit der Fähre oder dem Flugzeug an. Vom Hafen fährt eine kleine Bahn, die Inselbahn, bis ins Dorf. Dadurch bleibt die Insel besonders ruhig und umweltfreundlich.

Weitere Informationen

Stichworte Nutzfläche: 107,00 m², Anzahl der Schlafzimmer: 13, Anzahl der Badezimmer: 7

Weitere Services

Lust auf eine Besichtigung?
Eine Frage zur Immobilie?
Nachricht hinzufügen
Mit der Nutzung der oben angegebenen Telefonnummer oder durch Klicken auf „Kontaktieren“ akzeptierst Du die Allgemeinen Nutzungsbedingungen, denen Du jederzeit widersprechen kannst. Weitere Informationen zum Datenschutz

Über den Anbieter

Untenende 40, 26817 Rhauderfehn
partner badge
3 Jahre Partnerschaft
Frau Silke Düring
Frau Silke DüringDein Kontakt
Online-ID: 26VJCA8DERJ8
Referenznummer: 3895
Jörg Düring Immobilien
title
Jörg Düring Immobilien
Bewertung: 4,3 von 5 Sternen
Nachricht hinzufügen
Mit der Nutzung der oben angegebenen Telefonnummer oder durch Klicken auf „Kontaktieren“ akzeptierst Du die Allgemeinen Nutzungsbedingungen, denen Du jederzeit widersprechen kannst. Weitere Informationen zum Datenschutz
Wie zufrieden bist du mit dieser Seite (nicht mit der Immobilie selbst)?