Charmantes Blockhaus mit Kamin - gemütlich, einladend und vielseitig nutzbar
Dieses charmante Einfamilienhaus in Blockhausbauweise bietet ein einzigartiges Wohnambiente auf einer Wohnfläche von ca. 120 m² und steht auf einem großzügigen Grundstück von insgesamt 1.648 m². Die massive Blockhauskonstruktion verleiht dem Gebäude eine warme, naturnahe Ausstrahlung und sorgt zugleich für ein behagliches Raumklima.
Im Erdgeschoss liegt der offene Wohn- und Essbereich, in dem der Speckstein Speicherofen für eine angenehme und gemütliche Atmosphäre sorgt. Eine Küche sowie ein Arbeitszimmer schließen sich praktisch an und ergänzen das Raumangebot auf dieser Etage. Durch den Glasfaseranschluss bietet das Arbeitszimmer auch einen perfekten Platz um aus dem Homeoffice zu arbeiten. Zusätzlich stehen ein Hauswirtschafts- sowie Abstellraum/Speisekammer zur Verfügung, die im Alltag für den nötigen Stauraum sorgen.
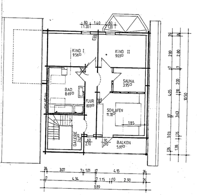
Im Dachgeschoss liegen drei gut geschnittene Schlafräume sowie das großzügige Badezimmer. Dieses ist mit einer Badewanne inklusive Duschvorrichtung ausgestattet und wird durch ein Tageslichtfenster angenehm hell. Dank ihrer flexiblen Aufteilung können die Räume als Schlaf- oder Gästezimmer genutzt werden.
Zur Ausstattung des Hauses gehören eine vollbiologische Kläranlage aus dem Jahr 2010. Im Jahr 2022 wurde eine Schornsteinsanierung durchgeführt. Zudem wurden Malerarbeiten an den Holzflächen vorgenommen, sodass sich das gesamte Objekt in einem gepflegten Zustand präsentiert.
Der weitläufige Garten bietet viel Raum für Erholung und individuelle Gestaltungsideen. Hier finden Kinder Platz zum Spielen und Erwachsene einen Ort zum Entspannen. Ein Pool ergänzt den Außenbereich zusätzlich und sorgt an warmen Tagen für eine willkommene Abkühlung.
Im Außenbereich stehen ein Carport sowie zwei zusätzliche Außenstellplätze zur Verfügung und bieten ausreichend Platz für mehrere Fahrzeuge.
Dieses Einfamilienhaus überzeugt durch seine solide Bauweise, die naturnahe Wohnatmosphäre und das großzügige Platzangebot - ideal für alle, die naturnah wohnen und dabei nicht auf Komfort verzichten möchten.
Merkmale
1.648 m² Grundstück
Einbauküche
3 Stellplätze: 3 Carports
Balkon
Garten
Badezimmer: Badewanne, Bad mit Fenster
Bodenbelag: Fliesen, Holzdielen
offener Kamin
Grundrisse
Grundrisse
1 / 2
Realisiere Dein Projekt
Bausubstanz und Energie
Energieausweis
Der Anbieter hat keine Daten zum Energieausweis hinterlegt.
Baujahr1995
Zustand der ImmobilieGepflegt
EnergieträgerElektro
Preisdetails
Kaufpreis
349000 €349.000 €
2.908,33 €/m²
Provision für Käufer
3,57 % Provision inkl. der gesetzlichen MwSt.
Weitere Preisinformationen
3 Carportplätze
Geschätzte Gesamtkosten
387.634 €1
Kaufpreis
349.000 €
Kaufnebenkosten
38.634 €
2
Notarkosten (1,5%)
5.235 €
Grunderwerbsteuer (5,5%)
19.195 €
Provision für Käufer (3,57%)
12.459 €
Grundbucheintrag (0,5%)
1.745 €
1Der angezeigte Wert ist eine automatisch berechnete Schätzung von immowelt.
2Bei den Angaben handelt es sich um ortsübliche Werte. Individuelle Kosten können abweichen.
Lage
Colmnitz, Klingenberg (01774)
Der Anbieter hat die genaue Adresse nicht freigegeben
Das Einfamilienhaus befindet sich in Colmnitz, einem idyllischen Ortsteil von Klingenberg im Landkreis Sächsische Schweiz-Osterzgebirge. Die Umgebung besticht durch ihre naturnahe und ruhige Lage inmitten sanfter Hügel und waldreicher Landschaften. Direkt vor der Haustür laden Spazier- und Wanderwege zu Erholung und Freizeitaktivitäten im Grünen ein.
Colmnitz überzeugt zugleich durch seine gute Anbindung: Der Bahnhof Klingenberg-Colmnitz verbindet den Ort mit der regionalen Infrastruktur und die Landstraßen sorgen für eine schnelle Erreichbarkeit der umliegenden Städte und Einkaufsmöglichkeiten.
Die Lage bietet eine perfekte Kombination aus ländlicher Idylle und praktischer Erreichbarkeit. Schulen, Kindergärten und Nahversorgungsmöglichkeiten befinden sich in wenigen Autominuten in Klingenberg und Umgebung. Gleichzeitig profitieren Sie von der Nähe zum Tharandter Wald, der vielseitige Freizeitmöglichkeiten wie Wandern, Radfahren und Naturerlebnisse bietet.
Dieses Umfeld macht Colmnitz zu einem besonders attraktiven Standort für alle, die naturnah wohnen und dennoch eine gute Infrastruktur in Reichweite haben.
Weitere Informationen
Sonstiges
Rechtlicher Hinweis:
Sämtliche Objektangaben basieren auf den uns erteilten Informationen des Verkäufers. Sie wurden gewissenhaft wiedergegeben. Eine Gewähr für ihre Richtigkeit kann jedoch nicht übernommen werden. Der Empfänger kann sich nur darauf berufen, von diesem Angebot bereits vorher Kenntnis gehabt zu haben, wenn er dies nach erfolgter Exposézusendung innerhalb von 3 Tagen und ausschließlich schriftlich dem Objektanbieter mitteilt. Die Bekanntgabe der Objektadresse/von Objektdaten geschieht unter ausdrücklichem Hinweis auf unseren Provisionsanspruch im Falle des Ankaufs.
Die Käuferprovision beträgt 3,57% vom wirtschaftlichen Kaufpreis inkl. der gesetzlichen MwSt.
Wir weisen darauf hin, dass wir sowohl für den Käufer als auch für den Verkäufer tätig werden können und dafür von beiden Parteien eine Provision verlangen.
Eine Weitergabe an Dritte ist an unsere ausschließlich schriftliche Zustimmung gebunden und unterbindet nicht unseren Provisionsanspruch bei Zustandekommen eines Hauptvertrages. Alle Gespräche sind über unser Büro zu führen. Bei Zuwiderhandlung behalten wir uns Schadenersatz bis zur Höhe der Provisionsansprüche ausdrücklich vor.
Die Grundrisse sind zur Maßentnahme nicht geeignet.
Zwischenverkauf sowie Irrtum bleiben vorbehalten.
Stichworte
Carport vorhanden, Stellplatz vorhanden, Anzahl der Schlafzimmer: 4, Anzahl der Badezimmer: 1, Anzahl Balkone: 1, Balkon-Terrassen-Fläche: 5,00 m², Bundesland: Sachsen, 2 Etagen, modernisiert: 2010