Version: 8.25.1Navigation überspringen
5.313 €
12 Zimmer  •  483 m² Bürofläche
Immowelt logo

Bürofläche zur Miete • provisionsfrei
5.313 €
12 Zimmer  •  483 m² Bürofläche

In Büro- oder Praxisgemeinschaft: Gepflegte Fläche in zentraler Lage ***PROVISIONSFREI***

Kurzbeschreibung in Büro- oder Praxisgemeinschaft nutzbar / tolle Räumlichkeiten / vielseitig nutzbar / Aufzug / Alarmanlage Objekt Die Gesamtfläche der noch verfügbaren Büro- und Praxisflächen beläuft sich auf 483 m². Diese lässt sich hervorragend auch als Büro- oder Praxisgemeinschaft nutzen. Sie teiel sich den Eingangsbereich sowie die Sanitäranlagen mit einem Kollegen oder Sozius uns haben gleichzeitig den Vorteil, dass Sie Ihren Betrieb in den eigenen Räumlichkeiten führen können.
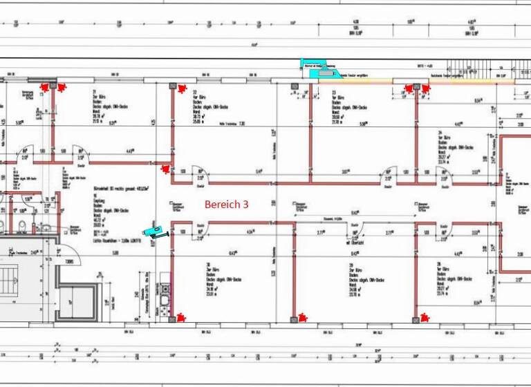
Der beigefügte Grundriss stellt die aktuelle Aufteilung dar. Bei konkretem Mietinteresse kann die Raumaufteilung ggf. angepasst werden.
Über den Eingangsbereich erreichen Sie die offene Küche sowie den Flur, von dem alle 14 Räumlichkeiten abgehen. Hierin enthalten sind zwei separate WC- Anlagen und ein Serverraum. Die restlichen Räume können als Büro- oder auch als Praxisräume genutzt werden. Sie sind klimatisiert, modern und repräsentativ.

Merkmale

  • Bezug: sofort
  • Personenaufzug
  • Bodenbelag: Fliesen, Teppich
Ausstattung:
+ Ausreichend PKW-Stellplätze direkt vor dem Gebäude
+ Aufzug
+ Gepflegte Räumlichkeiten
+ Provisionsfrei für den Mieter
+ Klimaanlage
+ Alarmanlage
+ repräsentative Einbauküche
+ Wärmeversorgung über zentrale Luft-Wasser-Wärmepumpenanlage, Abdeckung der Leistungsspitzen durch zugeschaltete Gas-Brennwertheizung
+ Beheizung über thermostatgesteuerte Fußbodenheizung
+ Lüftungsanlagen für alle innenliegenden Räume nach DIN, Arbeitsstättenverordnung und den neusten Regeln der Technik
+ Bodenbelag: Teppichboden
+ Innenwände weiß
+ Rasterakustikabhangdecke
+ Netzwerkverkabelung

Grundrisse

Grundrisse
1 / 1

Realisiere Dein Projekt

Bausubstanz und Energie

Möchtest du Details zum Energieverbrauch?info_energy_calculation-icon
  • Baujahr2014
  • HeizungsartFußbodenheizung
  • EnergieträgerGas, Erdwärme
Immowelt logo

Mietkosten

Warmmiete
7.245 €
Nettomiete
5.313 €
Nebenkosten
1.932 €
Heizkosten
in Warmmiete enthalten
Provision für Mieter
provisionsfrei
Kaution
keine Angabe

Lage

address-icon
OberdollendorfKönigswinter (53639)
Der Anbieter hat die genaue Adresse nicht freigegeben
Gewerbegebiet Im Mühlenbruch in Königswinter - Oberdollendorf.
Unmittelbar an der Ortsgrenze zu Bonn-Oberkassel, direkte Autobahnanbindung zur B42. Öffentliche Verkehrsmittel sind fußläufig erreichbar.
Neben einer Tankstelle, einem Baumarkt und diverser Einzelhandelsflächen gibt es in diesem Gewerbegebiet moderne Büro- und Ärztehäuser.

Weitere Informationen

Sonstiges Die monatliche Betriebskostenvorauszahlung beträgt inkl. Heizkosten 4,- pro m².
Kostenübersicht Büros: Nettokaltmiete: 11,- / m² + Betriebskostenvorauszahlung inkl. Heizkosten: 4,- / m² = Zwischensumme: 15,- / m² + Mehrwertsteuer: 2,85 / m² = Bruttowarmmiete inkl. MwSt. 17,85 / m².
Die Höhe der Kaution ist von Fall zu Fall mit dem Eigentümer abzustimmen. Bezüglich der Form der Kaution (z. B. Bankbürgschaft) bitten wir um Rücksprache. Stichworte Nutzfläche: 483,00 m², Gesamtfläche: 483,00 m², Bundesland: Nordrhein-Westfalen Sonstiges: EDV-Verkabelung

Weitere Services

Lust auf eine Besichtigung?
Eine Frage zur Immobilie?
Mit einer persönlichen Nachricht hast du bessere Chancen auf eine Antwort.
Mit der Nutzung der oben angegebenen Telefonnummer oder durch Klicken auf „Kontaktieren“ akzeptierst Du die Allgemeinen Nutzungsbedingungen, denen Du jederzeit widersprechen kannst. Weitere Informationen zum Datenschutz

Über den Anbieter

Herresbacher Str. 7, 53639 Königswinter
Frau Marie-Sophie PapeDein Kontakt
Online-ID: 24EVY4JVMJNU
Referenznummer: VDNS484
DOERING-IMMOBILIEN
DOERING-IMMOBILIEN
Bewertung: 4,7 von 5 Sternen
Mit einer persönlichen Nachricht hast du bessere Chancen auf eine Antwort.
Mit der Nutzung der oben angegebenen Telefonnummer oder durch Klicken auf „Kontaktieren“ akzeptierst Du die Allgemeinen Nutzungsbedingungen, denen Du jederzeit widersprechen kannst. Weitere Informationen zum Datenschutz
Wie zufrieden bist du mit dieser Seite (nicht mit der Immobilie selbst)?