Verkaufsfläche zur MieteMietkosten auf Anfrageteilbar ab 500 m²
Mietkosten auf Anfrage
teilbar ab 500 m²
Moderne Einzelhandelsfläche in Aachens Einfahrtstor zu vermieten
Merkmale
- frei ab sofort
- Personenaufzug
- Kein Keller
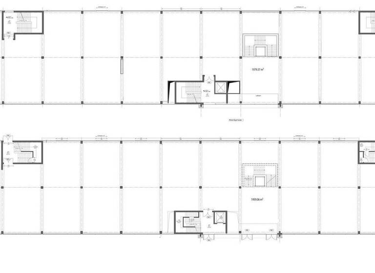
Grundrisse
Grundrisse
1 / 1
Bausubstanz und Energie
- Baujahr2013
- Zustand der ImmobilieGepflegt
Mietkosten
Miete auf Anfrage
Provision für Mieter
Bitte beachte, das Angebot kann bei Vertragsabschluss die Zahlung einer Provision beinhalten. Weitere Informationen erhältst Du vom Anbieter.
Kaution
keine Angabe
Lage

Gut-Dämme-Straße 8, Aachen (52070)
Weitere Informationen
Weitere Services
Lust auf eine Besichtigung?
Eine Frage zur Immobilie?
Über den Anbieter
Aachener- und Münchener-Alle 9, 52074 Aachen
Herr Felix TerborgDein Kontakt
Weitere Unterlagen
Online-ID: 26K38J8EG92D
Referenznummer: 15_1
Wie zufrieden bist du mit dieser Seite (nicht mit der Immobilie selbst)?
