

Mehrfamilienhaus zum Kauf800000 €2.462 €/m²19 Zimmer • 325 m² • 967 m² Grundstück
800000 €
2.462 €/m²
19 Zimmer • 325 m² • 967 m² Grundstück
Zentral gelegenes Großgrundstück mit Altbestand - ideal für Bauträger, Sanierer oder Investoren!
Merkmale
- vermietet
- 967 m² Grundstück
- 12 Stellplätze: 12 Außen-Stellplätze
- Balkon
- Terrasse
- Bodenbelag: Laminat, Teppich
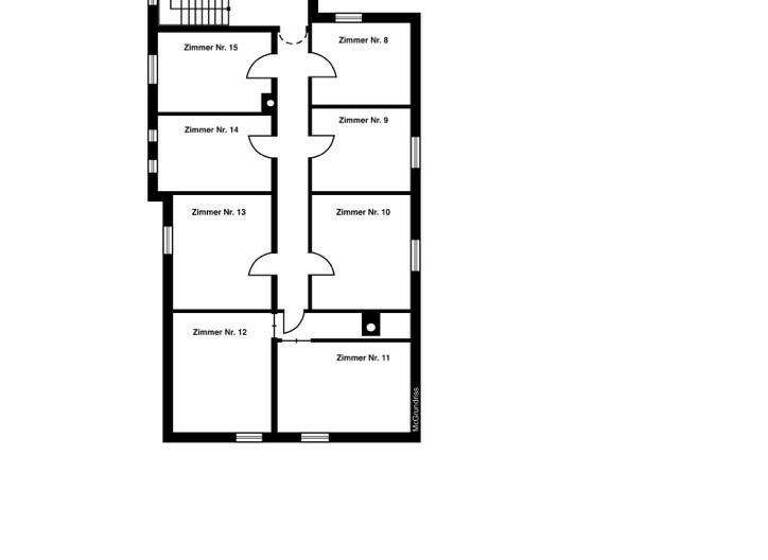
Grundrisse
Grundrisse
1 / 1
Realisiere Dein Projekt
Bausubstanz und Energie
Möchtest du Details zum Energieverbrauch?

- Baujahr1960
- Zustand der Immobilierenovierungsbedürftig / sanierungsbedürftig
Preisdetails
Kaufpreis
800000 €
2.461,54 €/m²
Provision für Käufer
3,57 % Käuferprovision inkl. 19 % MwSt. Die Provision errechnet sich aus dem Kaufpreis. Weitere Informationen siehe Provisionshinweis.
Weitere Preisinformationen
12 Stellplätze
Geschätzte Gesamtkosten
872.560 €1
Kaufpreis
800.000 €
Kaufnebenkosten
72.560 €
2Notarkosten (1,5%)
12.000 €
Grunderwerbsteuer (3,5%)
28.000 €
Provision für Käufer (3,57%)
28.560 €
Grundbucheintrag (0,5%)
4.000 €
1Der angezeigte Wert ist eine automatisch berechnete Schätzung von immowelt.
2Bei den Angaben handelt es sich um ortsübliche Werte. Individuelle Kosten können abweichen.
Lage

Staudach, Staudach-Egerndach (83224)
Der Anbieter hat die genaue Adresse nicht freigegeben
Weitere Informationen
Weitere Services
Lust auf eine Besichtigung?
Eine Frage zur Immobilie?
Über den Anbieter
IAD Immobilien Agentur Deutschland GmbHMaklerbüro
Untere Bühlstraße 5, 91338 Igensdorf
Frau Beatriz DanielDein Kontakt
Online-ID: 26REU79ESW14
Referenznummer: TS-ED4021/15

IAD Immobilien Agentur Deutschland GmbH
Wie zufrieden bist du mit dieser Seite (nicht mit der Immobilie selbst)?