Dieses moderne Bürogebäude beeindruckt durch seine markante Glasfassade und großzügige Architektur. Der Eingangsbereich ist offen und lichtdurchflutet gestaltet, mit stilvollen Wandakzenten und einem hochwertigen Bodenbelag. Große Glasfronten sorgen nicht nur für ein repräsentatives Erscheinungsbild, sondern lassen auch viel Tageslicht in das Gebäudeinnere. Die Mieteinheiten bieten bodentiefe Fenster und hohe Decken, was ein offenes und angenehmes Raumgefühl schafft. Der Innenausbau kann flexibel nach Mieterwunsch realisiert werden, um individuellen Anforderungen gerecht zu werden. Ein leistungsfähiger Glasfaseranschluss ist vorhanden und garantiert eine schnelle Internetverbindung - ideal für moderne Arbeitsplätze. Auch die sanitären Einrichtungen präsentieren sich in einem sehr gepflegten Zustand mit zeitgemäßer Ausstattung und klarer Linienführung. Das gesamte Objekt eignet sich ideal für Unternehmen, die Wert auf eine hochwertige Arbeitsumgebung und eine repräsentative Adresse legen.
Merkmale
Bezug: nach Vereinbarung
Personenaufzug
Speisekammer
Bodenbelag: Kunststoff, Teppich
kontrollierte Be- und Entlüftungsanlage
voll klimatisiert
Empfang
Digitales Türschloss / Kartenzugangskontrolle
. Glasfaseranschluss . Ausbau nach Mieterwunsch . bodentiefe Fenster . hohe Decken . Behinderten-WC
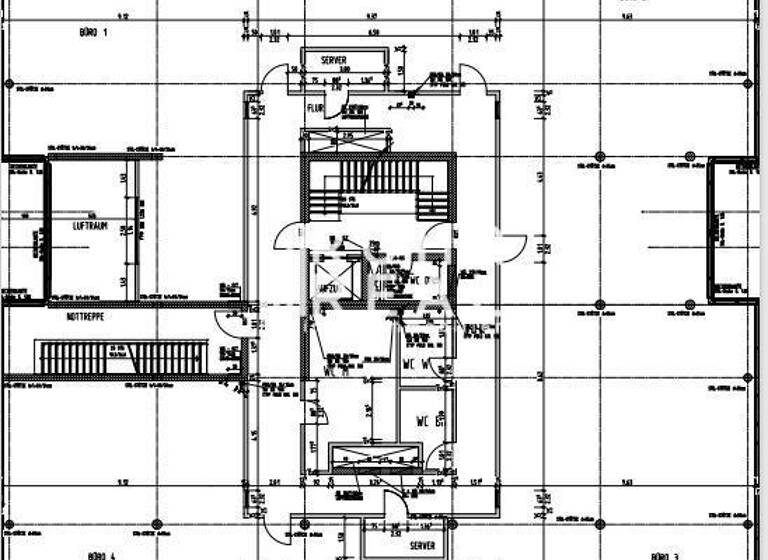
Grundrisse
Grundrisse
1 / 1
Bausubstanz und Energie
Möchtest du Details zum Energieverbrauch?
Zustand der Immobilieneuwertig
Mietkosten
Warmmiete
17,50 €
Nettomiete
14,50 €/m²
14,50 €
Nebenkosten
3 €
Zusätzliche Kosten
Heizkosten
Provision für Mieter
3-4 Nettomonatsmieten Bei Verträgen bis zu fünf Jahren Laufzeit ist ein Honorar von 3 Nettomonatsmieten vom Mieter an RUHR REAL zahlbar; bei Laufzeiten bis zu zehn Jahren werden 4 Nettomonatsmieten fällig. Hinzu kommt die jeweils gültige Umsatzsteuer.
Kaution
keine Angabe
Weitere Preisinformationen
Nettokaltmiete: 14,50 EUR
Lage
Bocklemünd/Mengenich, Köln (50829)
Der Anbieter hat die genaue Adresse nicht freigegeben
Die angebotene Liegenschaft befindet sich in einer erstklassigen Lage im westlichen Teil von Köln, im etablierten Gewerbegebiet des Stadtteils Ossendorf. Das moderne Logistikzentrum zeichnet sich durch eine hervorragende Anbindung an das überregionale Verkehrsnetz aus. Die nahegelegenen Autobahnen A1 und A57 ermöglichen eine schnelle Erreichbarkeit wichtiger Wirtschaftszentren in der Region. Auch der Flughafen Köln/Bonn ist innerhalb kurzer Zeit erreichbar. Der Standort ist optimal an den öffentlichen Nahverkehr angebunden - Bus- und S-Bahn-Haltestellen befinden sich in fußläufiger Entfernung. Eine Vielzahl an Restaurants, Supermärkten und weiteren Einrichtungen des täglichen Bedarfs in der Umgebung gewährleisten eine ausgezeichnete Nahversorgung.
Weitere Informationen
Sonstiges
Es gelten ausschließlich unsere AGB (www.ruhr-real.de/agb). Wir möchten Sie darauf hinweisen, dass die Angaben ausschließlich auf den uns vom Eigentümer übermittelten Unterlagen und Informationen basieren. Für Richtigkeit und Vollständigkeit übernehmen wir keine Gewähr. Zwischenvermietung vorbehalten.
Stichworte
Sonstiges: EDV-Verkabelung