Version: 8.24.0Navigation überspringen
ohne-makler.net - Immobilien selbst vermarkten
739.000 €
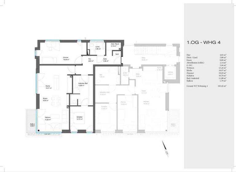
3 Zimmer  •  100,4 m²  •  1. Geschoss

Wohnung zum Kauf • provisionsfrei
739000 €
7.361 €/m²
3 Zimmer  •  100,4 m²  •  1. Geschoss

Provisionsfrei - Moderne 3-Zimmer-ETW mit Aufzug, Balkon und Tiefgarage in Hamburg-Niendorf

Diese stilvolle und nahezu neuwertige 3-Zimmer-Eigentumswohnung in ruhiger Lage von Hamburg-Niendorf bietet modernen Wohnkomfort, hochwertige Ausstattung und ein besonders angenehmes Wohnambiente. Die rund 100 m² große Wohnung befindet sich im 1. Obergeschoss eines gepflegten Mehrfamilienhauses aus dem Jahr 2016 mit nur fünf Wohneinheiten und ist bequem per Aufzug direkt von der Tiefgarage erreichbar.

Der großzügige, rund 40 m² große Wohn- und Essbereich mit bodentiefen Fenstern, edlen Eichendielen und Zugang zum sonnigen Westbalkon bildet das Herzstück der Wohnung. Elektrische Außenjalousien, Smart-Home-Steuerung sowie eine fest installierte Klimaanlage sorgen zu jeder Jahreszeit für ein angenehmes Raumklima.

Zwei stilvolle Badezimmer, eine hochwertige Einbauküche, durchdachte Einbauten und die Fußbodenheizung in allen Räumen unterstreichen den gehobenen Wohnkomfort. Die Wohnung wurde 2023 umfassend renoviert und präsentiert sich in einem Zustand, der einen Einzug ohne weitere Arbeiten ermöglicht.

Ein Tiefgaragenstellplatz, ein großzügiger Kellerraum sowie die ruhige Lage in einer verkehrsberuhigten Spielstraße runden dieses attraktive Angebot ab.

Merkmale

  • Bezug: nach Absprache
  • 1. Geschoss
  • Einbauküche
  • Personenaufzug
  • Kelleranteil
  • Tiefgarage
  • Balkon
  • Garten

Grundrisse

Grundrisse
1 / 1

Realisiere Dein Projekt

Bausubstanz und Energie

Energieausweis

B
  • Baujahr2016
  • Zustand der Immobilieneuwertig
  • HeizungsartFußbodenheizung
  • EnergieträgerGas
MediumRectangleTop

Preisdetails

Kaufpreis
739000 €
7.360,56 €/m²
Hausgeld
670 €
Provision für Käufer
provisionsfrei; keine Provision, courtagefrei
Weitere Preisinformationen
1 Tiefgaragenstellplatz
Geschätzte Gesamtkosten
794.425 €1
Kaufpreis
739.000 €
Notarkosten (1,5%)
11.085 €
Grunderwerbsteuer (5,5%)
40.645 €
Grundbucheintrag (0,5%)
3.695 €
1Der angezeigte Wert ist eine automatisch berechnete Schätzung von immowelt.
2Bei den Angaben handelt es sich um ortsübliche Werte. Individuelle Kosten können abweichen.

Lage

address-icon
NiendorfHamburg (22459)
Der Anbieter hat die genaue Adresse nicht freigegeben
Die Wohnung liegt in einer ruhigen Anwohnerstraße (Spielstraße) im beliebten Stadtteil Hamburg-Niendorf.

Einkaufsmöglichkeiten, Ärzte, Apotheken und Restaurants sind bequem erreichbar. Die U-Bahn-Station Schippelsweg (U2) befindet sich nur wenige Gehminuten entfernt und bietet eine direkte Verbindung in die Hamburger Innenstadt (ca. 22 Minuten).

Das nahegelegene Niendorfer Gehege sowie die Naturschutz- und Naherholungsgebiete Ohmoor und Rahwegpark bieten zahlreiche Möglichkeiten zur Erholung und Freizeitgestaltung.
Infrastruktur (im Umkreis von 5 km):
Apotheke, Lebensmittel-Discount, Allgemeinmediziner, Kindergarten, Grundschule, Realschule, Gymnasium, Öffentliche Verkehrsmittel

Weitere Informationen

Sonstiges Heizungsart: Fußbodenheizung
Energieträger: Gas

Provisionsfrei - Verkauf direkt vom Eigentümer.

Die Übergabe der Wohnung erfolgt nach Absprache.

Makleranfragen nicht erwünscht. Nach § 7 UWG sind unaufgeforderte Kontaktaufnahmen durch Makler ohne ausdrückliche Einwilligung des Empfängers verboten!

ohne-makler (OM) ist weder Anbieter noch Vermittler der Immobilie. OM betreibt eine Plattform für Immobilieneigentümer, die unter anderem die gleichzeitige Veröffentlichung einzelner Inserate auf mehreren Immobilienportalen ermöglicht. Die Inhalte dieser Inserate werden ausschließlich von Dritten verantwortet. Für die Richtigkeit, Vollständigkeit oder Rechtmäßigkeit der Angaben übernimmt OM keine Haftung. Hinweise auf mögliche Rechtsverstöße können jederzeit gemeldet werden und werden nach Prüfung umgehend bearbeitet. Stichworte Anzahl der Schlafzimmer: 1, Anzahl der Badezimmer: 2, Anzahl Balkone: 1, Bundesland: Hamburg, 1 Etagen

Weitere Services

Lust auf eine Besichtigung?
Eine Frage zur Immobilie?
Nachricht hinzufügen
Mit der Nutzung der oben angegebenen Telefonnummer oder durch Klicken auf „Kontaktieren“ akzeptierst Du die Allgemeinen Nutzungsbedingungen, denen Du jederzeit widersprechen kannst. Weitere Informationen zum Datenschutz

Über den Anbieter

Humboldtstr. 25 A, 21509 Glinde
partner badge
Partnerschaft
Privat vom EigentümerDein Kontakt
Keine Telefonnummer hinterlegt
Keine Telefonnummer hinterlegt

Weitere Unterlagen

Online-ID: 2nmrn5p
Referenznummer: 432635
ohne-makler.net - Immobilien selbst vermarkten
ohne-makler.net - Immobilien selbst vermarkten
Nachricht hinzufügen
Mit der Nutzung der oben angegebenen Telefonnummer oder durch Klicken auf „Kontaktieren“ akzeptierst Du die Allgemeinen Nutzungsbedingungen, denen Du jederzeit widersprechen kannst. Weitere Informationen zum Datenschutz
MediumRectangleTop
MediumRectangleBottom
MediumRectangleTop
Wie zufrieden bist du mit dieser Seite (nicht mit der Immobilie selbst)?