Wohnung 135m2 zum Kauf - Zadar, Petrcane - Kozino
Wir bieten Neubauten im begehrten Vorort Zadar, nur 70 Meter vom Strand entfernt. Die Wohnung befindet sich im Erdgeschoss eines wunderschönen Gebäudes mit modernem Design und bietet eine außergewöhnliche Gelegenheit für ein luxuriöses und komfortables Leben. Dieses elegante Gebäude besteht aus drei Apartments, die sich über drei Etagen verteilen, und jedes Detail wurde sorgfältig entworfen, um den hohen Standards des modernen Wohnens gerecht zu werden.
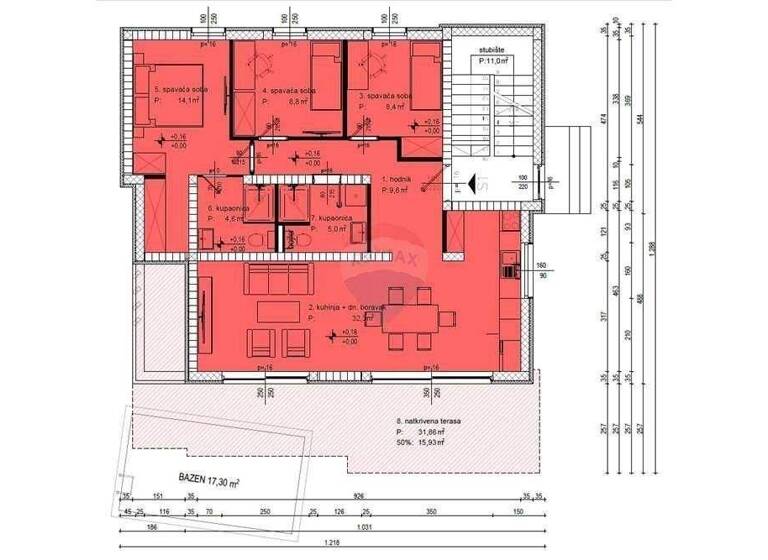
Beim Betreten der Wohnung werden Sie von einem geräumigen und hellen Innenraum begrüßt, der Eleganz ausstrahlt. Das 11,9 m große Hauptschlafzimmer ist mit einem eigenen Kleiderschrank und einem privaten Badezimmer von 4,6 m ausgestattet. Diese private Oase bietet außergewöhnlichen Komfort und Intimität. Neben dem Hauptschlafzimmer bietet die Wohnung zwei weitere komfortable Schlafzimmer mit 8,8 m und 8,4 m, ideal für Familie oder Gäste, und ein zusätzliches Badezimmer mit 5,0 m, ausgestattet mit modernen Sanitärgeräten.
Den zentralen Teil der Wohnung bildet ein großzügiger offener Raum, der Küche, Esszimmer und Wohnzimmer mit einer Gesamtfläche von 32,30 m vereint. Dieser Raum ist für gesellige Zusammenkünfte und Familienmomente konzipiert und bietet eine ideale Umgebung zum gemeinsamen Kochen, Essen und Entspannen. Das Wohnzimmer öffnet sich zu einer überdachten Terrasse von 31,86 m, die zu jeder Jahreszeit perfekt ist, um die frische Luft zu genießen.
Eine Besonderheit dieser Wohnung ist der großzügige Garten von 105,71 m, zu dem ein Swimmingpool vor der Terrasse von 17,28 m gehört. Dieser Außenbereich bietet hervorragende Möglichkeiten zur Entspannung, Erholung und zum geselligen Beisammensein im Freien und vermittelt ein Gefühl von Privatsphäre und Luxus.
Zur Wohnung gehören außerdem ein Abstellraum im Keller des Gebäudes mit einer Fläche von 6,89 m und zwei Außenparkplätze, was für zusätzliche Zweckmäßigkeit und Komfort sorgt.
Das moderne Gebäude, in dem sich die Wohnung befindet, wurde unter Verwendung hochwertiger Materialien namhafter Hersteller gebaut, was die Sicherheit und Langlebigkeit der Immobilie garantiert. Die Wohnung verfügt über eine hochwertige Ausstattung, darunter eine Thermofassade, Fußbodenheizung in allen Räumen, Klimaanlagen in allen Räumen sowie hochwertige Außenschreinereiarbeiten mit Dreifachverglasung, elektrisch betriebenen Jalousien und Moskitonetzen. Diese Eigenschaften sorgen für maximale Energieeffizienz und Wohnkomfort.
Die Wohnung im Erdgeschoss ist ein ideales Zuhause für diejenigen, die Luxus, Komfort und einen modernen Lebensstil suchen. Jedes Zimmer der Wohnung ist mit Liebe zum Detail und Funktionalität gestaltet, was diese Wohnung zu einem echten Juwel auf dem Immobilienmarkt macht.
Die Wohnung im Erdgeschoss befindet sich in der Siedlung Kozino, die zur Stadt Zadar in der Gespanschaft Zadar gehört. Kozino ist für seine friedliche und malerische Umgebung bekannt, was es zu einem idealen Ort für das Familienleben oder für diejenigen macht, die einen ruhigen Rückzugsort vom Trubel des Stadtlebens suchen. Die Nähe zu Zadar bietet einfachen Zugang zu allen notwendigen Einrichtungen, einschließlich Geschäften, Restaurants, Schulen und kulturellen Attraktionen.
Dokumentation und Eigentumsverhältnisse in Ordnung.
Besichtigung nach vorheriger Absprache möglich.
Alle weiteren Informationen auf Anfrage.
ID CODE: 300501008-3381
RE/MAX Complete
Mob: 0981642222
Tel: 023/299-096
E-mail: complete1@remax.hr
https://www.remax.hr/Complete1