Version: 8.22.4Navigation ĂĽberspringen
18,40 €
272,6 m² Bürofläche
Immowelt logo

Bürofläche zur Miete
18,40 Euro pro Quadratmeter
272,6 m² Bürofläche

Stilvolles AltbaubĂĽro im 8. Bezirk

Dieses hochwertig sanierte BĂĽro befindet sich in ausgezeichneter Lage des 8. Bezirks, nur wenige Gehminuten vom Wiener Ring entfernt. Die Kombination aus klassischer Architektur und moderner Ausstattung bietet ein attraktives Arbeitsumfeld fĂĽr Unternehmen, die Wert auf Stil, Komfort und zentrale Erreichbarkeit legen.

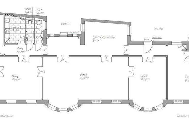
Das Büro liegt im 1. Stock eines gepflegten Gebäudes mit Lift und ist bezugsfertig. Mit einer Fläche von rund 273 m² überzeugt es durch eine funktionale Raumaufteilung und helle, freundliche Räume.

Raumaufteilung:
- GroĂźzĂĽgiger Vorraum / Empfangsbereich
- 4 getrennt begehbare Büroräume
- Geräumiger Serverraum
- TeekĂĽche
- Getrennte WC-Gruppen

Die Räumlichkeiten wurden komplett saniert und präsentieren sich in sehr gutem Zustand.

Merkmale

  • Bezug: Nach Vereinbarung
  • 1. Geschoss
  • Personenaufzug
  • voll klimatisiert

Grundrisse

Grundrisse
1 / 1

Realisiere Dein Projekt

Bausubstanz und Energie

Heizwärmebedarf (HWB)

E

Gesamtenergieeffizienz (fGEE)

D
Immowelt logo

Mietkosten

Gesamtmiete
6.709,73 €
Nettokaltmiete
18,40 €/m²
5.016,21 €
Betriebskosten
575,23 €
Umsatzsteuer
1.118,29 €
Provision fĂĽr Mieter
3 BMM zzgl. 20% USt.
Kaution
3-6 BMM (bonitätsabhängig)
Weitere Preisinformationen
Nettokaltmiete: 5.016,21 EUR

Lage

address-icon
Wien (1080)
Der Anbieter hat die genaue Adresse nicht freigegeben
Das Objekt befindet sich im 8. Wiener Gemeindebezirk Josefstadt, einem der zentralsten und charmantesten Bezirke Wiens. Die Umgebung ist geprägt von klassischer Gründerzeitarchitektur, kleinen Geschäften, Cafés, Restaurants und einer ausgezeichneten Infrastruktur.

In unmittelbarer Nähe befinden sich der Lazarettgasse, die Alser Straße sowie der Josefstädter Gürtel - wichtige Verkehrsachsen, die den Bezirk mit dem Rest der Stadt verbinden.
Zahlreiche Bildungseinrichtungen, Büros und Wohnhäuser machen die Gegend sowohl bei Studierenden als auch bei Berufstätigen beliebt. Die Innenstadt (1. Bezirk) ist fußläufig in rund 20 Minuten oder mit öffentlichen Verkehrsmitteln in etwa 10 Minuten erreichbar.

Ă–ffentlicher Verkehr:
- U-Bahn: U2 - Station Rathaus
- StraĂźenbahn: 5, 12, 43 und 44
- Bus: 13A

Weitere Informationen

Stichworte Nutzfläche: 272,62 m², Bundesland: Wien, Mindestmietdauer: 3 Jahre

Weitere Services

Lust auf eine Besichtigung?
Eine Frage zur Immobilie?
Nachricht hinzufĂĽgen
Mit der Nutzung der oben angegebenen Telefonnummer oder durch Klicken auf „Kontaktieren“ akzeptierst Du die Allgemeinen Nutzungsbedingungen, denen Du jederzeit widersprechen kannst. Weitere Informationen zum Datenschutz

Ăśber den Anbieter

OTTO Immobilien
OTTO ImmobilienMaklerbĂĽro
Riemergasse 8, 1010 WIEN
Frau Magdalena Lemut, BSc (WU)Dein Kontakt
Online-ID: 2new456
Referenznummer: IVG-O-12905/02
OTTO Immobilien
OTTO Immobilien
Bewertung: 4,8 von 5 Sternen
Nachricht hinzufĂĽgen
Mit der Nutzung der oben angegebenen Telefonnummer oder durch Klicken auf „Kontaktieren“ akzeptierst Du die Allgemeinen Nutzungsbedingungen, denen Du jederzeit widersprechen kannst. Weitere Informationen zum Datenschutz
Wie zufrieden bist du mit dieser Seite (nicht mit der Immobilie selbst)?