Version: 8.25.1Navigation überspringen
398 €
1 Zimmer
Immowelt logo

Studio zur Miete - Erstbezug
398 €
1 Zimmer

Naturnahes Wohnen in Gunskirchen - geförderte Mietwohnungen in moderner Hybridbauweise

Wohnen in Gunskirchen

Am ehemaligen Sportplatz in der Gärtnerstraße in Gunskirchen errichtet die WAG drei moderne Wohngebäude mit insgesamt 60 geförderten Mietwohnungen und einer Tiefgarage mit 81 Stellplätzen. Die Anlage entsteht in nachhaltiger Hybridbauweise und bietet Wohnraum für unterschiedliche Lebenssituationen.

Wie bei allen WAG-Neubauprojekten steht der Einsatz energieeffizienter und umweltschonender Technologien im Vordergrund: Die Geschoßdecken verfügen über eine integrierte Deckenheizung, die in den Wintermonaten nicht nur wohlige Wärme erzeugt, sondern auch im Sommer zur sanften Temperierung eingesetzt werden kann. Das Flachdach wird begrünt und mit einer Photovoltaikanlage ausgestattet - das sorgt für ein besseres Mikroklima sowie ein Plus an Nachhaltigkeit.

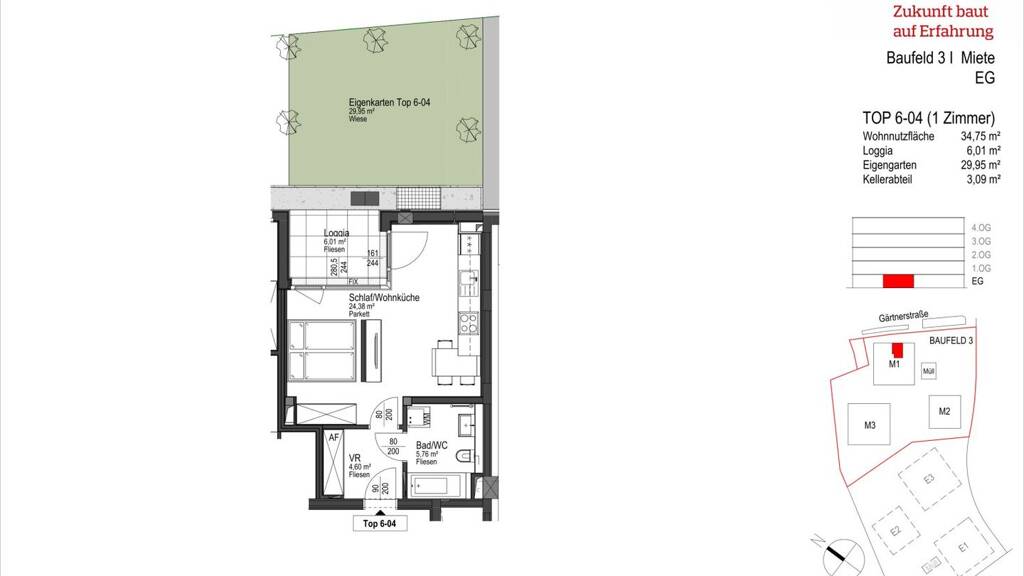
Wohnung Top 4, EG, mit Loggia und Garten:

Miete inkl. Betriebs- und Verwaltungskosten sowie MwSt.: € 517,98
Heizung inkl. MwSt.: ca. € 63,65
Miete TG-Stellplatz inkl. MwSt.: ca. € 93,43
Monatliche Kosten gesamt: € 675,06 (ohne Strom)
Baukostenbetrag Wohnung: € 1.768,52
Baukostenbeitrag Tiefgaragenplatz: ca. € 530,00

Sie sind an weiteren Wohnungs- bzw. Gewerbeangeboten interessiert? Ein vielfältiges Angebot finden Sie auf unserer Website [https://www.wag.at].

Zur WAG-Immobiliensuche: SUCHE [https://www.wag.at/immobilien/immobiliensuche/suche/]

Zur WAG-Wohnungsanmeldung: Wohnungsanmeldung [https://www.wag.at/wohnungsanmeldung]

Gerne beraten wir Sie persönlich über unser vielfältiges Angebot, rufen Sie uns einfach an! Und das natürlich ohne Vermittlungsgebühren und provisionsfrei!

Angaben sind ohne Gewähr auf Richtigkeit und Vollständigkeit. Druckfehler vorbehalten.

Infrastruktur / Entfernungen

Gesundheit
Arzt <1.000m
Apotheke <1.000m
Klinik <5.500m
Krankenhaus <8.000m

Kinder & Schulen
Schule <1.000m
Kindergarten <500m
Universität <7.000m

Nahversorgung
Supermarkt <500m
Bäckerei <1.000m
Einkaufszentrum <3.000m

Sonstige
Bank <1.000m
Geldautomat <1.000m
Post <1.000m
Polizei <1.000m

Verkehr
Bus <500m
Autobahnanschluss <4.000m
Bahnhof <500m
Flughafen <9.500m

Angaben Entfernung Luftlinie / Quelle: OpenStreetMap

Merkmale

  • Bezug: Mitte 2026
  • Barrierefrei
  • Personenaufzug
  • offene Küche
  • Badewanne
  • Bodenbelag: Fliesen, Parkett
  • Loggia
  • Garage

Grundrisse

Grundrisse
1 / 1

Realisiere Dein Projekt

Bausubstanz und Energie

Heizwärmebedarf (HWB)

B

Gesamtenergieeffizienz (fGEE)

  • Baujahr2025
  • Zustand der ImmobilieNeubau, Erstbezug
Immowelt logo

Mietkosten

Gesamtmiete
675,06 €
Nettokaltmiete
397,50 €
Betriebskosten
151,25 €
Heizkosten
53,04 €
Nicht in Gesamtmiete enthalten
Miete pro Stellplatz
77,86 €
Kaution
keine Angabe
Weitere Preisinformationen
1 Garagenstellplatz, Miete: 77,86 EUR
Nettokaltmiete: 397,50 EUR

Lage

address-icon
Gunskirchen (4623)
Der Neubau in der Gärtnerstraße überzeugt durch eine ideale Kombination aus Ruhe, Alltagstauglichkeit und guter Verkehrsanbindung.
Die Wohnungen liegen in einem freundlich gewachsenen Wohngebiet von Gunskirchen, nur wenige Minuten vom Ortszentrum entfernt.
Einkaufsmöglichkeiten, Schulen, Kinderbetreuung und medizinische Versorgung befinden sich in unmittelbarer Nähe und sind bequem zu Fuß oder mit dem Fahrrad erreichbar.
Das Areal selbst verfügt über attraktive, begrünte Außenflächen, die als Erholungsfläche für die zukünftigen Bewohner:innen dienen. Spielgeräte sind für die
Kinder am Grundstück ausreichend vorgesehen.

Weitere Informationen

Stichworte Tiefgarage vorhanden, Ost-Balkon/Terrasse, Nutzfläche: 34,75 m², Anzahl Loggias: 1, Balkon-Terrassen-Fläche: 6,01 m², Gartenfläche: 29,95 m², Kellerfläche: 3,09 m², Bundesland: Oberösterreich, 5 Etagen, Wohnungsnr.: 4

Weitere Services

Lust auf eine Besichtigung?
Eine Frage zur Immobilie?
Mit einer persönlichen Nachricht hast du bessere Chancen auf eine Antwort.
Mit der Nutzung der oben angegebenen Telefonnummer oder durch Klicken auf „Kontaktieren“ akzeptierst Du die Allgemeinen Nutzungsbedingungen, denen Du jederzeit widersprechen kannst. Weitere Informationen zum Datenschutz

Über den Anbieter

Mörikeweg 6, 4025 LINZ
partner badge
Partnerschaft
Team Vermietung 2Dein Kontakt

Weitere Unterlagen

Online-ID: 266KQ1Z7Y9SQ
Referenznummer: OBGC202602091552058206cabbdaf82
WAG Wohnungsanlagen Gesellschaft m.b.H.
WAG Wohnungsanlagen Gesellschaft m.b.H.
Bewertung: 5 von 5 Sternen
Mit einer persönlichen Nachricht hast du bessere Chancen auf eine Antwort.
Mit der Nutzung der oben angegebenen Telefonnummer oder durch Klicken auf „Kontaktieren“ akzeptierst Du die Allgemeinen Nutzungsbedingungen, denen Du jederzeit widersprechen kannst. Weitere Informationen zum Datenschutz
Wie zufrieden bist du mit dieser Seite (nicht mit der Immobilie selbst)?