

Living Fertighaus GmbH - Handelsvertretung Torsten Rohde
Herr Torsten Rohde
+49 ···
Nr. anzeigenPreise & Kosten
Provision für Käufer
keine Angaben
Lage
Stendal liegt unweit westlich der Elbe in der südöstlichen Altmark. Berlin ist etwa 120 Kilometer entfernt, Hannover etwa 150 Kilometer. Leipzig ist etwa 160 Kilometer und Hamburg etwa 180 Kilometer entfernt. Stendal liegt etwa 55 Kilometer nördlich von Magdeburg auf der Achse Wolfsburg-Berlin.
Das Haus
Kategorie
Einfamilienhaus
Bezug
2026
Energie & Heizung
Warum sehe ich diese Anzeige? – Du siehst diese Anzeige basierend auf Ihrer Navigation auf unserer Website und den Suchkriterien, die du verwendet hast.
Energieausweistyp
Bedarfsausweis
Gebäudetyp
Wohngebäude
Baujahr laut Energieausweis
2026
Wesentliche Energieträger
Strom, Solar
Effizienzklasse
A+
Endenergiebedarf
18,00 kWh/(m²·a)
Weitere Energiedaten
Haustyp
KfW 40
Energieträger
Solar
Heizungsart
Fußbodenheizung, Luft-/Wasser-Wärmepumpe
Details
Objektbeschreibung
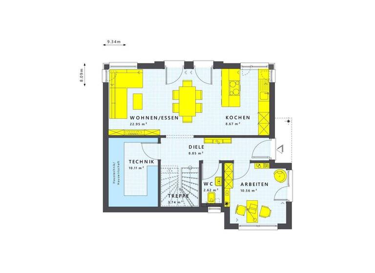
Das Sunshine 125 als Stadtvilla besticht durch seine sehr durchdachte Planung und sein attraktives Erscheinungsbild. Das Flachdach zieht alle Blicke auf sich! Ziehen Sie ein, in ihr neues Einfamilienhaus. Sichern Sie sich den besten Standard und einen tollen Preis. Als Ausbauhaus Plus geplant, können Sie sich bereits jetzt...
Ausstattung
DEIN ZUHAUSE. Na, wie hört sich das an? Nur gut? Oder sehr gut? Nimm dir das SUNSHINE 125 als Einfamilienhaus. Bestimme, wie groß es sein soll, was für Architektur- und Fassadenbauteile dran sollen und welche der vielen Grundrissvarianten deiner ist. Auch deine Freundin wird euer neues Zuhause lieben - und wenn ihr so weit...
Weitere Informationen
Sonstiges
Natürlich sind unsere Häuser mit den besten Energiekennwerten der heutigen Zeit ausgestattet. Gerne berate ich Sie auch hier über die vielen Möglichkeiten und auch, wie wir gemeinsam dadurch unseren Planeten schützen können. Das Erfüllen der Anforderungen für ein Zertifikat der Deutschen Gesellschaft für...
Anbieter der Immobilie
Living Fertighaus GmbH - Handelsvertretung Torsten Rohde
Breiter Weg 213b, 39104 Magdeburg

Online-ID: 2mw895l
Referenznummer: 30332-23914
Finde Angebote wie dieses
Hier geht es zu unserem Impressum, den Allgemeinen Geschäftsbedingungen, den Hinweisen zum Datenschutz und nutzungsbasierter Online-Werbung.