Version: 8.22.6Navigation ĂĽberspringen
Mietkosten auf Anfrage
252 m² Verkaufsfläche
Immowelt logo

Verkaufsfläche zur Miete • provisionsfrei
252 m² Verkaufsfläche

großes Ladenlokal in der Peiner Fußgängerzone zu vermieten

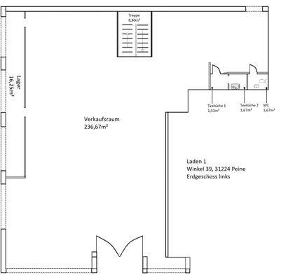
Das attraktive Ladenlokal liegt in der belebten Fußgängerzone von Peine, in einer guten Lage für Einzelhandelsgeschäfte oder Dienstleister. Das Wohn- und Geschäftshaus, welches im Jahr 1977 errichtet wurde, beherbergt insgesamt vier Geschäfte im Erdgeschoss. Die großzügige Verkaufsfläche von etwa 252 m² ist ideal für eine Vielzahl von Geschäftsnutzungen und bietet zudem eine kleine Teeküche sowie eine separate Toilette. Für die Kundschaft ist der Zugang barrierefrei gestaltet, wodurch das Gebäude für alle zugänglich ist. Die beeindruckenden Schaufenster mit einer Gesamtlänge von rund 22 Metern ziehen Aufmerksamkeit auf sich und sorgen für eine helle, einladende Atmosphäre. Ein Teil der Fläche ist jedoch momentan durch eine Leichtbauwand abgetrennt, aber diese lässt sich mühelos wieder entfernen, um möglicherweise weitere Gestaltungsmöglichkeiten zu schaffen. Im Kellergeschoss wurde mit Leichtbauwänden Raum für drei Lagerräume sowie ein Büro oder Aufenthaltsraum geschaffen. Diese Fläche bietet vielfältige Optionen zur individuellen Anpassung und kann je nach Bedarf umgestaltet werden.

Merkmale

  • frei ab sofort
  • 22 m Schaufensterfront
  • 24 Monate
  • voll klimatisiert
  • Beleuchtung: Deckenbeleuchtung

Grundrisse

Grundrisse
1 / 2

Realisiere Dein Projekt

Bausubstanz und Energie

Der Anbieter hat keine Informationen zum Energieverbrauch bereit gestellt.
  • Baujahr1978
  • HeizungsartZentralheizung
  • EnergieträgerFernwärme
Immowelt logo

Mietkosten

Nettomiete zzgl. Nebenkosten
nicht angegeben
Nebenkosten
400 €
Heizkosten
nicht in Nebenkosten enthalten
200 €
Provision fĂĽr Mieter
provisionsfrei
Kaution
3 Kaltmieten

Lage

address-icon
Winkel 39, Kernstadt Nord, Peine (31224)

Weitere Informationen

Sonstiges Info: Anzahl Etagen: 4 Haben wir Ihr Interesse geweckt? Dann kontaktieren Sie uns unter der Tel.-Nr. 0 51 71 / 70 63 -150 von Montag bis Donnerstag 8.00 bis 16.00 Uhr und freitags von 8.00 bis 13.00 Uhr oder rund um die Uhr per Mail unter daniela.may@hanke-pe.de. Heizungsart: Heizkoerper

Weitere Services

Lust auf eine Besichtigung?
Eine Frage zur Immobilie?
Nachricht hinzufĂĽgen
Mit der Nutzung der oben angegebenen Telefonnummer oder durch Klicken auf „Kontaktieren“ akzeptierst Du die Allgemeinen Nutzungsbedingungen, denen Du jederzeit widersprechen kannst. Weitere Informationen zum Datenschutz

Ăśber den Anbieter

Woltorfer Str. 131, 31224 Peine
partner badge
Partnerschaft
Frau Daniela MayDein Kontakt
Online-ID: 2lss35w
Referenznummer: L1H01
HANKE Bau- und Projektentwicklungs GmbH
HANKE Bau- und Projektentwicklungs GmbH
Bewertung: 4,4 von 5 Sternen
Nachricht hinzufĂĽgen
Mit der Nutzung der oben angegebenen Telefonnummer oder durch Klicken auf „Kontaktieren“ akzeptierst Du die Allgemeinen Nutzungsbedingungen, denen Du jederzeit widersprechen kannst. Weitere Informationen zum Datenschutz
Wie zufrieden bist du mit dieser Seite (nicht mit der Immobilie selbst)?