Version: 8.22.4Navigation ĂĽberspringen
12.311 €
Immowelt logo

Restaurant zur Miete
12311.24 €
Nettokaltmiete

Großzügige Gastronomiefläche im Neubau zu Mieten

Zur Vermarktung gelangt eine moderne Geschäftsfläche in der Marktgemeinde Wiener Neudorf.

Das Objekt befindet sich an einer stark frequentierten Kreuzung im Zufahrtsbereich zur A2 und dem Gewerbegebiet von Wiener Neudorf.
Auf Grund seiner Positionierung in direkter Nähe zur Südautobahn A2 sowie zur Triesterstraße ist das Gewerbeobjekt hervorragend an das öffentliche Straßennetz angebunden und für Besucher gut erreichbar.

Durch die großflächig gestalteten Glasportale an den Stirn- und Frontseiten der zur Vermarktung gelangenden Shopeinheit ist auch für eine gute natürliche Belichtung in den Innenräumen gesorgt, wodurch das hier angebotenen Mietobjekt einen hellen und freundlichen Gesamteindruck vermittelt.

In dem Gebäude, in dem das Geschäftslokal untergebracht ist, befindet sich ein erst kürzlich eröffneter Hotelbetrieb.
Ein weiterer Pluspunkt des Gewerbeobjektes ist seine räumliche Nähe zu Österreichs größten Shopping-Center der SCS und seiner kaufkraftstarken Nachbargemeinden wie Mödling, Brunn am Gebirge, Vösendorf, Maria Enzersdorf und Biedermannsdorf.

Vor den jeweiligen Geschäftsflächen befinden sich auf einen großen Parkplatz eine Vielzahl von Stellplätzen die potentiellen Kunden eine problemlose Zufahrt und eine bequeme Parkmöglichkeit in unmittelbarer Nähe des Geschäftslokal ermöglichen.

Auf Grund seiner aktuellen Widmung, ist eine gastronomische Nutzung bzw. ein Verkauf von nicht zentrumsrelevanten Waren (z.B. größere Elektrogeräte, Baustoffe, Fliesen usw.) möglich.
Der Handel mit Gütern wie Textil, Drogerie, Kosmetik usw. ist leider auf Grund der derzeitigen Handelswidmung nicht möglich.

Eine Nutzung des hier zur Vermarktung gelangenden gewerblichen Objektes als Gastronomiestandort bietet sich auf Grund der stark frequentierten Lage, der guten Erreich- bzw. Sichtbarbarkeit und der vorhandenen Parkplätze an.
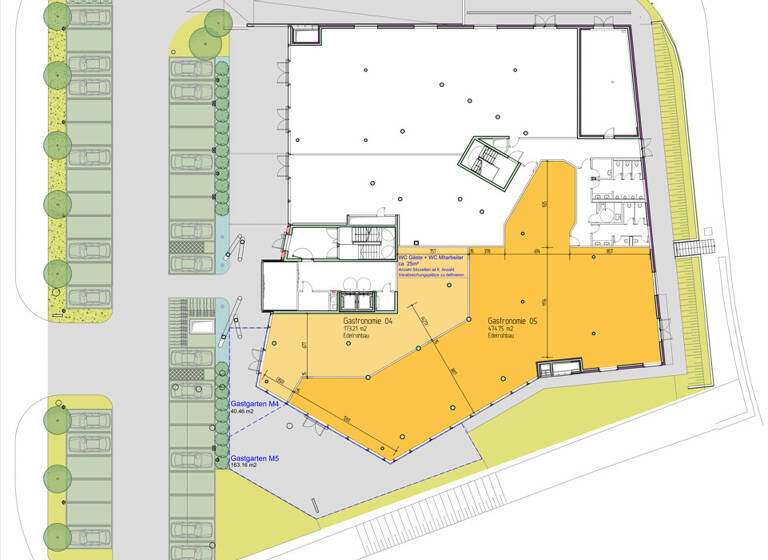
Zusätzlich gibt es die Möglichkeit einen vor dem Lokal befindlichen Außenbereich als Gastgarten zu nutzen!

Im Gebäude befinden sich noch 3 weitere Geschäftseinheiten. Für alle 5 am Standort befindlichen Shops stehen über die Allgemeinflächen gut erreichbare und zentral gelegenen WC- und Sanitäreinrichtungen Besuchern und Mitarbeitern zur Verfügung.

Das Mietobjekt (Top M4 + Top M5) mit eine Gesamtgröße von ca. 647,96 m² ist ab sofort verfügbar und kann bei Bedarf auch in 2 kleiner Einheiten von Top M4 mit ca. 173,21m² und
Top M5 mit ca. 474,75 m² geteilt und angemietet werden.

Merkmale

  • Bezug: sofort

Grundrisse

Grundrisse
1 / 1

Realisiere Dein Projekt

Bausubstanz und Energie

Heizwärmebedarf (HWB)

B

Gesamtenergieeffizienz (fGEE)

A+
  • Baujahr2021
Immowelt logo

Mietkosten

Gesamtmiete
18.661,25 €
Nettokaltmiete
19 €/m²
12.311,24 €
Betriebskosten
3.239,80 €
Provision fĂĽr Mieter
3 Bruttomonatsmieten zzgl. 20% USt.
Kaution
3-6 BMM
Weitere Preisinformationen
Nettokaltmiete: 12.311,24 EUR

Lage

address-icon
IZ-NÖ-Süd Straße 6, Wiener Neudorf (2351)

Weitere Informationen

Sonstiges Wir weisen darauf hin, dass zwischen dem Vermittler und dem Auftraggeber ein wirtschaftliches Naheverhältnis besteht. Der Vermittler ist als Doppelmakler tätig. Stichworte Nutzfläche: 647,96 m², Freifläche: 203,62 m², Bundesland: Niederösterreich

Weitere Services

Lust auf eine Besichtigung?
Eine Frage zur Immobilie?
Nachricht hinzufĂĽgen
Mit der Nutzung der oben angegebenen Telefonnummer oder durch Klicken auf „Kontaktieren“ akzeptierst Du die Allgemeinen Nutzungsbedingungen, denen Du jederzeit widersprechen kannst. Weitere Informationen zum Datenschutz

Ăśber den Anbieter

Prinz-Eugen-Strasse 8-10, 1040 WIEN
partner badge
Partnerschaft
Herr Christoph Paul
Herr Christoph PaulDein Kontakt
Online-ID: 2jzfb5x
Referenznummer: R2400983
EHL Gewerbeimmobilien GmbH
EHL Gewerbeimmobilien GmbH
Nachricht hinzufĂĽgen
Mit der Nutzung der oben angegebenen Telefonnummer oder durch Klicken auf „Kontaktieren“ akzeptierst Du die Allgemeinen Nutzungsbedingungen, denen Du jederzeit widersprechen kannst. Weitere Informationen zum Datenschutz
Wie zufrieden bist du mit dieser Seite (nicht mit der Immobilie selbst)?